L’agence CBRE Bordeaux conseille et accompagne les chefs d’entreprise dans leurs projets immobiliers quels que soient leur taille et leur secteur d’activité. Spécialistes de la transaction de burea ...
En savoir plus

220 m²
HT HC
Location activité/entrepôt - 220 m²
Mérignac (33700)
Dernière mise à jour : Il y a 5 jours
LOCATION : Au coeur du Parc d'Activités VERT CASTEL II, CBRE vous propose des locaux d'activités neufs avec bureaux d'accompagnement de 219 m².
-- Disponibilité : Immédiate --
Au coeur d'un parc d'activités de qualité établi et dimensionné pour l'accueil d'artisans, PME, PMI, entreprises de services, je vous propose de vous présenter les différentes solutions locatives de locaux d'activités et bureaux divisibles à partir de 219 m² au sein d'un environnement préservé. Accès depuis sortie Rocade N°9 ou 10 - ZONE AÉROPARC - Environnement privilégié : THALES, ARIANE GROUP, DAHER, DASSAULT, PANORAMA ANTENNAS, INCUBETHIC, SETIN, COSENTINO,. Espaces de stationnement privatifs, architecture innovante, espaces verts préservés,.
Votre implantation actuelle n'est plus adaptée à votre activité et vous souhaitez déplacer votre entreprise au coeur de la zone AEROPARC, contactez-moi au 06.62.49.19.66. pour davantage d'informations et visite des locaux.
Impôt Foncier : 4,36 €/m²/an HT
Régime Fiscal : T.V.A.
Dépôt de garantie : 3 mois de loyer HT/HC
Honoraires : 15% HT du loyer annuel HT HC à la charge du preneur
Prestations :
Accessibilité:
Bus Lignes n° 26 et 39
Route Rocade sorties 9 et 10
Autoroute A62 à 11,2 km
Aeroport Aéroport Bordeaux Mérignac à 3,5 km
Les informations sur les risques auxquels ce bien est exposé sont disponibles sur le site Géorisques : www.georisques.gouv.fr
-- Disponibilité : Immédiate --
Au coeur d'un parc d'activités de qualité établi et dimensionné pour l'accueil d'artisans, PME, PMI, entreprises de services, je vous propose de vous présenter les différentes solutions locatives de locaux d'activités et bureaux divisibles à partir de 219 m² au sein d'un environnement préservé. Accès depuis sortie Rocade N°9 ou 10 - ZONE AÉROPARC - Environnement privilégié : THALES, ARIANE GROUP, DAHER, DASSAULT, PANORAMA ANTENNAS, INCUBETHIC, SETIN, COSENTINO,. Espaces de stationnement privatifs, architecture innovante, espaces verts préservés,.
Votre implantation actuelle n'est plus adaptée à votre activité et vous souhaitez déplacer votre entreprise au coeur de la zone AEROPARC, contactez-moi au 06.62.49.19.66. pour davantage d'informations et visite des locaux.
| Étage | Type | Surfaces | Dispo | Loyer | Charges | Type de bailRév. annuelle |
|---|---|---|---|---|---|---|
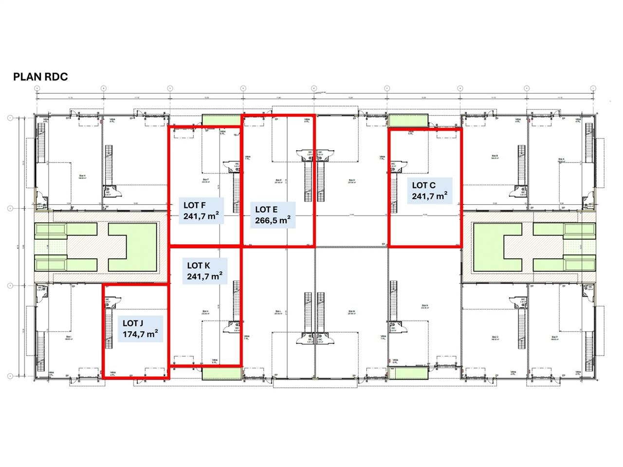
| RDC | Activités | 174,7 | Immédiate | Indice INSEE du Coût de la Construction | ||
| MEZ | Bureaux | 45 | Immédiate | Indice INSEE du Coût de la Construction | ||
| Total Cellule J | Activités | 219,7 | Immédiate | 118,16 m²/an HT HC | 9,48 HT/m²/an | 3-6-9 ansIndice INSEE du Coût de la Construction |
Impôt Foncier : 4,36 €/m²/an HT
Régime Fiscal : T.V.A.
Dépôt de garantie : 3 mois de loyer HT/HC
Honoraires : 15% HT du loyer annuel HT HC à la charge du preneur
Prestations :
- Local d'activités avec mezzanine
- Show-room avec surfaces vitrées
- Surfaces modulables à partir de 240 m²
- Places de parking végétalisées
- ACTIVITE
- Porte sectionnelle motorisée
- Resistance sol : 1,5T/m²
- Eclairage posé
- HSP : 6 m
- 1 sanitaire + 1 point d'eau
- BUREAUX
- Plateau livré prêt à cloisonner (hors courants faibles)
- Surface RDC : 174,7 m²
- Surface terrain : 0
Accessibilité:
Bus Lignes n° 26 et 39
Route Rocade sorties 9 et 10
Autoroute A62 à 11,2 km
Aeroport Aéroport Bordeaux Mérignac à 3,5 km
Les informations sur les risques auxquels ce bien est exposé sont disponibles sur le site Géorisques : www.georisques.gouv.fr
Voir plus
Afficher les consommations énergétiques
Favoris
Exporter
Appeler
Contacter
Signaler cette annonce










