MCarré Conseil est une agence spécialiste de l'immobilier d’entreprise du sud de l’Île-de-France (en Essonne et dans le sud de la Seine-et-Marne et du Val-De-Marne). Elle vous accompagne à chaque é ...
En savoir plus

1 200 m²
HT HC
Location activité/entrepôt - 1200 m²
Lisses (91090)
Dernière mise à jour : Il y a 3 jours
Aisément accessible depuis l'autoroute A6, dans un programme entièrement restructuré, nous vous proposons à la location et à l'acquisition un lot indépendant à usage d'activité et de bureaux de 1 200 m².
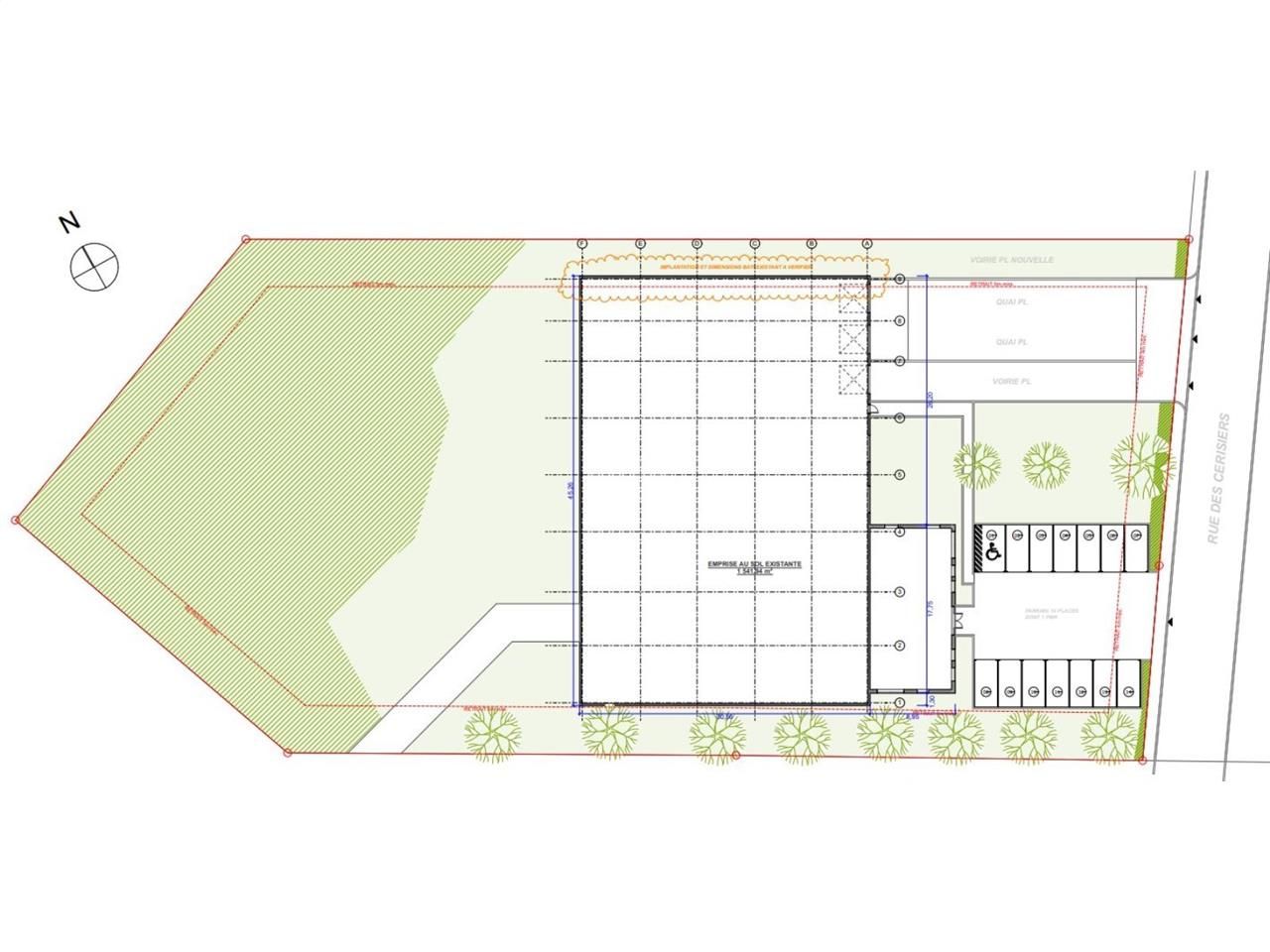
Ce local bénéficie d'un foncier de 800 m² sur l'arrière du bâtiment qui permettrait la réalisation d'un parking en enrobé
Impôt Foncier : 19000 €/HT/an
Régime Fiscal : TVA
Dépôt de garantie : Nous consulter
Honoraires : 15 % du loyer global annuel HT/HC
Taxe Bureau : 4000 €/m²/an
Information sur le Bail :
Loyer annuel : 114 000 euros HT/HC Prov. charges an/HT : 2 400 euros (espaces verts et entretien toiture)
Prestations :
Accessibilité:
Autoroute Autoroute A6 sortie n°9
Route Nationale 104 Francilienne sortie n°34
Route Nationale 7
RER RER D : Villabé
Bus Aubépine (Ligne 207, Ligne 415)
Les informations sur les risques auxquels ce bien est exposé sont disponibles sur le site Géorisques : www.georisques.gouv.fr
Ce local bénéficie d'un foncier de 800 m² sur l'arrière du bâtiment qui permettrait la réalisation d'un parking en enrobé
| Étage | Type | Surfaces | Dispo | Loyer | Charges | Type de bailRév. annuelle |
|---|---|---|---|---|---|---|
| MEZ | Activité Tertiaire | 130 | Indice ILAT | |||
| R+1 | Bureaux | 350 | Indice ILAT | |||
| Rdc | Activités | 720 | Indice ILAT | |||
| Total Cellule | Activités | 1200 | Immédiate | 95 m²/an HT HC | 3/6/9 ansIndice ILAT | |
| Parkings | Indice ILAT |
Impôt Foncier : 19000 €/HT/an
Régime Fiscal : TVA
Dépôt de garantie : Nous consulter
Honoraires : 15 % du loyer global annuel HT/HC
Taxe Bureau : 4000 €/m²/an
Information sur le Bail :
Loyer annuel : 114 000 euros HT/HC Prov. charges an/HT : 2 400 euros (espaces verts et entretien toiture)
Prestations :
- Bureaux entièrement rénovés
- Fibre optique
- Sécurité : vidéosurveillance
- Kitchenette
- Accès moyens porteurs
- Climatisation réversible possible
- Surface RDC : 720 m²
- Haut. libre max. ss poutre : 6,5 m
- Résistance sol : 3 T/m²
- Chauffage : Aérothermes électriques
- Ossature : Métallique
- Murs périmétriques : Double bardage
- Couverture : Bac acier
Accessibilité:
Autoroute Autoroute A6 sortie n°9
Route Nationale 104 Francilienne sortie n°34
Route Nationale 7
RER RER D : Villabé
Bus Aubépine (Ligne 207, Ligne 415)
Les informations sur les risques auxquels ce bien est exposé sont disponibles sur le site Géorisques : www.georisques.gouv.fr
Voir plus
Afficher les consommations énergétiques
Localisation et transport aux alentours
Favoris
Exporter
Appeler
Contacter
Signaler cette annonce










