BNP Paribas Real Estate, N°1 de la transaction en immobilier d''entreprise en France, vous propose un accompagnement de qualité pour l''acquisition, la vente ou la location d''un bien immobilier.Vo ...
En savoir plus

6 327 m²
HT HC
Location activité/entrepôt - 6327 m²
Ivry-sur-Seine (94200)
Dernière mise à jour : Hier
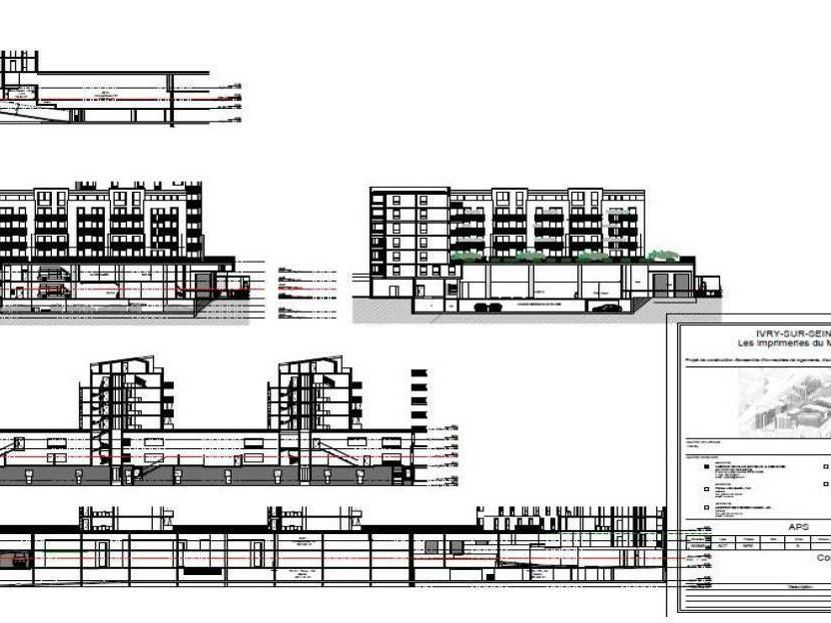
IVRY SUR SEINE (94) - A LOUER
BNP PARIBAS Real Estate vous propose à la location un entrepôt de 6496 m² environ situé à Ivry-Sur-Seine (94).
Situé aux portes de Paris dans le quartier d'Ivry-Port, Ivry Confluences est l'un des plus grands projets d'aménagement de la région parisienne.
Déployé sur 145 hectares, ce projet concerne plus de 20 % de la superficie de la ville d'Ivry.
Pôle majeur de développement urbain, économique et social, il comporte à la fois la construction de logements, la création de groupes scolaires, de locaux d'activités, de nouvelles voiries ainsi que d'un grand parc à la Confluence.
Disponibilité: Immédiate
Honoraires: 15% HT du loyer HT/HC.
| Fiche technique du bien | |
|---|---|
| Métro | M7 |
| RER | C |
| Desserte routière | D155,D154A |
| Etat des locaux | Neuf |
| Etat du terrain | Voirie lourde |
| Immeuble indépendant | Oui |
| Source chauffage | Branchement possible au réseau de chaleur |
| Charpente | Béton |
| Charge au sol RDC | 500 kg à 1,5 tonnes/m² |
| Hauteur libre | 2,80 mètre(s) à 6,5 m |
| Porte(s) d'accès plain-pied | 3 VUL/VL |
| Porte(s) d'accès à quai | 2 PL |
| Aire de manoeuvre | Oui |
| Rampe(s) d'accès | Oui |
| Locaux sociaux | Oui |
Afficher les consommations énergétiques
Favoris
Exporter
Appeler
Contacter
Signaler cette annonce










