L’agence CBRE Lyon conseille et accompagne les chefs d’entreprise dans leurs projets immobiliers quels que soient leur taille et leur secteur d’activité. Spécialistes de la transaction de bureaux, ...
En savoir plus

1 587 m² divisible dès 600 m²
HT HC
Location activité/entrepôt - 1587 m²
Belleville (69220)
Dernière mise à jour : Il y a 2 mois
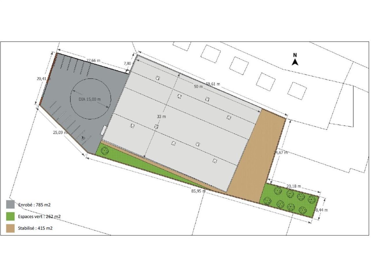
Au nord de Lyon, à proximité de Villefranche sur Saône, CBRE vous propose cette surface d'activités de 1 600 m² sur un terrain de 3 100 m². A proximité de l'autoroute A6, sortie 30, Belleville.
Le local industriel sera livré bruts et fluides en attente, bénéficiera d'une hauteur sous faitage de 7m ainsi que 2 portes sectionnelles.
Régime Fiscal : T.V.A.
Dépôt de garantie : 3 mois de loyer HT/HC
Paiement Loyer : trimestriel
Honoraires : 15% HT du loyer annuel HT/HC à la charge du preneur
Prestations :
Accessibilité:
Autoroute Autoroute A6, sortie 30 Belleville
Lyon à 38 mn
Aeroport Aéroport Lyon Saint-Exupéry et sa gare TGV à 44 mn
Les informations sur les risques auxquels ce bien est exposé sont disponibles sur le site Géorisques : www.georisques.gouv.fr
Le local industriel sera livré bruts et fluides en attente, bénéficiera d'une hauteur sous faitage de 7m ainsi que 2 portes sectionnelles.
| Étage | Type | Surfaces | Dispo | Loyer | Charges | Type de bailRév. annuelle |
|---|---|---|---|---|---|---|
| RDC | Activités | 610 | Immédiate | 75 m²/an HT HC | 3-6-9 ansIndice ILAT | |
| RDC | Activités | 493 | Immédiate | 75 m²/an HT HC | 3-6-9 ansIndice ILAT | |
| RDC | Activités | 484 | Immédiate | 75 m²/an HT HC | 3-6-9 ansIndice ILAT |
Régime Fiscal : T.V.A.
Dépôt de garantie : 3 mois de loyer HT/HC
Paiement Loyer : trimestriel
Honoraires : 15% HT du loyer annuel HT/HC à la charge du preneur
Prestations :
- Locaux livrés bruts, fluides en attente.
- Structure métallique.
- Façade : bardage/panneaux sandwich
- Hauteur sous faitage de 7 m.
- Fenêtres PVC.
- Portes vitrées pour l'accès piétons.
- Portes en aluminium
- 2 portes sectionnelles.
- 12 Stationnement pré-équipé IRVE (infrastructure de recharge véhicule électrique)
- Options: Bureaux et locaux sociaux e mezzanine
- Grande surface de stockage
- Surface RDC : 1587 m²
- Surface terrain : 3112
Accessibilité:
Autoroute Autoroute A6, sortie 30 Belleville
Lyon à 38 mn
Aeroport Aéroport Lyon Saint-Exupéry et sa gare TGV à 44 mn
Les informations sur les risques auxquels ce bien est exposé sont disponibles sur le site Géorisques : www.georisques.gouv.fr
Voir plus
Afficher les consommations énergétiques
Favoris
Exporter
Appeler
Contacter
Signaler cette annonce










