MALSH Realty accompagne les entreprises dans leurs projets immobiliers, qu’il s’agisse de locaux d’activités, de bureaux, de commerces, d’entrepôts ou de terrains. L’agence intervient aussi bien au ...
En savoir plus

113 m²
HT HC
Location local commercial - 113 m²
Lyon 5 (69005)
Dernière mise à jour : Hier
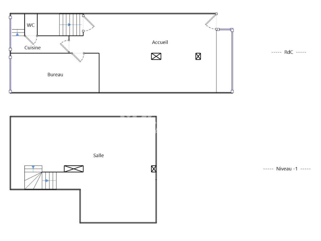
À LOUER - Local commercial 120 m² - LYON 5
Nous vous proposons à la location, un local commercial d'une surface totale de 120 m² situé à Lyon 5e. Il se compose d'un sous-sol de 65 m² environ et d'un RDC de 55 m² avec accès direct. Le local bénéficie d'un volet roulant pour la sécurité . Espace fonctionnel, idéal pour tout type d'activité commerciale. Situé dans un secteur dynamique de l'ouest lyonnais.
À LOUER - Local commercial 120 m² - LYON 5
Impôt Foncier : 1431 €//an
Régime Fiscal : Non soumis à la T.V.A.
Dépôt de garantie : 3 mois de loyer HC
Honoraires : Forfait d'honoraires : 4000 euros HT à la charge du preneur
Prestations :
Accessibilité:
Bus Lignes C21, 45, 46 et 90
vélo'V 1 stations à proximité immédiate
SNCF Gare de Vaise et Gare Perrache à 10 min
Les informations sur les risques auxquels ce bien est exposé sont disponibles sur le site Géorisques : www.georisques.gouv.fr
Nous vous proposons à la location, un local commercial d'une surface totale de 120 m² situé à Lyon 5e. Il se compose d'un sous-sol de 65 m² environ et d'un RDC de 55 m² avec accès direct. Le local bénéficie d'un volet roulant pour la sécurité . Espace fonctionnel, idéal pour tout type d'activité commerciale. Situé dans un secteur dynamique de l'ouest lyonnais.
À LOUER - Local commercial 120 m² - LYON 5
| Étage | Type | Surfaces | Dispo | Loyer | Charges | Type de bailRév. annuelle |
|---|---|---|---|---|---|---|
| Sous-Sol | Locaux Commerciaux | 51,56 | ILC Indice des Loyers Commerciaux | |||
| RDC | Locaux Commerciaux | 61,55 | ILC Indice des Loyers Commerciaux | |||
| Total Cellule | Locaux Commerciaux | 113,11 | Immédiate | 88,41 HT/HC/m²/an | 1300 /an | commercial 3-6-9 ansILC Indice des Loyers Commerciaux |
Impôt Foncier : 1431 €//an
Régime Fiscal : Non soumis à la T.V.A.
Dépôt de garantie : 3 mois de loyer HC
Honoraires : Forfait d'honoraires : 4000 euros HT à la charge du preneur
Prestations :
- Volet roulant
- Chauffage individuel électrique
- Eau chaude : cumulus
Accessibilité:
Bus Lignes C21, 45, 46 et 90
vélo'V 1 stations à proximité immédiate
SNCF Gare de Vaise et Gare Perrache à 10 min
Les informations sur les risques auxquels ce bien est exposé sont disponibles sur le site Géorisques : www.georisques.gouv.fr
Voir plus
Afficher les consommations énergétiques
Localisation et transport aux alentours
Favoris
Exporter
Appeler
Contacter
Signaler cette annonce
