L’agence CBRE Aix conseille et accompagne les chefs d’entreprise dans leurs projets immobiliers quels que soient leur taille et leur secteur d’activité. Spécialistes de la transaction de bureaux, d ...
En savoir plus

2 999 m²
HT HC
Location activité/entrepôt - 2999 m²
Les Pennes-Mirabeau (13170)
Dernière mise à jour : Hier
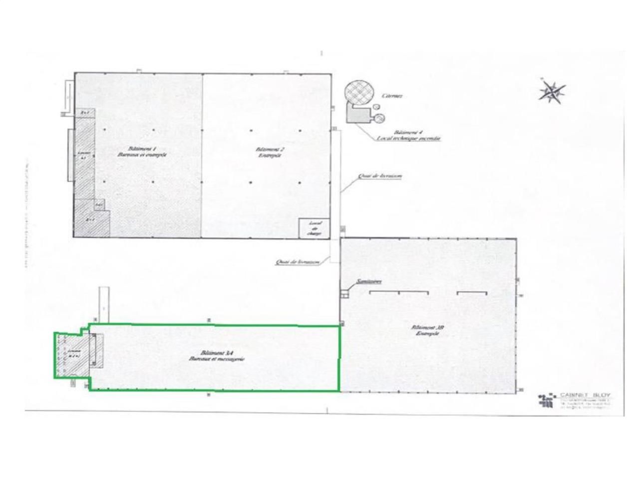
ENTREPOT DE MESSAGERIE - A LOUER - ZA DES JONCQUIERS - LES PENNES MIRABEAU : CBRE vous propose une surface de 3000 m² environ avec bureaux d'accompagnement et surface d'entrepôt avec portes à quai.
N'hésitez pas à nous contacter pour découvrir ces locaux.
CBRE leader mondial en Immobilier d'entreprise est à votre disposition pour vous accompagner dans tous vos projets immobiliers grâce à sa palette de métiers permettant de répondre à toutes problématiques immobilières de la valorisation, en passant par la gestion et la commercialisation à la rénovation
Impôt Foncier : 6,2 €/m²/an
Régime Fiscal : T.V.A.
Dépôt de garantie : 3 mois de loyer HT/HC
Paiement Loyer : trimestriel
Honoraires : A la charge du preneur : 15 % + TVA du loyer annuel HT et HC
Prestations :
Accessibilité:
Autoroute A7 et proche des accès à l'A55 et de l'E80
Aeroport Aéroport International Marseille Provence à moins de 5 kms
SNCF Gare TGV Saint Charles à Marseille
SNCF Gare d''Aix en Provence à 8 kms
Les informations sur les risques auxquels ce bien est exposé sont disponibles sur le site Géorisques : www.georisques.gouv.fr
N'hésitez pas à nous contacter pour découvrir ces locaux.
CBRE leader mondial en Immobilier d'entreprise est à votre disposition pour vous accompagner dans tous vos projets immobiliers grâce à sa palette de métiers permettant de répondre à toutes problématiques immobilières de la valorisation, en passant par la gestion et la commercialisation à la rénovation
| Étage | Type | Surfaces | Dispo | Loyer | Charges | Type de bailRév. annuelle |
|---|---|---|---|---|---|---|
| RDC | Entrepôts | 2325 | Immédiate | 100 m²/an HT HC | 9,6 HT/m²/an | 3-6-9 ansIndice ILAT |
| RDC | Bureaux | 674 | Immédiate | 100 m²/an HT HC | 9,6 HT/m²/an | 3-6-9 ansIndice ILAT |
Impôt Foncier : 6,2 €/m²/an
Régime Fiscal : T.V.A.
Dépôt de garantie : 3 mois de loyer HT/HC
Paiement Loyer : trimestriel
Honoraires : A la charge du preneur : 15 % + TVA du loyer annuel HT et HC
Prestations :
- Bureaux climatisés
- Eclairage LED dans l'entrepôt
- Station service sur place
- Superficie du foncier : 43 800 m² environ
- Immeuble indépendant
- Surface RDC : 2999 m²
- Surface terrain : 0
- Nbr de portes à quai : 44
- Nbr de portes plain pied : 1
Accessibilité:
Autoroute A7 et proche des accès à l'A55 et de l'E80
Aeroport Aéroport International Marseille Provence à moins de 5 kms
SNCF Gare TGV Saint Charles à Marseille
SNCF Gare d''Aix en Provence à 8 kms
Les informations sur les risques auxquels ce bien est exposé sont disponibles sur le site Géorisques : www.georisques.gouv.fr
Voir plus
Afficher les consommations énergétiques
Favoris
Exporter
Appeler
Contacter
Signaler cette annonce







