A l’appui d’un réseau leader à l’international, I&L Solutions est une équipe de plus de 70 professionnels spécialisés en immobilier Logistique et Industriel au service des investisseurs, des propri ...
En savoir plus

5 000 m²
Activité/Entrepôt à vendre - 5000 m²
Lieusaint (77127)
Dernière mise à jour : Hier
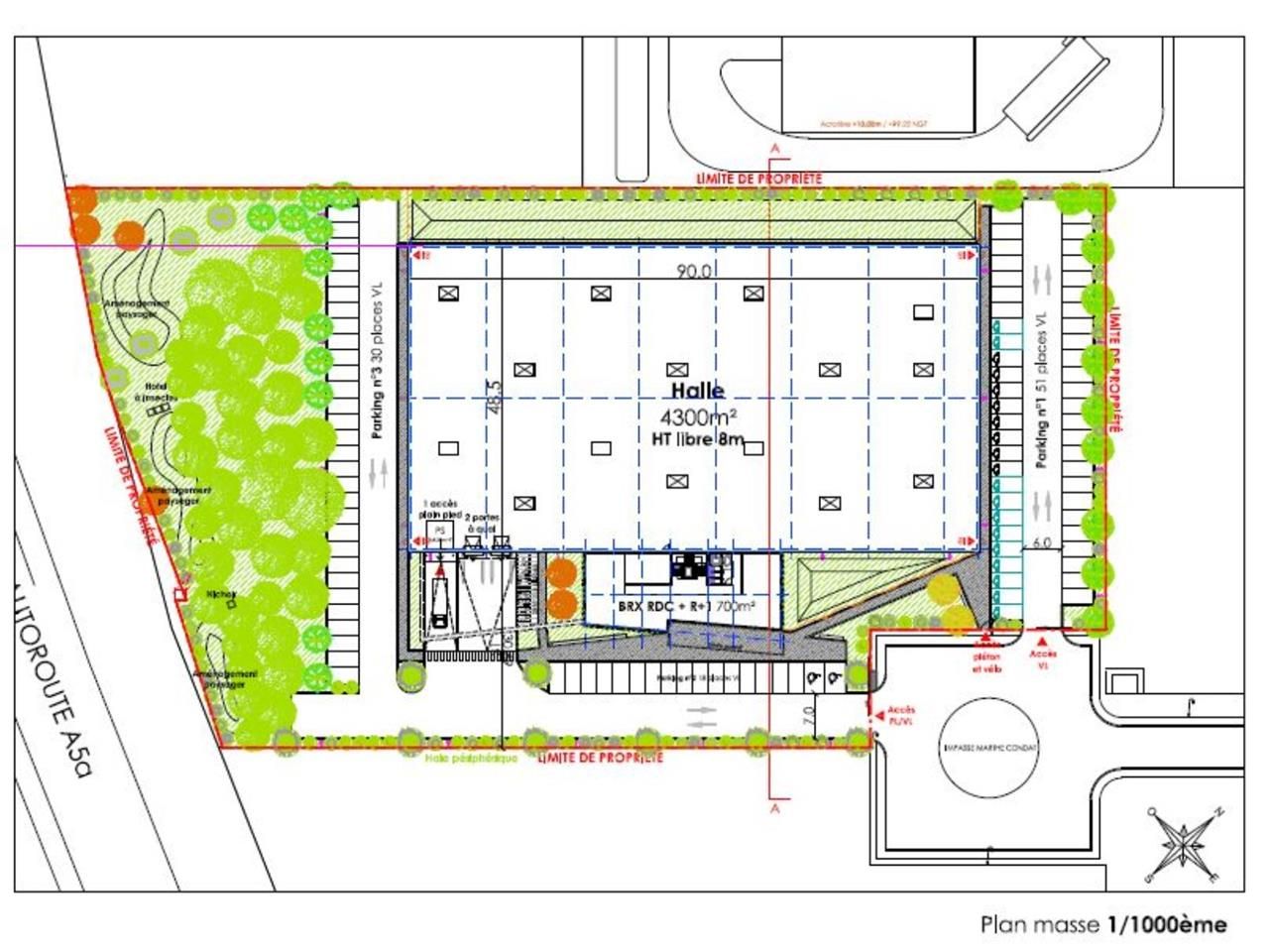
CBRE vous propose à vendre, un entrepôt/local d'activités dans un bâtiment indépendant. Situé sur la commune de Lieusaint dans le département de Seine-et-Marne (77) et au sein de la ZAC du Levant. Excellente localisation et à proximité immédiate de l'autoroute A5. Belle surface de 5 000 m² environ non divisible sur un terrain de 12 698 m². Entrepôt en vente idéal pour le développement de vos activités professionnelles. Projet dédié au secteur de l'activité et de l'industrie. Disponible 12 mois après début des travaux.
Mener à bien son projet d'implantation pour une activité industrielle doit passer par des locaux adaptés à ses besoins. Si cet entrepôt/local d'activités à vendre dans le 77 vous intéresse ou si vous souhaitez obtenir plus de renseignements, n'hésitez pas à me contacter aujourd'hui pour organiser une visite et bénéficier de toutes les informations nécessaires pour votre projet immobilier.
En tant qu'expert en immobilier industriel, je suis à votre disposition pour vous aider à trouver le bien disponible à la vente ou à la location, adapté à vos activités professionnelles et à votre coeur de métier, que ce soit un entrepôt, un local industriel, de stockage ou bien un local d'activités.
Régime Fiscal : Droits d'enregistrement
Honoraires : 5% HT du prix de vente à la charge de l'acquéreur
Prestations :
Accessibilité:
RER Ligne D Station "Lieusaint-Moissy"
Bus Véolia Transport
Autoroute Francilienne N 104/A5
Aeroport Orly à 20 min par l'A6 Roissy Charles de Gaulle à 40 min par la Francilienne
Les informations sur les risques auxquels ce bien est exposé sont disponibles sur le site Géorisques : www.georisques.gouv.fr
Mener à bien son projet d'implantation pour une activité industrielle doit passer par des locaux adaptés à ses besoins. Si cet entrepôt/local d'activités à vendre dans le 77 vous intéresse ou si vous souhaitez obtenir plus de renseignements, n'hésitez pas à me contacter aujourd'hui pour organiser une visite et bénéficier de toutes les informations nécessaires pour votre projet immobilier.
En tant qu'expert en immobilier industriel, je suis à votre disposition pour vous aider à trouver le bien disponible à la vente ou à la location, adapté à vos activités professionnelles et à votre coeur de métier, que ce soit un entrepôt, un local industriel, de stockage ou bien un local d'activités.
| Étage | Type | Surfaces | Dispo | Prix(m²) | Charges | Honoraires | Fiscal |
|---|---|---|---|---|---|---|---|
| Activités | 4300 | 12 mois ap. déb. trx | 1450 m² HD | n.c. | 5% HT du prix de vente à la charge de l'acquéreur | Droits d'enregistrement | |
| Bureaux | 700 | 12 mois ap. déb. trx | 1450 m² HD | n.c. | 5% HT du prix de vente à la charge de l'acquéreur | Droits d'enregistrement | |
| Parkings | 12 mois ap. déb. trx | n.c. | n.c. | 5% HT du prix de vente à la charge de l'acquéreur | Droits d'enregistrement |
Régime Fiscal : Droits d'enregistrement
Honoraires : 5% HT du prix de vente à la charge de l'acquéreur
Prestations :
- Permis purgé et obtenu
- 1 porte sectionnelle
- 8m hauteur libre dans la partie activités
- 2.7 m de hauteur libre dans les bureaux
- Local vélos
- Immeuble indépendant
- Surface RDC : 0 m²
- Surface terrain : 12698
- Nbr de portes à quai : 2
Accessibilité:
RER Ligne D Station "Lieusaint-Moissy"
Bus Véolia Transport
Autoroute Francilienne N 104/A5
Aeroport Orly à 20 min par l'A6 Roissy Charles de Gaulle à 40 min par la Francilienne
Les informations sur les risques auxquels ce bien est exposé sont disponibles sur le site Géorisques : www.georisques.gouv.fr
Emplacement(s) de Parking: 99 places
Voir plus
Afficher les consommations énergétiques
Favoris
Exporter
Appeler
Contacter
Signaler cette annonce
