A l’appui d’un réseau leader à l’international, I&L Solutions est une équipe de plus de 70 professionnels spécialisés en immobilier Logistique et Industriel au service des investisseurs, des propri ...
En savoir plus

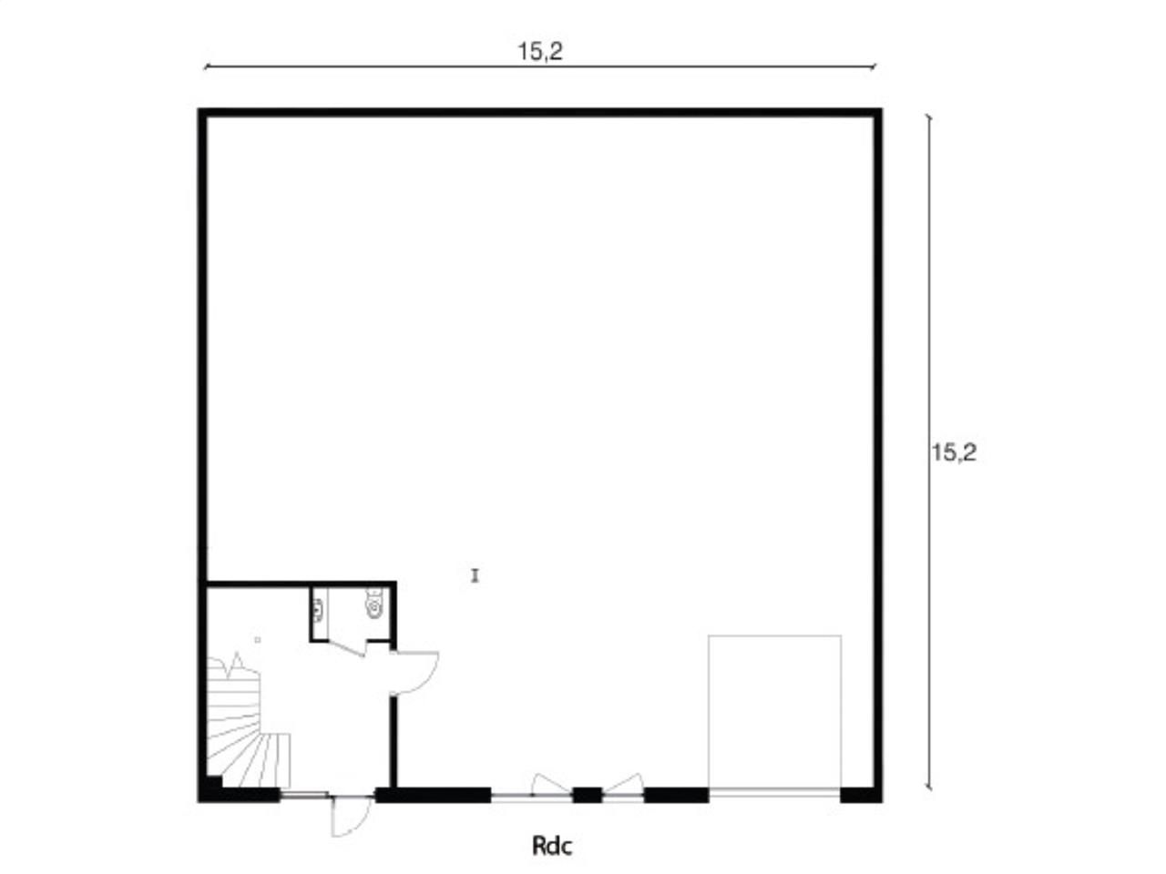
1 160 m² divisible dès 290 m²
Activité/Entrepôt à vendre - 1160 m²
Lieusaint (77127)
Dernière mise à jour : Il y a 21 jours
CBRE vous propose à vendre, un entrepôt/local d'activités bénéficiant de cellules neuves. Situé sur la commune de Lieusaint (77) dans le département de Seine-et-Marne, et à proximité de l'autoroute A5, sur la ligne D du RER d'Île-de-France. Ce local industriel est édifié sur un site clos et sécurisé, dispose d'une porte de plain-pied par lot et plusieurs places de parking. Surface de 1 160 m² divisibles à partir de 290 m². Entrepôt en vente idéal pour le développement de vos activités professionnelles. Disponible immédiatement.
Mener à bien son projet d'implantation pour une activité industrielle doit passer par des locaux adaptés à ses besoins. Si cet entrepôt/local d'activités à vendre dans le 77 vous intéresse ou si vous souhaitez obtenir plus de renseignements, n'hésitez pas à me contacter aujourd'hui pour organiser une visite et bénéficier de toutes les informations nécessaires pour votreprojet immobilier.
En tant qu'expert en immobilier industriel, je suis à votre disposition pour vous aider à trouver le bien disponible à la vente ou à la location, adapté à vos activités professionnelles et à votre coeur de métier, que ce soit un entrepôt, un local industriel, de stockage ou bien un local d'activités.
Régime Fiscal : T.V.A.
Honoraires : 5% HT du prix de vente HT à la charge de l'acquéreur
Prestations :
Accessibilité:
Transilien Lieusaint-Moissy (D)
Autoroute A104, A5, N6
Les informations sur les risques auxquels ce bien est exposé sont disponibles sur le site Géorisques : www.georisques.gouv.fr
Mener à bien son projet d'implantation pour une activité industrielle doit passer par des locaux adaptés à ses besoins. Si cet entrepôt/local d'activités à vendre dans le 77 vous intéresse ou si vous souhaitez obtenir plus de renseignements, n'hésitez pas à me contacter aujourd'hui pour organiser une visite et bénéficier de toutes les informations nécessaires pour votreprojet immobilier.
En tant qu'expert en immobilier industriel, je suis à votre disposition pour vous aider à trouver le bien disponible à la vente ou à la location, adapté à vos activités professionnelles et à votre coeur de métier, que ce soit un entrepôt, un local industriel, de stockage ou bien un local d'activités.
| Étage | Type | Surfaces | Dispo | Prix(m²) | Charges | Honoraires | Fiscal |
|---|---|---|---|---|---|---|---|
| RDC | Activités | 229 | Immédiate | 1870 m² HT | n.c. | 5% HT du prix de vente HT à la charge de l'acquéreur | T.V.A. |
| 1 | Bureaux | 61 | Immédiate | 1870 m² HT | n.c. | 5% HT du prix de vente HT à la charge de l'acquéreur | T.V.A. |
| Total Cellule 201 | Activités | 290 | Immédiate | 1870 m² HT | n.c. | 5% HT du prix de vente HT à la charge de l'acquéreur | T.V.A. |
| RDC | Activités | 229 | Immédiate | 1805 m² HT | n.c. | 5% HT du prix de vente HT à la charge de l'acquéreur | T.V.A. |
| 1 | Bureaux | 61 | Immédiate | 1805 m² HT | n.c. | 5% HT du prix de vente HT à la charge de l'acquéreur | T.V.A. |
| Total Cellule 202 | Activités | 290 | Immédiate | 1805 m² HT | n.c. | 5% HT du prix de vente HT à la charge de l'acquéreur | T.V.A. |
| RDC | Activités | 229 | Immédiate | 1805 m² HT | n.c. | 5% HT du prix de vente HT à la charge de l'acquéreur | T.V.A. |
| 1 | Bureaux | 61 | Immédiate | 1805 m² HT | n.c. | 5% HT du prix de vente HT à la charge de l'acquéreur | T.V.A. |
| Total Cellule 203 | Activités | 290 | Immédiate | 1805 m² HT | n.c. | 5% HT du prix de vente HT à la charge de l'acquéreur | T.V.A. |
| RDC | Activités | 229 | Immédiate | 1805 m² HT | n.c. | 5% HT du prix de vente HT à la charge de l'acquéreur | T.V.A. |
| 1 | Bureaux | 61 | Immédiate | 1805 m² HT | n.c. | 5% HT du prix de vente HT à la charge de l'acquéreur | T.V.A. |
| Total Cellule 204 | Activités | 290 | Immédiate | 1805 m² HT | n.c. | 5% HT du prix de vente HT à la charge de l'acquéreur | T.V.A. |
Régime Fiscal : T.V.A.
Honoraires : 5% HT du prix de vente HT à la charge de l'acquéreur
Prestations :
- Climatisation réversible Daikn dans les bureaux
- Borne de rechargement pour les véhicules électriques
- Fibre optique
- Panneaux photovoltaïques
- Porte sectionnelle de plain-pied hauteur 3,5m
- Chauffage aérotherme dans la partie activité
- Prises électriques bureaux/activités
- Alimentation triphasée bleu
- Eclairage naturel par Skydome
- Site avec clôture et portail
- Parking :
- Lot 201 : 6 places
- Lot 202 : 6 places
- Lot 203 : 6 places
- Lot 204 : 5 places
- Surface RDC : 916 m²
- Surface terrain : 0
- Haut. libre max. ss poutre : 7 m
- Résistance sol : 3 T/m²
- Ossature : Métallique
- Murs périmétriques : Bardage double peau
- Couverture : Bac acier double peau isolante
Accessibilité:
Transilien Lieusaint-Moissy (D)
Autoroute A104, A5, N6
Les informations sur les risques auxquels ce bien est exposé sont disponibles sur le site Géorisques : www.georisques.gouv.fr
Voir plus
Afficher les consommations énergétiques
Favoris
Exporter
Appeler
Contacter
Signaler cette annonce
