BNP Paribas Real Estate, N°1 de la transaction en immobilier d''entreprise en France, vous propose un accompagnement de qualité pour l''acquisition, la vente ou la location d''un bien immobilier.Vo ...
En savoir plus

5 000 m²
Activité/Entrepôt à vendre - 5000 m²
Lieusaint (77127)
Dernière mise à jour : Hier
LIEUSAINT (77) - A VENDRE - LOUER ACTIVITE / BUREAUX - BNP PARIBAS REAL ESTATE vous propose un batiment indépendant à vendre ou à louer à Lieusaint
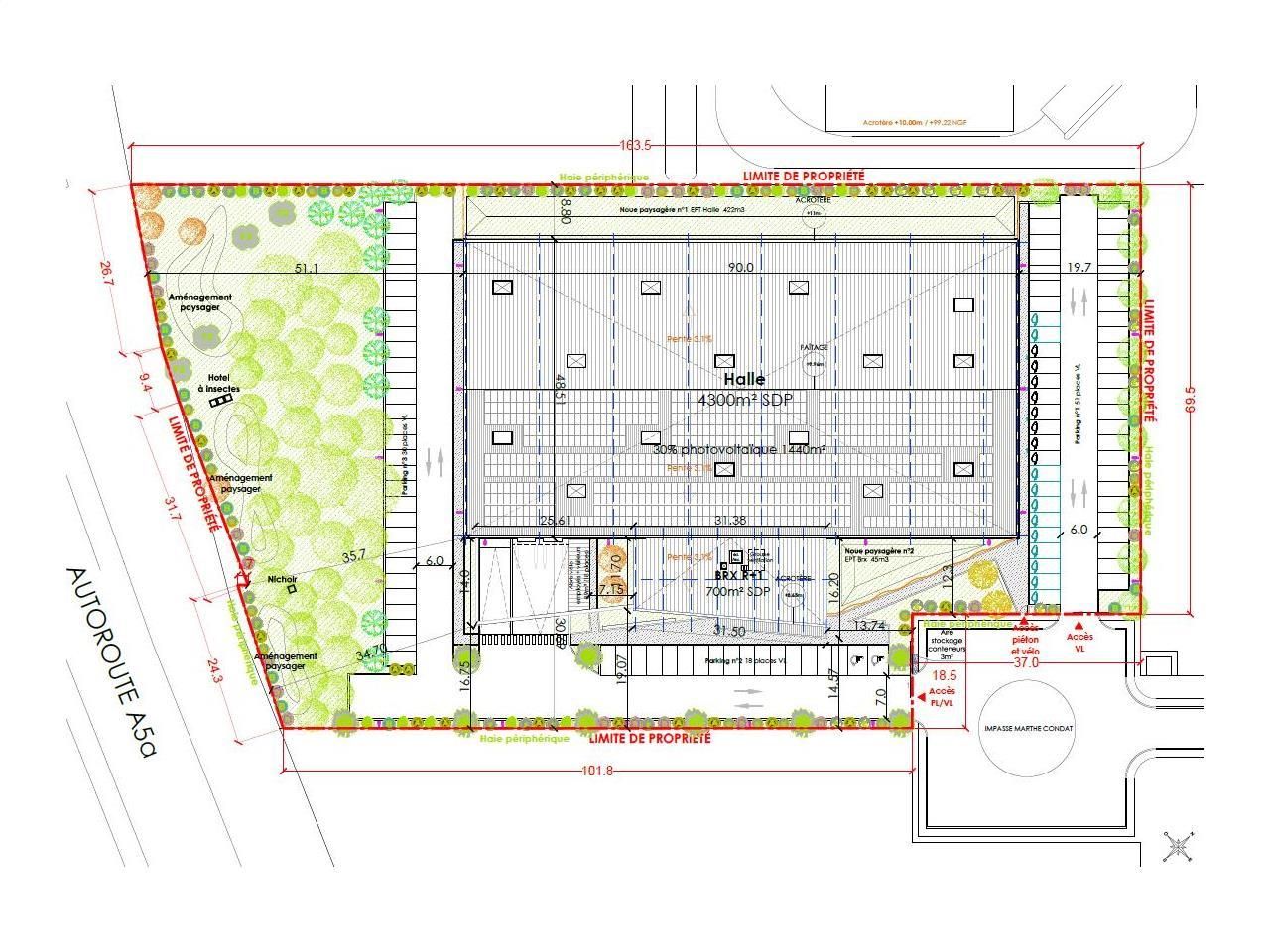
BNP PARIBAS REAL ESTATE vous propose, à la location ou à l'acquisition un bâtiment d'activité neuf d’une surface de 5 000 m².
Le bâtiment offre de grands plateaux permettant une grande flexibilité d'aménagement, un accès aux véhicules légers/lourds et de nombreuses autres services et prestations techniques. Ces locaux bénéficient d’une accessibilité remarquable dans un environnement tertiaire et dynamique.
Accessibilité :
- Accès routier : A5;N104;N6
- RER D :Lieusaint Moissy
- Bus 27 : Levant Margurite
Services/prestations
- Porte d'accès plain-pied : 1
- Porte d'accès à quai : 2
- Hauteur sous poutre : 8m
- 1 440m² de panneaux photovoltaïque
- Parking : 99 places
Pour toute information complémentaire, n'hésitez pas à prendre contact avec nos consultants BNP PARIBAS REAL ESTATE.
Disponibilité: 9 mois après accordHonoraires: 5% HT du prix HT/HD. à la signature de l'acte authentique
| Fiche technique du bien | |
|---|---|
| RER | D LIEUSAINT MOISSY |
| Bus | 27 : LEVANT MARGUERITE PEREY |
| Desserte routière | A5, N104, N6 |
| Etat de l'immeuble | Neuf |
| Etat des locaux | Neuf |
| Parking(s) | 99 Places |
| Climatisation | Oui |
| Charpente | Béton |
| Hauteur sous poutre | 8,00 mètre(s) |
| Porte(s) d'accès plain-pied | 1 |
| Porte(s) d'accès à quai | 2 PL |
Afficher les consommations énergétiques
Favoris
Exporter
Appeler
Contacter
Signaler cette annonce










