Conseil en immobilier d'entreprise, Cushman & Wakefield est un acteur incontournable au rayonnement international. Cushman & Wakefield offre des solutions dans toutes les étapes que comporte un p ...
En savoir plus



4 623 m² divisible dès 542 m²
HT HC
HIGHLANDS PARK - Location activité/entrepôt - 4623 m²
Heyrieux (38540)
Dernière mise à jour : Il y a 4 mois
A LOUER CELLULES D'ACTIVITE AU SEIN D'UN PARC D'ACTIVITE NEUF SUR LA COMMUNE D'HEYRIEUX (38540)
Immeuble HIGHLANDS PARK
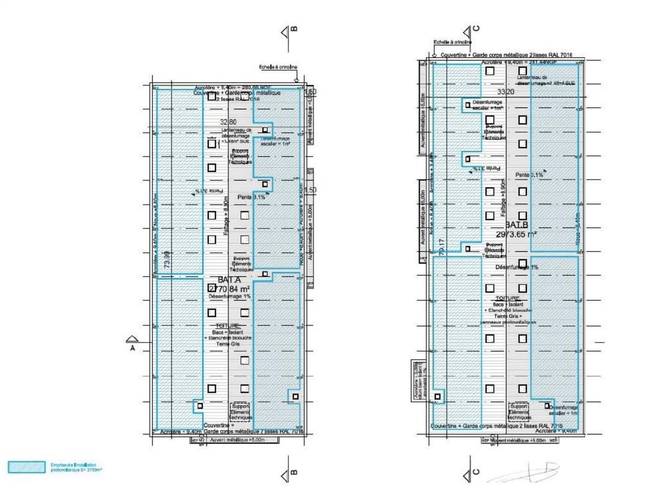
C&W vous propose à la location des locaux d'activité dans un parc industriel de dernière génération, idéalement situé sur la commune de Heyrieux (38540).
Ce parc clos et sécurisé se compose de deux bâtiments (A et B), comprenant chacun quatre locaux d'activité modernes et fonctionnels.
Avec une surface totale d'environ 5 700 m², le site propose des espaces à louer à partir de 550 m², adaptés aux besoins variés des entreprises.
Chaque cellule comprend des bureaux aménagés en open-space (non câblés) ainsi qu'une partie dédiée à l'activité, accessible via une porte sectionnelle de plain-pied, idéale pour des activités industrielles, artisanales ou logistiques.
Situés au coeur de la zone industrielle d'Heyrieux (38540), ces locaux bénéficient d'une excellente visibilité depuis le chemin de Savoyan et d'une accessibilité optimale grâce aux différents accès routier et autoroutiers tels que la RD 518, reliant le parc industriel de Chesnes (38070),
la RD 75 et l'autoroute A43.
Ces locaux industriels et d'activités sont parfaitement adaptés pour des activités de production, stockage, show-room ou laboratoire.
Régime Fiscal : T.V.A.
Dépôt de garantie : 3 mois de loyer HT/HC
Paiement Loyer : Trimestriel
Honoraires : 15 % HT du loyer annuel HT/HC à la charge du preneur.
Information sur le Bail :
Si signature avant livraison : bail en l'état futur d'achèvement, bail commercial 6-9-12 ans
Prestations :
Accessibilité:
Aéroport Lyon Saint Exupéry à 15 min environ en voiture via la D53D
Accès routier Sortie 12 de l'A46 à Saint-Priest puis par la RD 318
Accès routier A43 à 6 km
Accès routier RN6 depuis la sortie 5 de Saint-Quentin-Fallavier
Accès routier Vienne avec la RD 75
Les informations sur les risques auxquels ce bien est exposé sont disponibles sur le site Géorisques : www.georisques.gouv.fr
Immeuble HIGHLANDS PARK
C&W vous propose à la location des locaux d'activité dans un parc industriel de dernière génération, idéalement situé sur la commune de Heyrieux (38540).
Ce parc clos et sécurisé se compose de deux bâtiments (A et B), comprenant chacun quatre locaux d'activité modernes et fonctionnels.
Avec une surface totale d'environ 5 700 m², le site propose des espaces à louer à partir de 550 m², adaptés aux besoins variés des entreprises.
Chaque cellule comprend des bureaux aménagés en open-space (non câblés) ainsi qu'une partie dédiée à l'activité, accessible via une porte sectionnelle de plain-pied, idéale pour des activités industrielles, artisanales ou logistiques.
Situés au coeur de la zone industrielle d'Heyrieux (38540), ces locaux bénéficient d'une excellente visibilité depuis le chemin de Savoyan et d'une accessibilité optimale grâce aux différents accès routier et autoroutiers tels que la RD 518, reliant le parc industriel de Chesnes (38070),
la RD 75 et l'autoroute A43.
Ces locaux industriels et d'activités sont parfaitement adaptés pour des activités de production, stockage, show-room ou laboratoire.
| Étage | Type | Surfaces | Dispo | Loyer | Charges | Type de bailRév. annuelle |
|---|---|---|---|---|---|---|
| R+1 | Bureaux | 57,67 | 135 | Sur l'indice ILAT | ||
| RdC | Activités | 427,84 | 80 | Sur l'indice ILAT | ||
| RdC | Bureaux | 58,58 | 135 | Sur l'indice ILAT | ||
| Total Cellule A2 | Activités | 544,09 | 91,75 HT/HC/m²/an | 6-9-12 ansSur l'indice ILAT | ||
| R+1 | Bureaux | 55,77 | 135 | Sur l'indice ILAT | ||
| RdC | Activités | 431,34 | 80 | Sur l'indice ILAT | ||
| RdC | Bureaux | 55,14 | 135 | Sur l'indice ILAT | ||
| Total Cellule A3 | Activités | 542,25 | 91,25 HT/HC/m²/an | 6-9-12 ansSur l'indice ILAT | ||
| R+1 | Bureaux | 59,15 | 135 | Sur l'indice ILAT | ||
| RdC | Activités | 445,72 | 80 | Sur l'indice ILAT | ||
| RdC | Bureaux | 58,58 | 135 | Sur l'indice ILAT | ||
| Total Cellule A4 | Activités | 563,45 | 91,49 HT/HC/m²/an | 6-9-12 ansSur l'indice ILAT | ||
| R+1 | Bureaux | 215,53 | 135 | Sur l'indice ILAT | ||
| RdC | Activités | 997,73 | 80 | Sur l'indice ILAT | ||
| RdC | Bureaux | 92,44 | 135 | Sur l'indice ILAT | ||
| Total Cellule B5 | Activités | 1305,7 | 92,97 HT/HC/m²/an | 6-9-12 ansSur l'indice ILAT | ||
| R+1 | Bureaux | 57,67 | 135 | Sur l'indice ILAT | ||
| RdC | Activités | 433,82 | 80 | Sur l'indice ILAT | ||
| RdC | Bureaux | 58,59 | 135 | Sur l'indice ILAT | ||
| Total Cellule B6 | Activités | 550,08 | 91,62 HT/HC/m²/an | 6-9-12 ansSur l'indice ILAT | ||
| R+1 | Bureaux | 55,77 | 135 | Sur l'indice ILAT | ||
| RdC | Activités | 437,32 | 80 | Sur l'indice ILAT | ||
| RdC | Bureaux | 55,14 | 135 | Sur l'indice ILAT | ||
| Total Cellule B7 | Activités | 548,23 | 91,13 HT/HC/m²/an | 6-9-12 ansSur l'indice ILAT | ||
| R+1 | Bureaux | 59,15 | 135 | Sur l'indice ILAT | ||
| RdC | Activités | 451,92 | 80 | Sur l'indice ILAT | ||
| RdC | Bureaux | 58,59 | 135 | Sur l'indice ILAT | ||
| Total Cellule B8 | Activités | 569,66 | 91,37 HT/HC/m²/an | 6-9-12 ansSur l'indice ILAT |
Régime Fiscal : T.V.A.
Dépôt de garantie : 3 mois de loyer HT/HC
Paiement Loyer : Trimestriel
Honoraires : 15 % HT du loyer annuel HT/HC à la charge du preneur.
Information sur le Bail :
Si signature avant livraison : bail en l'état futur d'achèvement, bail commercial 6-9-12 ans
Prestations :
- Terrain de 15 018 m²
- Site sécurisé par portail coulissant et barrière levante
- Clôtures treillis soudé
- Portillon avec digicode
- 127 stationnements VL,
- Fourreaux pour véhicules électriques
- Espaces verts
- Mats d'éclairage
- Planimètre en entrée de site
- Panneaux photovoltaïques en toiture
- Local poubelle en entrée de site
- Abris vélo
- Certification BREEAM VERY GOOD
- Activité-
- Charpente métallique et bardage double peau
- Auvents extérieurs
- Hauteur sous poutre : 7,5 mètres
- Charge de la dalle : activité 3T/m², bureau 500kg/m², mezzanine 350 kg/m²
- Exutoires de fumée en toiture
- Murs séparatifs en maçonnerie
- Menuiseries extérieures en aluminium
- Escalier métallique et garde-corps pour l'accès à la mezzanine
- Une porte sectionnelle motorisée de plain pied 3 m x 4,5 m par lot
- Quais PL avec aire de béquillage et niveleurs pour les lots 1 et 5
- Tarif Jaune (60 KVA) pour chaque lot
- Chauffage de l'atelier par aérotherme gaz
- RIA et détection incendie pour les lots 1 et 5
- Alarme incendie pour les autres lots
- Bureaux-
- Livrés aménagés non cloisonnés ( courant fort inclus)
- Sanitaires et WC carrelés toute hauteur
- Carrelage en RDC et sol PVC en étage
- Climatisation réversible
- Fourreau pour la fibre optique
- Surface RDC : 4970,94 m²
Accessibilité:
Aéroport Lyon Saint Exupéry à 15 min environ en voiture via la D53D
Accès routier Sortie 12 de l'A46 à Saint-Priest puis par la RD 318
Accès routier A43 à 6 km
Accès routier RN6 depuis la sortie 5 de Saint-Quentin-Fallavier
Accès routier Vienne avec la RD 75
Les informations sur les risques auxquels ce bien est exposé sont disponibles sur le site Géorisques : www.georisques.gouv.fr
Voir plus
Afficher les consommations énergétiques
Localisation et transport aux alentours
Favoris
Exporter
Appeler
Contacter
Signaler cette annonce










