Avec près de 80 implantations en France, Arthur Loyd est le premier Réseau National de Conseil en Immobilier d’Entreprise. Nous vous accompagnons dans vos projets sur l’ensemble du territoire natio ...
En savoir plus

1 723 m²
Activité/Entrepôt à vendre - 1723 m²
Saint-Étienne-du-Rouvray (76800)
Dernière mise à jour : Hier
Produit Rare - Faite l'acquisition de vos locaux et profitez d'une implantation au coeur de la Zone du Technopole du Madrillet.
Bâtiment de Bureaux et Stockage indépendant de 1.723 m2 disponible en VEFA
Régime Fiscal : TVA
Honoraires : 4% HT du prix NV à la charge de l'acquéreur
Prestations :
Accessibilité:
Autoroute Accès direct depuis et vers l'A 13 entre Paris et Le Havre Au Nord, A 150 via la SUD III et A 28 via le Boulevard Industriel
Route Accès rapide à Rouen et communes voisines
SNCF Gare SNCF de Oissel à 7 km
Les informations sur les risques auxquels ce bien est exposé sont disponibles sur le site Géorisques : www.georisques.gouv.fr
Bâtiment de Bureaux et Stockage indépendant de 1.723 m2 disponible en VEFA
| Étage | Type | Surfaces | Dispo | Prix(m²) | Charges | Honoraires | Fiscal |
|---|---|---|---|---|---|---|---|
| 1 | Bureaux | 413,6 | n.c. | n.c. | 4% HT du prix NV à la charge de l'acquéreur | TVA | |
| RDC | Entrepôts | 892,4 | n.c. | n.c. | 4% HT du prix NV à la charge de l'acquéreur | TVA | |
| RDC | Bureaux | 417 | n.c. | n.c. | 4% HT du prix NV à la charge de l'acquéreur | TVA | |
| Total Cellule | Activités | 1723 | n.c. | n.c. | 4% HT du prix NV à la charge de l'acquéreur | TVA |
Régime Fiscal : TVA
Honoraires : 4% HT du prix NV à la charge de l'acquéreur
Prestations :
- Situé au coeur du Technopôle du Madrillet, à Saint-Étienne-du-Rouvray , qui est un pôle d'excellence dédié à l'innovation et à la recherche. Il regroupe des entreprises, laboratoires, et établissements d'enseignement supérieur, notamment dans les domaines de l'énergie, des matériaux, et des technologies avancées.
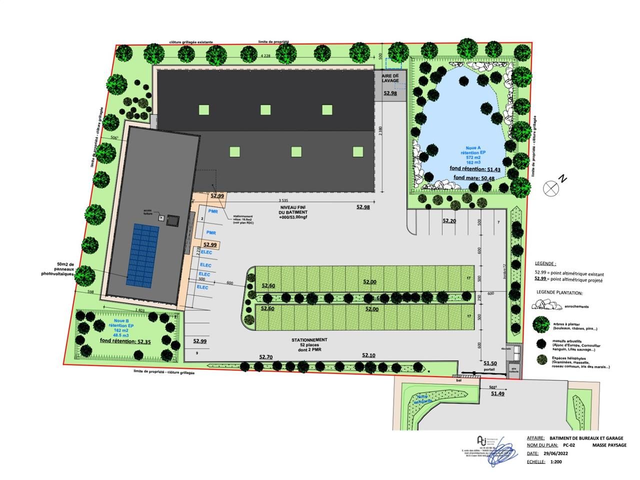
- Sur un terrain indépendant de 5.450 m2, un programme neuf de Bureaux et Stockage d'une superficie totale d'environ 1.723 m2, disponible à la vente (VEFA).
- Aménagements :
- Livraison brut/ fluides en attentes. Possibilité d'aménagement et. cloisonnement sur demande
- Le bâtiment sera principalement constitué d'une ossature en béton armé pour la partie bureaux et d'une ossature métallique ou bois pour la partie atelier/garage, avec une couverture multicouche et un enduit monocouche pour la partie bureaux, et une couverture multicouche et un bardage double peau pour la partie atelier/stockage.
- Les ouvrages de la partie bureaux seront dimensionnés de sorte à recevoir l'installation de panneaux photovoltaïques sur une partie de la toiture (voir plan de masse).
- 52 places de stationnement VL dont 2 PMR
- Site entièrement clos et accessible pas un portail coulissant électrique
- Possibilité de chiffrer un aménagement et d'envisager une location.
- Immeuble indépendant
- Surface RDC : 0 m²
- Surface terrain : 5449
- Haut. libre min. ss poutre : 6 m
- Résistance sol : 1 T/m²
- Nbr de portes plain pied : 4
- Murs périmétriques : Double bardage
- Couverture : Bac acier isolé
Accessibilité:
Autoroute Accès direct depuis et vers l'A 13 entre Paris et Le Havre Au Nord, A 150 via la SUD III et A 28 via le Boulevard Industriel
Route Accès rapide à Rouen et communes voisines
SNCF Gare SNCF de Oissel à 7 km
Les informations sur les risques auxquels ce bien est exposé sont disponibles sur le site Géorisques : www.georisques.gouv.fr
Voir plus
Afficher les consommations énergétiques
Localisation et transport aux alentours
Favoris
Exporter
Appeler
Contacter
Signaler cette annonce
