Leader mondial des services dédiés à l'immobilier d'entreprise, Cushman & Wakefield accompagne ses clients dans la transformation de leurs modes de travail, de consommation et de vie. Nos 43 000 co ...
En savoir plus

3 893 m² divisible dès 277 m²
Bureau à vendre - 3893 m²
Schiltigheim (67300)
Publiée : Il y a 1 mois
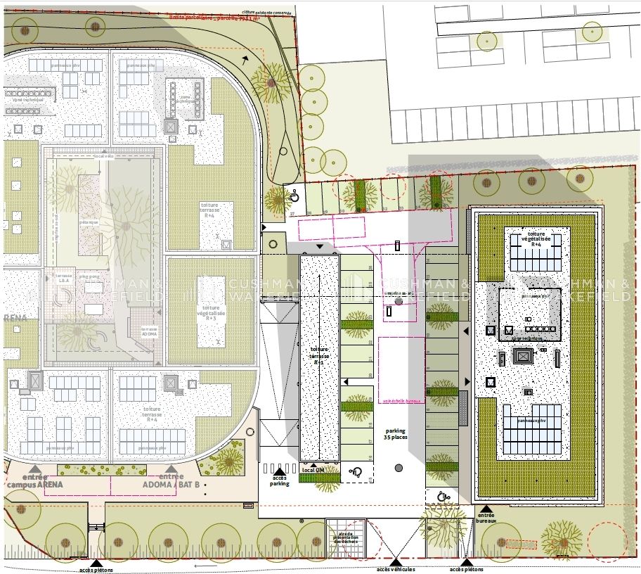
Immeuble de bureaux en R+4 plus sous sol, certifié PASSIVHAUS & RE2020 à construire à SCHILTIGHEIM, Espace Européen de l'Entreprise, un des pôles tertiaires majeurs de l''agglomération tant par sa taille que par sa situation géographique en bordure d''autoroute Considéré comme l'un des sites d'excellence de l'Eurométropole de Strasbourg, il bénéficie également d'un BHNS (Bus à Haut Niveau de Service), ligne G, garantissant un trajet de 14 minutes jusqu'à la gare de Strasbourg. Pour faire de cet espace un lieu de vie ou il fait bon vivre, des pistes cyclables et chemins piétons arborés et végétalisés ont été élaborés, un lac a été créé en son centre, recueillant les eaux de pluie et permettant une vie aquatique spontanée. De nombreux services sont également proposés aux utilisateurs : restauration, restauration rapide, hôtellerie, banque, professions médicales et paramédicales, activités de bien être, résidence étudiante, crèche d'entreprise, salle de sport, ... Le département Bureaux & Investissement de Cushman & Wakefield Strasbourg est à votre entière disposition pour vous apporter plus de précisions concernant ces bureaux à louer ou à acquérir à Schiltigheim. N'hésitez plus, contactez-nous ! Honoraires à la charge du Preneur / de l'Acquéreur : - Location : 15 % HT du loyer annuel HT/HC - Vente : 5 % HT du prix de vente HD/HF Immeuble neuf certifié Passivhaus, suivant les normes RE2020 avec un confort thermique dans l'optique du décret tertiaire 2050. L'immeuble est ERPable, une étude sera à établir en fonction du cahier des charges du client. . Sol moquette . Revêtement mural . Faux-plafonds en dalles avec Led . Bloc sanitaire en parties communes pour chaque étage . Arrivée et évacuation d''eau en attente pour la caféteria . Brise Soleil Orientables . Chauffage/climatisation réversible Ascenseur desservant l'ensemble des niveaux Parking(s) : 72 places de parking en sous-sol dont 24 immédiatement en sous sol de l'immeuble de bureaux / 20 places de parking en extérieur dont 5 PMR. Tous les stationnements seront pré-équipés pour l''installation de bornes de recharge. 80 places pour vélos sécurisées en sous-sol Lancement de l'opération sous la réserve d'une précommercialisation de 50 % de l'immeuble TGV à 10 mn en bus ou voiture Bus : CTS lignes 19 - 70 - 50 et 6 BHNS : ligne G reliant la gare TGV en 14 mn Accès routier : autoroute A4 sortie Schiltigheim
Voir plus
Afficher les consommations énergétiques
Surfaces divisibles : 9
| Surface | PrixHD/HH/m² | Étage / Batiment |
| 401 m² | 185 € | 1 |
| 401 m² | 185 € | 1 |
| 401 m² | 185 € | 2 |
| 401 m² | 185 € | 2 |
| 401 m² | 185 € | 3 |
| 401 m² | 185 € | 3 |
| 802 m² | 185 € | 4 |
| 408 m² | 185 € | 0 |
| 277 m² | 185 € | 0 |
Localisation et transport aux alentours
Favoris
Exporter
Appeler
Contacter
Signaler cette annonce
