Nous sommes Immprove, une grande équipe de plus de 200 experts en immobilier d’entreprise, implantés localement avec plus de 20 agences sur tout le territoire.Depuis 2009, notre proximité, notre ét ...
En savoir plus



752 m²
Bureau à vendre - 752 m²
Paris 10 (75010)
Dernière mise à jour : Il y a 6 jours
Bureaux lumineux
IMMPROVE vous propose une opportunité rare en plein coeur de Paris : 752 m² de bureaux disponibles à l'acquisition, en un seul lot (non divisibles) Un hall d'accueil des bureaux individuels, ainsi que des open-spaces pour optimiser la fonctionnalité et le confort.
Ces bureaux bénéficient d'une grande luminosité, de beaux volumes et sont entièrement accessibles aux personnes à mobilité réduite (PMR). Idéalement situés, ils conviennent à un large éventail d'activités professionnelles.
Régime Fiscal : Droits d'enregistrement
Honoraires : 5% HT du prix de vente à la charge de l'acquéreur
Prestations :
Accessibilité:
SNCF Gare de l'Est (P)
SNCF Gare du Nord (H,K)
Métro Poissonnière (7)
Métro Château d'Eau (4)
Métro Gare de l'Est (4,5,7)
Métro Bonne Nouvelle (8,9)
Métro Gare du Nord (4,5)
Métro Barbès - Rochechouart (2,4)
Métro Sentier (3)
RER Gare du Nord (B,D)
RER Magenta (E)
Bus Hauteville (32)
Bus Paradis (39)
Bus Square Montholon (26,43,45)
Bus Magenta - Gare de l'Est (56)
Bus La Fayette - Magenta - Gare du Nord (31,54)
Bus Valenciennes (38)
Bus Gare de l'Est (46)
Bus Gare du Nord (91)
Route La Fayette - Magenta - Gare du Nord (N01,N02,N14,N44)
Route Paris Est (N140,N142,N143,N146)
Route Gare de l'Est (N41,N42,N43,N45,N141)
Route Château d'Eau (N13)
Les informations sur les risques auxquels ce bien est exposé sont disponibles sur le site Géorisques : www.georisques.gouv.fr
IMMPROVE vous propose une opportunité rare en plein coeur de Paris : 752 m² de bureaux disponibles à l'acquisition, en un seul lot (non divisibles) Un hall d'accueil des bureaux individuels, ainsi que des open-spaces pour optimiser la fonctionnalité et le confort.
Ces bureaux bénéficient d'une grande luminosité, de beaux volumes et sont entièrement accessibles aux personnes à mobilité réduite (PMR). Idéalement situés, ils conviennent à un large éventail d'activités professionnelles.
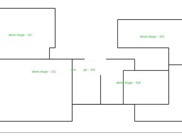
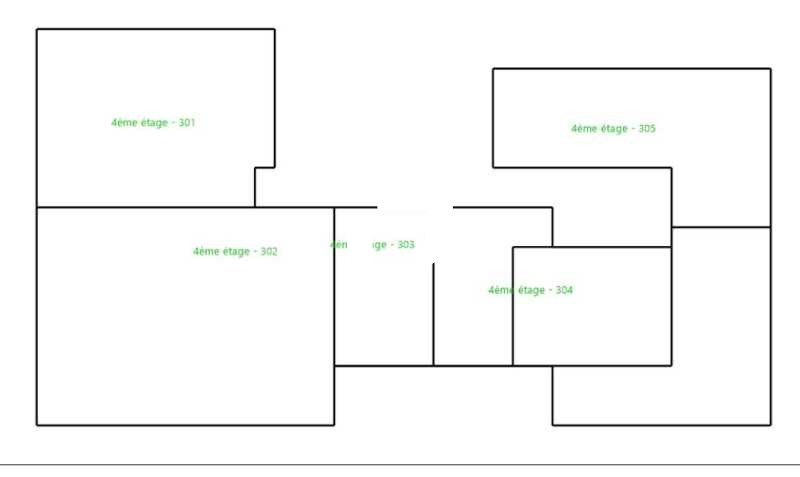
| Étage | Type | Surfaces | Dispo | Prix(m²) | Charges | Honoraires | Fiscal |
|---|---|---|---|---|---|---|---|
| 4 | Bureaux | 752 | Immédiate | 9973 m² HD | 90 m²/an HT | 5% HT du prix de vente à la charge de l'acquéreur | Droits d'enregistrement |
Régime Fiscal : Droits d'enregistrement
Honoraires : 5% HT du prix de vente à la charge de l'acquéreur
Prestations :
- Immeuble restructuré
- Accès PMR
- Aire de chargement
- Ascenseur
- Ascenseur PMR
- Monte-charge
- Gardiennage
- Télésurveillance
- PC sécurité
- Site sécurisé 24h/24h
- Site clos
- Sas d'entrée
- Chauffage immeuble fuel
- Fibre optique
- Hôtesse d'accueil
- Cour
- Travaux à prévoir
- Accueil
- Espace ouvert
- Bureaux cloisonnés
- Salle de réunion
- Espace détente
- Local technique
- Sanitaires privatifs
- Locaux lumineux
- Décloisonnement possible
- Locaux rationnels et modulables
- Faux plafonds
- Câblage informatique et téléphonique
- Prises RJ45
- Possibilité de normes E.R.P.
- Chauffage central
Accessibilité:
SNCF Gare de l'Est (P)
SNCF Gare du Nord (H,K)
Métro Poissonnière (7)
Métro Château d'Eau (4)
Métro Gare de l'Est (4,5,7)
Métro Bonne Nouvelle (8,9)
Métro Gare du Nord (4,5)
Métro Barbès - Rochechouart (2,4)
Métro Sentier (3)
RER Gare du Nord (B,D)
RER Magenta (E)
Bus Hauteville (32)
Bus Paradis (39)
Bus Square Montholon (26,43,45)
Bus Magenta - Gare de l'Est (56)
Bus La Fayette - Magenta - Gare du Nord (31,54)
Bus Valenciennes (38)
Bus Gare de l'Est (46)
Bus Gare du Nord (91)
Route La Fayette - Magenta - Gare du Nord (N01,N02,N14,N44)
Route Paris Est (N140,N142,N143,N146)
Route Gare de l'Est (N41,N42,N43,N45,N141)
Route Château d'Eau (N13)
Les informations sur les risques auxquels ce bien est exposé sont disponibles sur le site Géorisques : www.georisques.gouv.fr
Voir plus
Afficher les consommations énergétiques
Localisation et transport aux alentours
Favoris
Exporter
Appeler
Contacter
Signaler cette annonce










