L’agence CBRE Nantes conseille et accompagne les chefs d’entreprise dans leurs projets immobiliers quels que soient leur taille et leur secteur d’activité. Spécialistes de la transaction de bureaux ...
En savoir plus

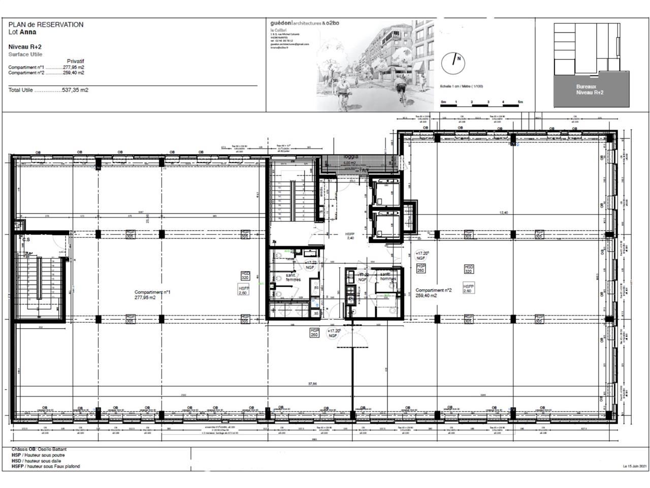
314 m²
Bureau à vendre - 314 m²
Nantes (44000)
Dernière mise à jour : Il y a 4 jours
Immeuble ANNA
Au coeur de l'ile de Nantes, au sein du Quartier République, CBRE vous propose à la vente , une surface de bureaux de 313,87 m² SUBL dans un immeuble neuf de très bon standing.
Au sein d'un programme tertiaire avec de belles prestations, bénéficiant d'une bonne performance technique mais également environnementale. CBRE vous propose, 1 plateau de bureaux fonctionnel et lumineux. La surface est livrée aménagée, non cloisonnée. Services, prestations haut de gamme, coursives / terrasses, douches et vestiaires, parkings en sous-sol.
Régime Fiscal : T.V.A.
Honoraires : Nous consulter
Prestations :
Accessibilité:
Bus Gustave Roch (132), MIN (26, LU), République (C5)
Tramway Vincent Gâche (2, 3)
Les informations sur les risques auxquels ce bien est exposé sont disponibles sur le site Géorisques : www.georisques.gouv.fr
Au coeur de l'ile de Nantes, au sein du Quartier République, CBRE vous propose à la vente , une surface de bureaux de 313,87 m² SUBL dans un immeuble neuf de très bon standing.
Au sein d'un programme tertiaire avec de belles prestations, bénéficiant d'une bonne performance technique mais également environnementale. CBRE vous propose, 1 plateau de bureaux fonctionnel et lumineux. La surface est livrée aménagée, non cloisonnée. Services, prestations haut de gamme, coursives / terrasses, douches et vestiaires, parkings en sous-sol.
| Étage | Type | Surfaces | Dispo | Prix(m²) | Charges | Honoraires | Fiscal |
|---|---|---|---|---|---|---|---|
| 2 | Bureaux | 313,87 | Immédiate | 4100 m² HD | n.c. | Nous consulter | T.V.A. |
Régime Fiscal : T.V.A.
Honoraires : Nous consulter
Prestations :
- Hall d'accueil
- Accès PMR
- Ascenseurs
- Climatisation réversible
- Douches et vestiaires
- Coursives / Terrasse
- Local Vélo
- RT 2012
- Immeuble code du travail
- Plateaux fonctionnels livrés aménagés non cloisonnés
- Emplacements de parking disponibles
- Nombreux commerces et services de proximité (restaurations.)
Accessibilité:
Bus Gustave Roch (132), MIN (26, LU), République (C5)
Tramway Vincent Gâche (2, 3)
Les informations sur les risques auxquels ce bien est exposé sont disponibles sur le site Géorisques : www.georisques.gouv.fr
Voir plus
Afficher les consommations énergétiques
Localisation et transport aux alentours
Favoris
Exporter
Appeler
Contacter
Signaler cette annonce










