Notre équipe est composée d''experts du marché immobilier d''entreprise, et renforce ainsi notre position de leader des transactions immobilières à Toulouse. Notre mission est de vous guider afin d ...
En savoir plus

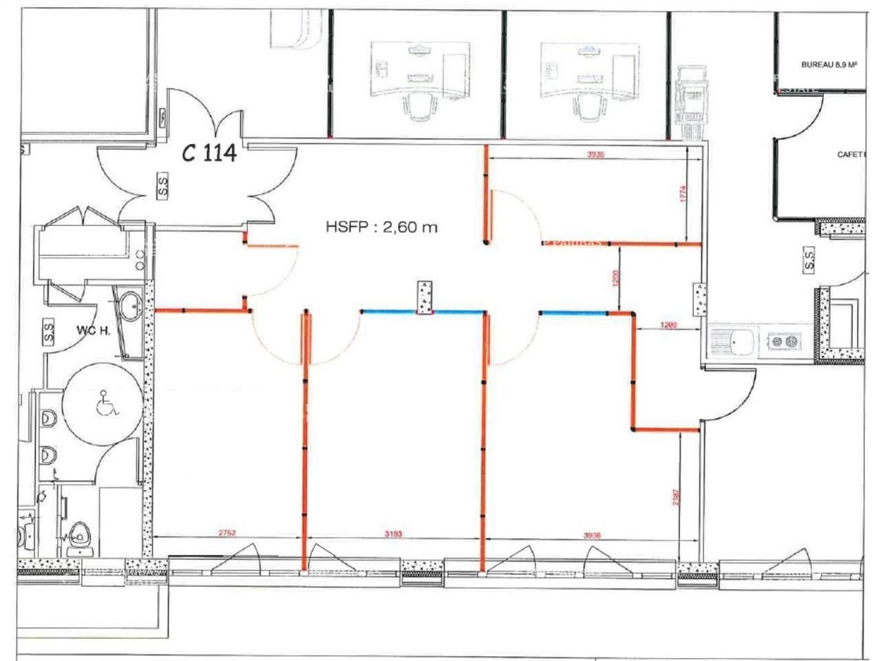
Location bureau - 380 m²
PRESTATIONS :
bureaux lumineux et fonctionnels
climatisation double flux chaud / froid
faux plafonds : dalle en fibre minérale
Sols : moquette à l'étage
plinthes techniques en périphérie : cblage RJ 45 selon les lots
éclairage des bureaux par luminaires encastrés
sanitaires communs
places de parking extérieures
site clos / contrôle d'accès
1 place de parking par lot sauf le lot 121
ACCESSIBILITE :
Arrêt de bus "Langlade" lignes L5 et et 152 à 1 min
Accès immédiat périphérique extérieur
Gare TER Gallieni à 5 min à pied
Les bureaux sont disponibles à la location avec un bail commercial 3/6/9 ans.
Zoom du Basso Cambo :
Cette vaste zone d'activités de la métropole accueille des acteurs majeurs de l'aéronautique, du spatial et de l'industrie. Bien desservie par le métro et la rocade, elle évolue d'un site industriel vers un pôle mixte dynamique. Des projets structurants sont en cours, dont un centre commercial avec cinéma et espace de loisirs. L'offre immobilière comprend des bureaux attractifs et des locaux adaptés à l'industrie, avec une volonté affirmée de modernisation et de diversification.
Disponibilité: ImmédiateHonoraires: 15% HT du loyer HT/HC. à la signature du bail
| Fiche technique du bien | |
|---|---|
| Bus | accès immédiat |
| Aéroport | 4 km |
| Gare | 290 m |
| Accès Pers. Mobilité Réduite | Oui |
| Etat de l'immeuble | Etat d'usage |
| Etat des locaux | Etat d'usage |
| Climatisation | Réversible |
| Sécurité | Contrôle d'accès |
| Ascenseur(s) | Oui |
| Câblage informatique | Oui |
| Aménagement des bureaux | Cloisonnés |
| Faux plafond | Dal. fibres minéral. |
| Eclairage Bureaux | Luminaires encastrés |
| Sol bureaux | Moquette |
| Plinthes techniq.périphériques | Oui |
| Sanitaire(s) | Parties communes |










