L’agence CBRE Bordeaux conseille et accompagne les chefs d’entreprise dans leurs projets immobiliers quels que soient leur taille et leur secteur d’activité. Spécialistes de la transaction de burea ...
En savoir plus

360 m² divisible dès 140 m²
HT HC
Location bureau - 360 m²
Bruges (33520)
Dernière mise à jour : Il y a 10 mois
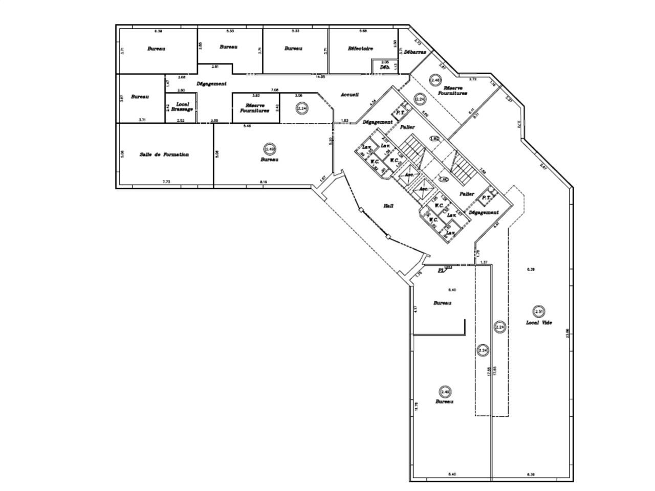
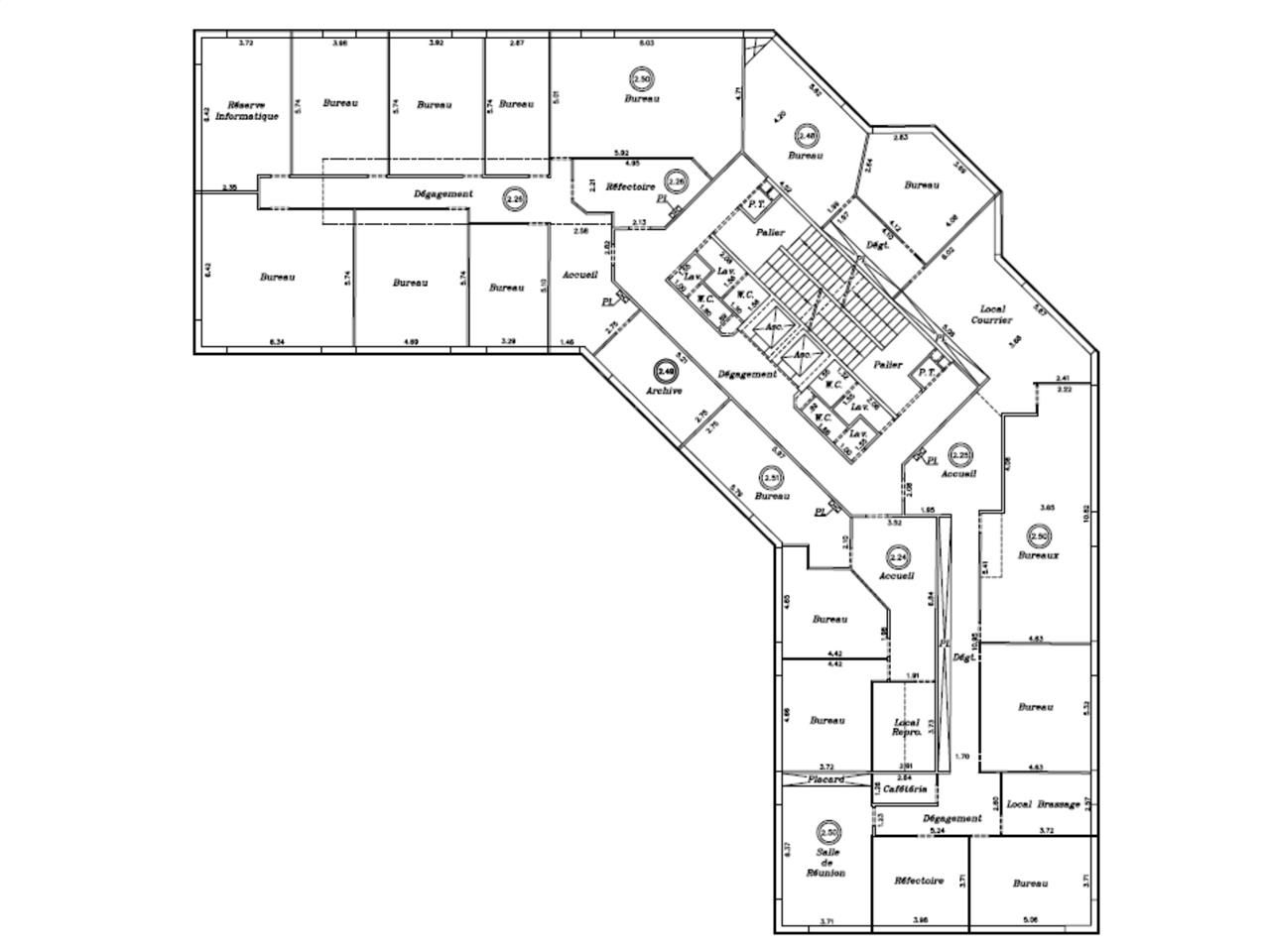
BUREAUX A LOUER BRUGES - Au sein de l'immeuble GRAND ANGLE, à BRUGES, CBRE vous propose à la LOCATION un plateau de bureaux de 220m² situé au RDC d'un immeuble de bureaux. Ces bureaux en bon état, sont cloisonnés (cloisons amovibles et open space) et équipés (baie de brassage, plinthes périphériques, RJ45, fibre optique, climatisation réversible en faux plafond, pavé LED).
Bureaux lumineux et fonctionnels. Des places de stationnement privatives en extérieur et intérieur sur un site sécurisé complètent ce bien. Proche des transports en commun ainsi que des commerces dans une commune dynamique, cet immeuble profite d'un emplacement de choix. Disponible rapidement, ce plateau de bureaux est une belle opportunité !
Impôt Foncier : 15,99 €/m²/an
Régime Fiscal : T.V.A.
Dépôt de garantie : 3 mois de loyer HT/HC
Honoraires : 15% HT du loyer annuel HT/HC à la charge du preneur.
Information sur le Bail :
Prix parking extérieur : 300 euros/unité/an HT HC Prix parking intérieur : 1000 euros/unité/an HT HC
Prestations :
Accessibilité:
Bus Lignes 33 & 35 - Arrêt "Arc-en-ciel"
Tramway Lignes C & E - Arrêt "La Vache"
Route Rocade sortie n°5 à 2,6km
SNCF Bordeaux Saint-Jean à 7,4km
Autoroute Accès A10 à 10km
Les informations sur les risques auxquels ce bien est exposé sont disponibles sur le site Géorisques : www.georisques.gouv.fr
Bureaux lumineux et fonctionnels. Des places de stationnement privatives en extérieur et intérieur sur un site sécurisé complètent ce bien. Proche des transports en commun ainsi que des commerces dans une commune dynamique, cet immeuble profite d'un emplacement de choix. Disponible rapidement, ce plateau de bureaux est une belle opportunité !
| Étage | Type | Surfaces | Dispo | Loyer | Charges | Type de bailRév. annuelle |
|---|---|---|---|---|---|---|
| RDC | Bureaux | 220,5 | Immédiate | 150 m²/an HT HC | 38,73 HT/m²/an | 3-6-9 ansIndice ILAT |
| RDC | Bureaux | 139,5 | Immédiate | 150 m²/an HT HC | 38,73 HT/m²/an | 3-6-9 ansIndice ILAT |
Impôt Foncier : 15,99 €/m²/an
Régime Fiscal : T.V.A.
Dépôt de garantie : 3 mois de loyer HT/HC
Honoraires : 15% HT du loyer annuel HT/HC à la charge du preneur.
Information sur le Bail :
Prix parking extérieur : 300 euros/unité/an HT HC Prix parking intérieur : 1000 euros/unité/an HT HC
Prestations :
- 10 places de parking sécurisées en extérieur , louées 300 euros /unité /an HT HC
- Coin cuisine
- Surface RDC : 360 m²
- 6 Parkings extérieurs
Accessibilité:
Bus Lignes 33 & 35 - Arrêt "Arc-en-ciel"
Tramway Lignes C & E - Arrêt "La Vache"
Route Rocade sortie n°5 à 2,6km
SNCF Bordeaux Saint-Jean à 7,4km
Autoroute Accès A10 à 10km
Les informations sur les risques auxquels ce bien est exposé sont disponibles sur le site Géorisques : www.georisques.gouv.fr
4 Parkings ext.
Voir plus
Afficher les consommations énergétiques
Favoris
Exporter
Appeler
Contacter
Signaler cette annonce










