BNP Paribas Real Estate Tours est un partenaire de confiance pour tous les projets immobiliers d''entreprise à Tours. Ses domaines d''expertise incluent l''investissement, la vente et la location d ...
En savoir plus

151 m²
Bureau à vendre - 151 m²
Tours (37000)
Dernière mise à jour : Il y a 2 jours
Bureaux à louer - Tours Centre
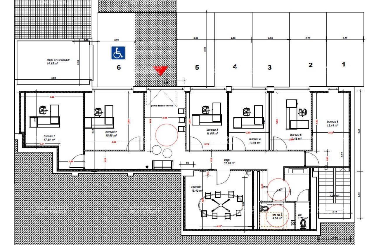
BNP Paribas Real Estate vous propose à la vente un très beau plateau de bureaux refait à neuf à Tours Centre. L'ensemble est constitué de 6 bureaux individuels, un espace accueil, une grande salle de réunion, un coin cuisine / tisanerie et des sanitaires privatifs (normes PMR).
Situé au rdc d'un immeuble situé à deux pas de l'échangeur A10 avec accès direct.
Le lot comprend 6 places de parkings privatifs en aérien dont 1 place en PMR qui sont comprises dans le prix.
L'ensemble a été entièrement refait à neuf et est entièrement équipé en courant fort et courant faible avec baie de brassage (comprenant la fibre).
Excellente accessibilité par les transports en communs et en voiture avec accès direct à l'autoroute A10
Disponibilité: ImmédiateHonoraires: 7% HT du prix HT/HD. à la signature de l'acte
| Fiche technique du bien | |
|---|---|
| Bus | Oui |
| Desserte routière | A10 20 m |
| Gare | 1 km |
| Accès Pers. Mobilité Réduite | Oui |
| Etat de l'immeuble | Seconde main |
| Parking(s) | 6 Places dont 1 box |
| Accueil | Oui |
| Hall d'accueil | Oui |
| Câblage informatique | Oui |
| Aménagement des bureaux | Cloisonnés |
| Bureau(x) cloisonné(s) | Oui |
| Sol bureaux | Dls.thermoplastiques |
| Plinthes techniq.périphériques | Oui |
| Sanitaire(s) | Privatif(s) |
Afficher les consommations énergétiques
Favoris
Exporter
Appeler
Contacter
Signaler cette annonce










