L’agence CBRE Rennes conseille et accompagne les chefs d’entreprise dans leurs projets immobiliers quels que soient leur taille et leur secteur d’activité. Spécialistes de la transaction de bureaux ...
En savoir plus

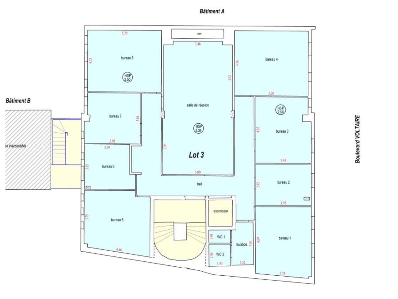
1 046 m² divisible dès 121 m²
Prix sur demande
Bureau à vendre - 1046 m²
Rennes (35000)
Dernière mise à jour : Il y a 3 mois
Rennes Ouest, idéalement situé sur un axe pénétrant à proximité immédiate (600 m) du métro Mabilais, CBRE vous propose au sein d'un immeuble récent, plusieurs surfaces de bureaux disponibles à la location ou à l'acquisition. D'environ 1 046 m² (quote part de parties communes incluses), les locaux très lumineux proposent un agencement fonctionnel.
Les locaux lumineux sont aménagés et cloisonnés.
Impôt Foncier : 13940 €/HT/an
Régime Fiscal : Droits d'enregistrement
Dépôt de garantie : 3 mois de loyer HT/HC
Honoraires : à la charge de l'acquéreur
Prestations :
Accessibilité:
Metro Mabilais (b) à 600 mètres
Bus Voltaire (9)
Route Rocade Ouest à 5 minutes (Porte de Cleunay)
Route Facilité d'accès au centre ville
Les informations sur les risques auxquels ce bien est exposé sont disponibles sur le site Géorisques : www.georisques.gouv.fr
Les locaux lumineux sont aménagés et cloisonnés.
| Étage | Type | Surfaces | Dispo | Prix(m²) | Charges | Honoraires | Fiscal |
|---|---|---|---|---|---|---|---|
| RDC | Bureaux | 121 | Immédiate | n.c. | n.c. | à la charge de l'acquéreur | Droits d'enregistrement |
| 1 | Bureaux | 263,83 | Immédiate | n.c. | n.c. | à la charge de l'acquéreur | Droits d'enregistrement |
| 2 | Bureaux | 227,86 | Immédiate | n.c. | n.c. | à la charge de l'acquéreur | Droits d'enregistrement |
| 2 | Bureaux | 35,15 | Immédiate | n.c. | n.c. | à la charge de l'acquéreur | Droits d'enregistrement |
| 3 | Bureaux | 233,3 | Immédiate | n.c. | n.c. | à la charge de l'acquéreur | Droits d'enregistrement |
| Attique | Bureaux | 165,31 | Immédiate | n.c. | n.c. | à la charge de l'acquéreur | Droits d'enregistrement |
| SS | Parkings | Immédiate | n.c. | n.c. | à la charge de l'acquéreur | Droits d'enregistrement | |
| RDJ | Parkings | Immédiate | n.c. | n.c. | à la charge de l'acquéreur | Droits d'enregistrement |
Impôt Foncier : 13940 €/HT/an
Régime Fiscal : Droits d'enregistrement
Dépôt de garantie : 3 mois de loyer HT/HC
Honoraires : à la charge de l'acquéreur
Prestations :
- Locaux aménagés
- Open space
- Bureaux cloisonnés
- Cloisons amovibles
- Bureaux lumineux
- Climatisation réversible
- Chauffage gaz
- Câblage RJ 45
- Faux plafond
- Lumière : dalles led
- Sanitaires privés
- Coin cuisine
- Locaux techniques
- Patio
- Surface RDC : 121 m²
Accessibilité:
Metro Mabilais (b) à 600 mètres
Bus Voltaire (9)
Route Rocade Ouest à 5 minutes (Porte de Cleunay)
Route Facilité d'accès au centre ville
Les informations sur les risques auxquels ce bien est exposé sont disponibles sur le site Géorisques : www.georisques.gouv.fr
Voir plus
Afficher les consommations énergétiques
Favoris
Exporter
Appeler
Contacter
Signaler cette annonce










