L''agence est située à la ZAC de la Poterie au 11 rue Louis Kerautret Botmel à Rennes.Elle est constituée d''une équipe polyvalente de professionnels de l''immobilier d''entreprise. Nous accompagno ...
En savoir plus

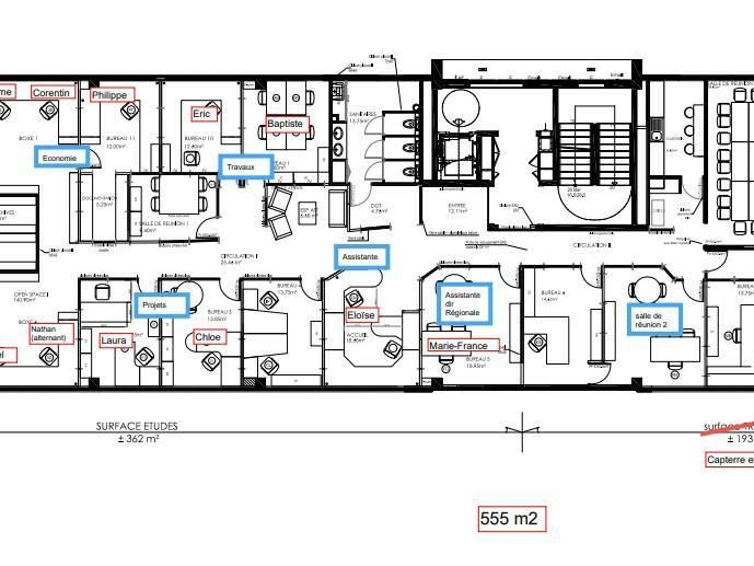
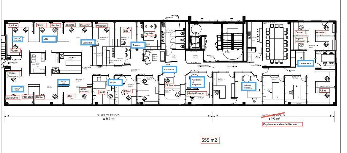
550 m²
Bureau à vendre - 550 m²
Rennes (35000)
Dernière mise à jour : Il y a 2 jours
RENNES NORD Boulevard de l'Armorique BNP PARIBAS RE vous propose un grand plateau de bureaux à la vente en très bon état général. Nombreux bureaux individuels, plusieurs espaces ouverts, cuisine, sanitaires privatifs, réserve, salle informatique. les locaux sont traversants et lumineux, cablés et climatisés, plusieurs emplacements de parkings extérieurs complètent ce bien.
Rennes Nord, connecté à la rocade et à l'axe de St Malo, parc tertiaire proposant des immeubles R+2 ou R+3
Immeubles bénéficiant de la fibre optique
Environnement commercial et de services :
Centre commercial Grand Quartier et Leclerc
Hotels, restaurants, crèches et salles de sport
Bonne desserte en transports en commun
Disponibilité: ImmédiateHonoraires: 7% HT du prix HT/HD. à la signature de l'acte
| Fiche technique du bien | |
|---|---|
| Bus | Oui |
| Desserte routière | Oui |
| Aéroport | Oui |
| Immeuble | Grand Plateau |
| Etat de l'immeuble | Récent |
| Parking(s) | Oui |
| Immeuble copropriété | Oui |
| Type chauffage | Individuel |
| Source chauffage | Electrique |
| Climatisation | Réversible |
| Sécurité | Contrôle d'accès |
| Ascenseur(s) | Oui |
| Salle informatique | Oui |
| Câblage informatique | Oui |
| Aménagement des bureaux | Cloisonnés/Ouverts 3 espaces ouverts |
| Eclairage Bureaux | Luminaires encastrés |
| Sol bureaux | Moquette |
| Plinthes techniq.périphériques | Oui |
| Sanitaire(s) | Privatif(s) |
Voir plus
Afficher les consommations énergétiques
Favoris
Exporter
Appeler
Contacter
Signaler cette annonce










