L’agence CBRE Rennes conseille et accompagne les chefs d’entreprise dans leurs projets immobiliers quels que soient leur taille et leur secteur d’activité. Spécialistes de la transaction de bureaux ...
En savoir plus

150 m²
Bureau à vendre - 150 m²
Rennes (35000)
Dernière mise à jour : Il y a 3 jours
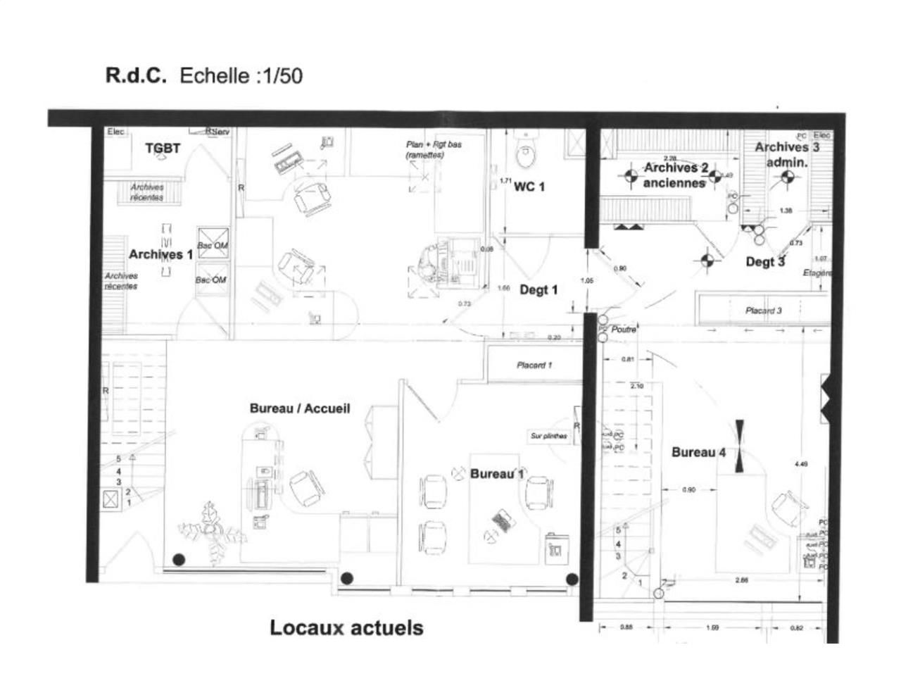
Situation privilégiée, au coeur du quartier Bourg L'évêque, bénéficiant d'une accessibilité immédiate aux services et commerces de proximité. Au sein d'un environnement mixte, CBRE vous propose une opportunité d'un local proposant env 150 m² à usage de bureaux aménagés, cloisonnés répartis sur 2 niveaux. 3 places de parking privatives complètent les locaux.
Large possibilité de communiquer en vitrine en façade
Régime Fiscal : Droits d'enregistrement
Dépôt de garantie : 3 mois de loyer HT/HC
Paiement Loyer : trimestriel
Honoraires : 7 % HT du prix de vente HD HH à la charge de l'acquéreur
Prestations :
Accessibilité:
Bus Brest Verdun (C2, 31)
Transilien Pontchaillou (SNCF)
Les informations sur les risques auxquels ce bien est exposé sont disponibles sur le site Géorisques : www.georisques.gouv.fr
Large possibilité de communiquer en vitrine en façade
| Étage | Type | Surfaces | Dispo | Prix(m²) | Charges | Honoraires | Fiscal |
|---|---|---|---|---|---|---|---|
| RDC | Bureaux | 150 | Immédiate | 2066,67 m² HD | n.c. | 7 % HT du prix de vente HD HH à la charge de l'acquéreur | Droits d'enregistrement |
Régime Fiscal : Droits d'enregistrement
Dépôt de garantie : 3 mois de loyer HT/HC
Paiement Loyer : trimestriel
Honoraires : 7 % HT du prix de vente HD HH à la charge de l'acquéreur
Prestations :
- Rez de chaussée
- 2 accès
- Locaux aménagés
- Cloisons fixes
- Répartie sur 2 niveaux
- Open space
- Salle de réunion
- Bureaux
- Coin cuisine
- Locaux câblés
- Skydômes
- Sanitaires privatifs
- Chauffage gaz collectif
- 3 places de parking privatives
- Surface RDC : 150 m²
Accessibilité:
Bus Brest Verdun (C2, 31)
Transilien Pontchaillou (SNCF)
Les informations sur les risques auxquels ce bien est exposé sont disponibles sur le site Géorisques : www.georisques.gouv.fr
Voir plus
Afficher les consommations énergétiques
Favoris
Exporter
Appeler
Contacter
Signaler cette annonce










