Besoin d'un conseil en immobilier ? Nous sommes une équipe dédiée à 100% à nos clients utilisateurs avec des services variés (stratégie immobilière, recherche immobilière, renégociation de bail, dé ...
En savoir plus

365 m²
Bureau à vendre - 365 m²
Paris 8 (75008)
Dernière mise à jour : Il y a 4 jours
A vendre : 365 m² de bureaux haussmanniens à Paris 8ème à proximité du Parc Monceau
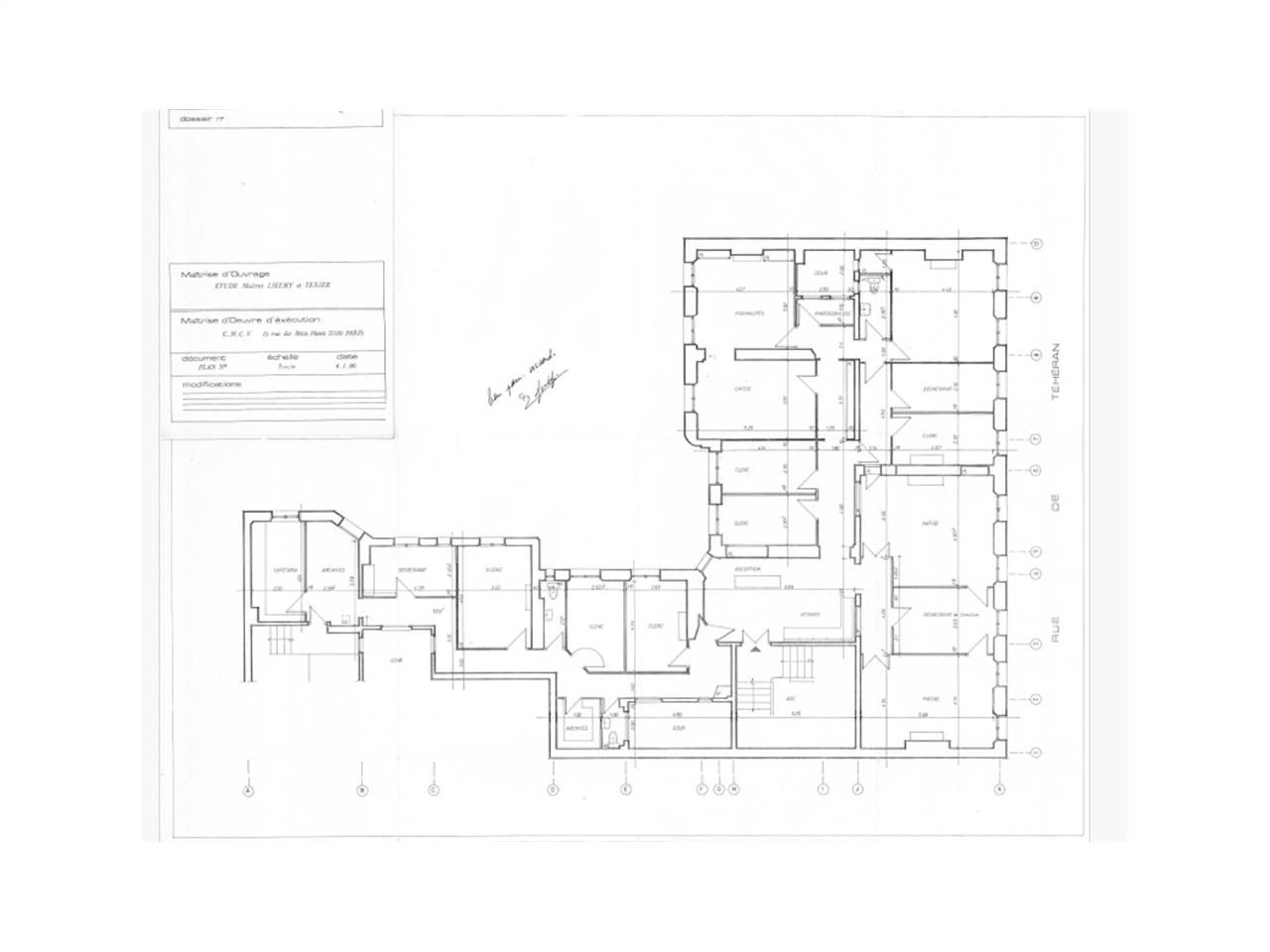
SAVILLS vous propose des bureaux de 340 m² à vendre au 3ème étage, dans un bel immeuble haussmannien de standing, à proximité du Parc Monceau, avec une hauteur sous plafond de 3,40 mètres. Les bureaux bénéficient d'une annexe de 26 m² en rez-de-chaussée avec accès PMR possible, de locaux d'archivage, et d'une cave. Il s'agit d'un actif rare, avec cachet du haussmannien.
Disponibilité : immédiate
Impôt Foncier : 17,45 €/HT-HC/m²/an
Régime Fiscal : Droits d'enregistrement
Honoraires : A la charge de l'acquéreur
Prestations :
Accessibilité:
Métro Miromesnil (METRO-9, METRO-13)
Train Gare Saint-Lazare (TRAIN)
Bus Haussmann - Miromesnil (BUS-80, BUS, BUS-52, BUS-32, BUS-22, BUS-43, BUS-28, BUS-93), La Boétie - Percier (BUS), Ruysdaël - Parc Monceau (BUS-84)
Train Paris-St-Lazare (France)
Les informations sur les risques auxquels ce bien est exposé sont disponibles sur le site Géorisques : www.georisques.gouv.fr
SAVILLS vous propose des bureaux de 340 m² à vendre au 3ème étage, dans un bel immeuble haussmannien de standing, à proximité du Parc Monceau, avec une hauteur sous plafond de 3,40 mètres. Les bureaux bénéficient d'une annexe de 26 m² en rez-de-chaussée avec accès PMR possible, de locaux d'archivage, et d'une cave. Il s'agit d'un actif rare, avec cachet du haussmannien.
Disponibilité : immédiate
| Étage | Type | Surfaces | Dispo | Prix(m²) | Charges | Honoraires | Fiscal |
|---|---|---|---|---|---|---|---|
| 3 | Bureaux | 339 | Immédiate | n.c. | 24,36 m²/an HT | A la charge de l'acquéreur | Droits d'enregistrement |
| RDC | Salle de Réunion | 26 | Immédiate | n.c. | n.c. | A la charge de l'acquéreur | Droits d'enregistrement |
| 1SS | Archives | 27 | Immédiate | n.c. | n.c. | A la charge de l'acquéreur | Droits d'enregistrement |
| Parkings | Immédiate | n.c. | n.c. | A la charge de l'acquéreur | Droits d'enregistrement |
Impôt Foncier : 17,45 €/HT-HC/m²/an
Régime Fiscal : Droits d'enregistrement
Honoraires : A la charge de l'acquéreur
Prestations :
- Immeuble haussmannien de standing
- Façade en pierres de taille
- Accès PMR pour le RDC
- Parties communes de standing
- Ascenseur
- Gardienne
- Télésurveillance
- Digicode
- Chauffage CPCU
- Locaux aménagés en :
- un grand accueil / salle d'attente
- 14 Bureaux cloisonnés, dont la grande majorité sont décloisonnables
- Cuisine
- 3 Sanitaires privatifs, possibilité création 4ème
- Moulures et cheminées
- Belle hauteur sous plafond de 3,40 mètres, exceptionnel pour un 3ème étage
- Locaux traversants sur rue et sur plusieurs cours
- Décloisonnement possible sur la majeure partie de la surface
- Annexe en RDC, local d'Archives et cave
- Câblage informatique et téléphonique
- Surface RDC : 26 m²
Accessibilité:
Métro Miromesnil (METRO-9, METRO-13)
Train Gare Saint-Lazare (TRAIN)
Bus Haussmann - Miromesnil (BUS-80, BUS, BUS-52, BUS-32, BUS-22, BUS-43, BUS-28, BUS-93), La Boétie - Percier (BUS), Ruysdaël - Parc Monceau (BUS-84)
Train Paris-St-Lazare (France)
Les informations sur les risques auxquels ce bien est exposé sont disponibles sur le site Géorisques : www.georisques.gouv.fr
Emplacement(s) de Parking: 1 place
Voir plus
Afficher les consommations énergétiques
Localisation et transport aux alentours
- Miromesnil294m (4min à pied)913
- Saint-Philippe du Roule477m (7min à pied)9
Favoris
Exporter
Appeler
Contacter
Signaler cette annonce
