

1 888 m²
Bureau à vendre - 1888 m²
Paris 13 (75013)
Dernière mise à jour : Il y a 2 jours
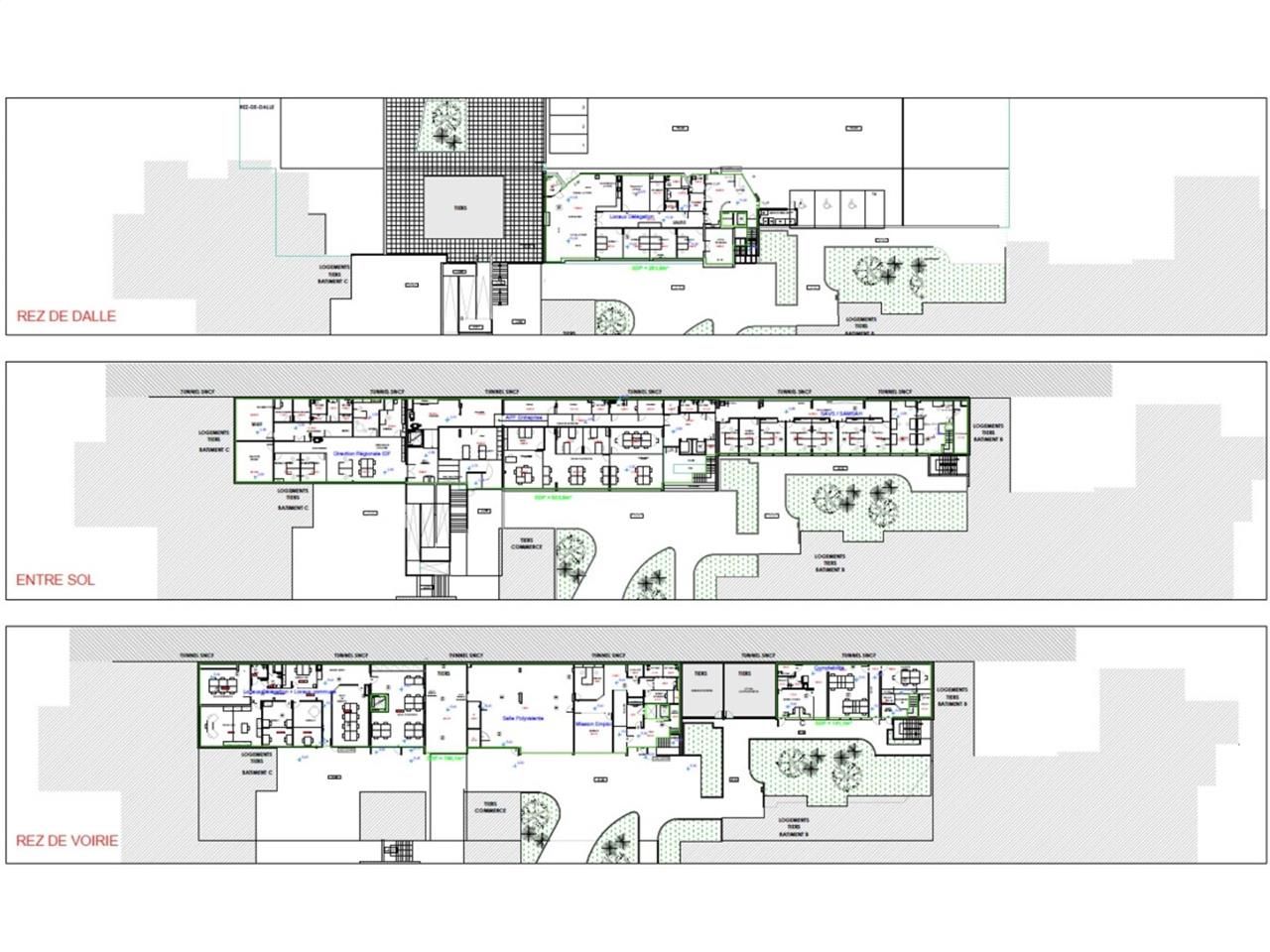
Dans le 13ème arrondissement, à toute proximité du Parc Montsouris, de la cité internationale universitaire et du stade Charlety, CBRE vous propose une surface de 1.888 m² répartie sur 3 niveaux avec un espace extérieur et des emplacements de parking. Ces locaux bénéficient de plusieurs accès et ont une accessibilité PMR.
Régime Fiscal : Droits d'enregistrement
Honoraires : A la charge de l'acquéreur
Prestations :
Accessibilité:
Bus RUNGIS (67), AMIRAL MOUCHEZ (67), AMIRAL MOUCHEZ - CHARBONNEL (21), PLACE DE RUNGIS (513)
RER Cité Universitaire (B)
Tramway STADE CHARLETY - PORTE DE GENT (T3, T3a)
Les informations sur les risques auxquels ce bien est exposé sont disponibles sur le site Géorisques : www.georisques.gouv.fr
| Étage | Type | Surfaces | Dispo | Prix(m²) | Charges | Honoraires | Fiscal |
|---|---|---|---|---|---|---|---|
| RDD | Bureaux | 338,78 | Immédiate | n.c. | n.c. | A la charge de l'acquéreur | Droits d'enregistrement |
| RDJ | Bureaux | 845,91 | Immédiate | n.c. | n.c. | A la charge de l'acquéreur | Droits d'enregistrement |
| RDCB | Bureaux | 703,48 | Immédiate | n.c. | n.c. | A la charge de l'acquéreur | Droits d'enregistrement |
Régime Fiscal : Droits d'enregistrement
Honoraires : A la charge de l'acquéreur
Prestations :
- Locaux en très bon état
- Cloisonnement amovible (possibilité de
- décloisonner)
- Contrôle d'accès
- Ascenseur
- Parkings extérieurs : 20
- Possibilité ERP
- RDD (Rez-de-dalle): 2 lots 270,54 m² et
- 68,24 m²
- Surface et affectation : en cours de validation
- Surface RDC : 703,48 m²
Accessibilité:
Bus RUNGIS (67), AMIRAL MOUCHEZ (67), AMIRAL MOUCHEZ - CHARBONNEL (21), PLACE DE RUNGIS (513)
RER Cité Universitaire (B)
Tramway STADE CHARLETY - PORTE DE GENT (T3, T3a)
Les informations sur les risques auxquels ce bien est exposé sont disponibles sur le site Géorisques : www.georisques.gouv.fr
Voir plus
Afficher les consommations énergétiques
Favoris
Exporter
Appeler
Contacter
Signaler cette annonce










