Créée en mai 2012, Wellstone est une société de conseil en immobilier d'entreprise qui accompagne ses clients propriétaires, investisseurs et utilisateurs dans leurs différents projets immobiliers ...
En savoir plus

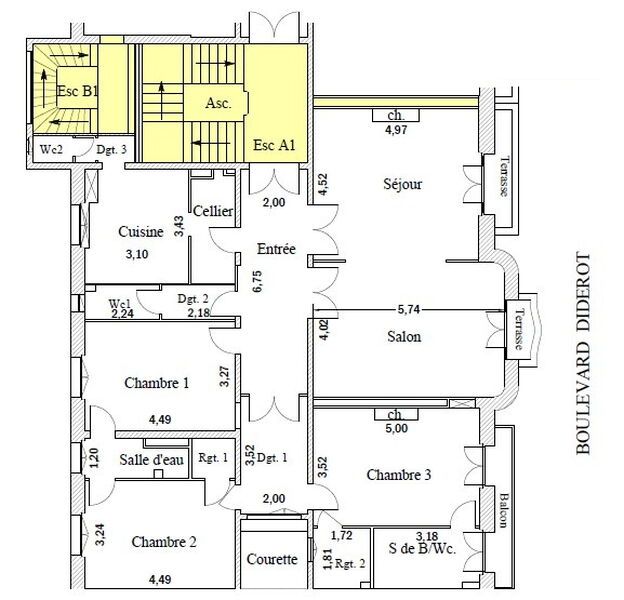
1 473 m² divisible dès 144 m²
Bureau à vendre - 1473 m²
Paris 12 (75012)
Dernière mise à jour : Il y a 11 jours
Aussi rare qu'exceptionnel sur le secteur ! Au pied de la Gare de Lyon, Wellstone vous propose à la vente, dans un immeuble haussmannien de grand standing, différentes surfaces de 150m² environ à rénover. De type parquet, moulures, cheminées, ces différents lots bénéficient d'un plan parfait, d'une très belle luminosité, d'une belle hauteur sous plafond et de tous les attributs du charme de l'ancien. Ces biens conviendront parfaitement à toutes sociétés recherchant du standing, du charme et une proximité immédiate avec la gare de Lyon !
Régime Fiscal : Droit d'enregistrement
Honoraires : A la charge de l'acquéreur
Taxe Bureau : 21,7 €/m²/an
Prestations :
Accessibilité:
Metro Quai de la Rapée (5)
Metro Gare de Lyon (1, 14, D, A)
Les informations sur les risques auxquels ce bien est exposé sont disponibles sur le site Géorisques : www.georisques.gouv.fr
| Étage | Type | Surfaces | Dispo | Prix(m²) | Charges | Honoraires | Fiscal |
|---|---|---|---|---|---|---|---|
| 5 | Bureaux | 151 | Immédiate | 12900 m² HD | n.c. | A la charge de l'acquéreur | Droit d'enregistrement |
| 5 | Bureaux | 148 | Immédiate | 12900 m² HD | n.c. | A la charge de l'acquéreur | Droit d'enregistrement |
| 4 | Bureaux | 147 | Immédiate | 12500 m² HD | n.c. | A la charge de l'acquéreur | Droit d'enregistrement |
| 4 | Bureaux | 147 | Immédiate | 12500 m² HD | n.c. | A la charge de l'acquéreur | Droit d'enregistrement |
| 3 | Bureaux | 148 | Immédiate | 12100 m² HD | n.c. | A la charge de l'acquéreur | Droit d'enregistrement |
| 3 | Bureaux | 147 | Immédiate | 12100 m² HD | n.c. | A la charge de l'acquéreur | Droit d'enregistrement |
| 2 | Bureaux | 148 | Immédiate | 11700 m² HD | n.c. | A la charge de l'acquéreur | Droit d'enregistrement |
| 2 | Bureaux | 147 | Immédiate | 11700 m² HD | n.c. | A la charge de l'acquéreur | Droit d'enregistrement |
| 1 | Bureaux | 146 | Immédiate | 10900 m² HD | n.c. | A la charge de l'acquéreur | Droit d'enregistrement |
| 1 | Bureaux | 144 | Immédiate | 10900 m² HD | n.c. | A la charge de l'acquéreur | Droit d'enregistrement |
Régime Fiscal : Droit d'enregistrement
Honoraires : A la charge de l'acquéreur
Taxe Bureau : 21,7 €/m²/an
Prestations :
- Immeuble de très bon standing
- Parties communes de très bon standing
- Locaux à rénover pour laisser libre cours à vos envies et votre imagination
- Surface organisée en 6/7 bureaux
- Belle hauteur sous plafond
- Parquet, Moulures, Cheminées
- Balcons filants du 2 au 5ème étage
- L'immeuble sera livré totalement rénové pour l'été 2026 :
- Ravalement de l'intégralité des façades
- Fenêtres
- Parties communes
- Ascenseur
- Toiture
- Colonnes descendantes
- Réaménagement et végétalisation de la cour
Accessibilité:
Metro Quai de la Rapée (5)
Metro Gare de Lyon (1, 14, D, A)
Les informations sur les risques auxquels ce bien est exposé sont disponibles sur le site Géorisques : www.georisques.gouv.fr
Voir plus
Afficher les consommations énergétiques
Localisation et transport aux alentours
Favoris
Exporter
Appeler
Contacter
Signaler cette annonce
