Arthur Loyd est implantée depuis 1986 à Orléans, soit 35 ans de présence au quotidien sur le terrain et auprès des acteurs économiques du Loiret.Nous accompagnons les porteurs de projet, quelles qu ...
En savoir plus

190 m²
Bureau à vendre - 190 m²
Orléans (45000)
Dernière mise à jour : Il y a 2 jours
Bureaux de caractère A VENDRE - Proche quartier Saint-Euverte / Théâtre d'Orléans
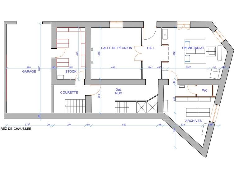
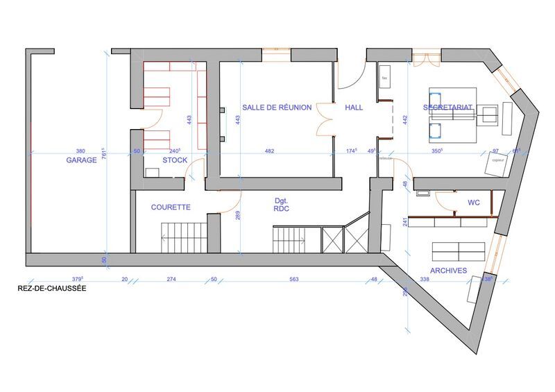
Idéalement situé à proximité immédiate du quartier Saint-Euverte et du théâtre d'Orléans, Arthur Loyd vous propose une ancienne maison de ville réhabilitée en locaux professionnels, développant une surface d'environ 190 m², répartie sur trois niveaux.
Le rez-de-chaussée comprend un hall d'entrée, un espace secrétariat, une salle de réunion, une salle d'archivage ainsi qu'un sanitaire.
Le 1er étage accueille un open space de 49 m², un local reprographie pouvant également faire office de bureau individuel, ainsi qu'un bureau partagé (2 postes).
Au 2e étage, un dégagement dessert deux bureaux, une salle de convivialité avec cuisine, une salle informatique et un sanitaire.
L'ensemble est complété par un garage de 29 m² ainsi qu'un espace de stockage d'environ 11 m², offrant des prestations fonctionnelles et adaptées à une activité tertiaire.
Impôt Foncier : 3366 €/en 2025
Régime Fiscal : Droits d'enregistrement
Honoraires : 6,5 % HT du prix de vente, soit 25 025 euros HT, à la charge de l'acquéreur
Prestations :
Accessibilité:
Transports en commun Aristide Briand (Bus 2, 5, 7 et 70)
Vélo+ Centre de conférences
Les informations sur les risques auxquels ce bien est exposé sont disponibles sur le site Géorisques : www.georisques.gouv.fr
Idéalement situé à proximité immédiate du quartier Saint-Euverte et du théâtre d'Orléans, Arthur Loyd vous propose une ancienne maison de ville réhabilitée en locaux professionnels, développant une surface d'environ 190 m², répartie sur trois niveaux.
Le rez-de-chaussée comprend un hall d'entrée, un espace secrétariat, une salle de réunion, une salle d'archivage ainsi qu'un sanitaire.
Le 1er étage accueille un open space de 49 m², un local reprographie pouvant également faire office de bureau individuel, ainsi qu'un bureau partagé (2 postes).
Au 2e étage, un dégagement dessert deux bureaux, une salle de convivialité avec cuisine, une salle informatique et un sanitaire.
L'ensemble est complété par un garage de 29 m² ainsi qu'un espace de stockage d'environ 11 m², offrant des prestations fonctionnelles et adaptées à une activité tertiaire.
| Étage | Type | Surfaces | Dispo | Prix(m²) | Charges | Honoraires | Fiscal |
|---|---|---|---|---|---|---|---|
| RDC + R2 | Bureaux | 190 | 1er janvier 2026 | n.c. | n.c. | 6,5 % HT du prix de vente, soit 25 025 euros HT, à la charge de l'acquéreur | Droits d'enregistrement |
Impôt Foncier : 3366 €/en 2025
Régime Fiscal : Droits d'enregistrement
Honoraires : 6,5 % HT du prix de vente, soit 25 025 euros HT, à la charge de l'acquéreur
Prestations :
- Construction fin 19ème
- Ancienne maison de ville reconvertie en locaux professionnels, changement de destination conforme à l'usage actuel
- Locaux cablés et raccordés à la fibre optique
- Chaudière gaz récente (environ 2 ans 1/2)
Accessibilité:
Transports en commun Aristide Briand (Bus 2, 5, 7 et 70)
Vélo+ Centre de conférences
Les informations sur les risques auxquels ce bien est exposé sont disponibles sur le site Géorisques : www.georisques.gouv.fr
Voir plus
Afficher les consommations énergétiques
Localisation et transport aux alentours
Favoris
Exporter
Appeler
Contacter
Signaler cette annonce










