Evolis, votre partenaire en immobilier d’entreprise! Que vous soyez une entreprise, utilisateur de locaux professionnels, investisseur, ou propriétaire, Evolis met à votre service son expertise ...
En savoir plus

166 m²
Bureau à vendre - 166 m²
Montrouge (92120)
Dernière mise à jour : Il y a 5 jours
À VENDRE - BUREAUX de standing À MONTROUGE
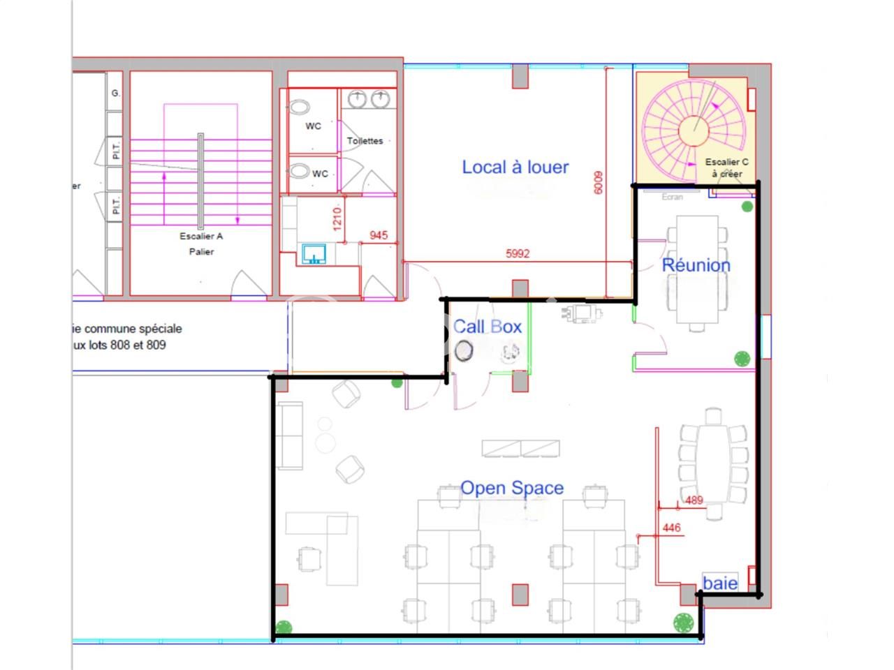
A proximité immédiate de la porte d'Orléans et proche du métro ligne 4, EVOLIS vous propose une surface de 130 m² environ de bureaux et une surface louée de 36 m² environ, soit une surface totale à vendre de 166 m². 6 emplacements de parking accompagnent les bureaux (dont un emplacement loué) et surface d'archives de 15 m².
Les bureaux sont situés dans un immeuble entièrement rénové de standing, offrant des prestations de qualité : climatisation double flux, espaces déjà aménagés, archives et parkings en sous-sol.
Une opportunité rare pour les entreprises ou investisseurs à la recherche de locaux flexibles, fonctionnels et idéalement situés proche de la Vache Noire et de son centre commercial.
Impôt Foncier : 51 €/m²/an HT
Régime Fiscal : Droit d'enregistrement
Honoraires : 5% HT du prix de vente HD à la charge de l'acquéreur
Prestations :
Accessibilité:
Bus De Gaulle / Vanne (MONTBUS), Léon Gambetta (187, 188, 197, N21, N14)
Métro Ligne 4
RER Laplace (B)
Route Boulevard Périphérique - Porte d'Orléans
Route RN20
Grand Paris Express Bagneux (L15 Fin 2026)
Les informations sur les risques auxquels ce bien est exposé sont disponibles sur le site Géorisques : www.georisques.gouv.fr
A proximité immédiate de la porte d'Orléans et proche du métro ligne 4, EVOLIS vous propose une surface de 130 m² environ de bureaux et une surface louée de 36 m² environ, soit une surface totale à vendre de 166 m². 6 emplacements de parking accompagnent les bureaux (dont un emplacement loué) et surface d'archives de 15 m².
Les bureaux sont situés dans un immeuble entièrement rénové de standing, offrant des prestations de qualité : climatisation double flux, espaces déjà aménagés, archives et parkings en sous-sol.
Une opportunité rare pour les entreprises ou investisseurs à la recherche de locaux flexibles, fonctionnels et idéalement situés proche de la Vache Noire et de son centre commercial.
| Étage | Type | Surfaces | Dispo | Prix(m²) | Charges | Honoraires | Fiscal |
|---|---|---|---|---|---|---|---|
| 7 | Bureaux | 166 | Nous consulter | n.c. | n.c. | 5% HT du prix de vente HD à la charge de l'acquéreur | Droit d'enregistrement |
| SS | Archives | 15 | Nous consulter | n.c. | n.c. | 5% HT du prix de vente HD à la charge de l'acquéreur | Droit d'enregistrement |
| Total Cellule | Bureaux | 166 | Nous consulter | 6174,7 m² HD HH | 60 m²/an HT | 5% HT du prix de vente HD à la charge de l'acquéreur | Droit d'enregistrement |
| 3SS | Parkings | Nous consulter | n.c. | n.c. | 5% HT du prix de vente HD à la charge de l'acquéreur | Droit d'enregistrement |
Impôt Foncier : 51 €/m²/an HT
Régime Fiscal : Droit d'enregistrement
Honoraires : 5% HT du prix de vente HD à la charge de l'acquéreur
Prestations :
- Site clos
- Interphone
- Digicode
- Ascenseurs
- Accueil
- Bureaux en Open space
- Salle de réunion
- Phone box
- Climatisation double flux
- Dalles PVC imitation parquet
- Faux plafond
- Plinthes périphériques pour le câblage informatique
- Baie de brassage
- Kitchenette
- Sanitaires privatifs
- Surface Carrez
- Revenu locatif : 18800 euros HT HC /an (surface locative louée : 44 m² + 1 place de parking en sous-sol)
- Surface disponible : 130 m² environ
Accessibilité:
Bus De Gaulle / Vanne (MONTBUS), Léon Gambetta (187, 188, 197, N21, N14)
Métro Ligne 4
RER Laplace (B)
Route Boulevard Périphérique - Porte d'Orléans
Route RN20
Grand Paris Express Bagneux (L15 Fin 2026)
Les informations sur les risques auxquels ce bien est exposé sont disponibles sur le site Géorisques : www.georisques.gouv.fr
Voir plus
Afficher les consommations énergétiques
Localisation et transport aux alentours
Favoris
Exporter
Appeler
Contacter
Signaler cette annonce










