L''agence BNP Paribas Real Estate est présente à Bordeaux depuis 40 ans. Elle accompagne les investisseurs et les entreprises dans chaque projet d''agrandissement, d''acquisition, de location et de ...
En savoir plus

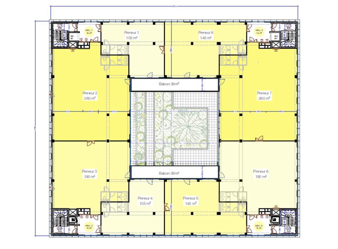
Bureau à vendre - 3643 m²
Situé à Mérignac, dans un environnement tertiaire dynamique à l'ouest de Bordeaux, ce programme immobilier neuf constitue une opportunité rare d'acquisition de bureaux au sein d'un secteur recherché. Idéalement desservi par la ligne A du tramway (station Caroline Aigle), à proximité de l'aéroport de Bordeaux-Mérignac et de la rocade sortie 11, cet immeuble s'inscrit dans une logique de développement durable et de performance environnementale.
Concu pour répondre aux besoins des entreprises modernes, l'ensemble offre une surface totale de 3 025 m² de bureaux, divisibles dès 750 m², dans un immeuble certifié BREEAM VERY GOOD. Il propose des prestations haut de gamme : climatisation, ascenseur, sanitaires privatifs, hall d'accueil de standing, et un espace terrasse de 150 m² au premier étage. 140 places de stationnement privatif complètent l'ensemble.
Disponible au 4 trimestre 2025, ce bien s'adresse aux utilisateurs ou investisseurs en quête d'un actif immobilier valorisant, au coeur d'un secteur stratégique de la métropole bordelaise.
Un quartier stratégique aux portes de Bordeaux
Mérignac est l'un des pôles économiques majeurs de Bordeaux Métropole, accueillant de nombreuses entreprises dans des secteurs variés, notamment l'aéronautique, la technologie et les services. La présence d'infrastructures telles que l'aéroport international, les zones d'activités tertiaires, ainsi qu'un réseau de transports performant font de Mérignac un choix privilégié pour implanter ses bureaux.
L'arrivée récente du tramway A dans le secteur renforce encore cette accessibilité, offrant une liaison directe vers le centre-ville de Bordeaux, tout en assurant une connexion rapide à la rocade bordelaise et aux axes autoroutiers.
Découvrez d'autres opportunités à Mérignac et Bordeaux
- Pour en savoir plus sur le secteur, explorez nos bureaux à vendre ou à louer à Mérignac
- Besoin de surfaces plus importantes ? Découvrez ces bureaux à vendre de 4 103 m² divisibles à Mérignac
- Vous recherchez un plateau intermédiaire ? Consultez ces bureaux à vendre de 1 141 m² divisibles à Mérignac
Honoraires: Nous consulter. à la signature de l'acte
| Fiche technique du bien | |
|---|---|
| Bus | ligne 39 |
| Desserte routière | Rocade sortie 11B |
| Aéroport | Bordeaux Merignac 5 min |
| Gare | Bordeaux St Jean 25 min |
| Etat de l'immeuble | Neuf |
| Parking(s) | 140 Places |
| Immeuble indépendant | Oui |
| Climatisation | Réversible |
| Ascenseur(s) | Oui |
| Aménagement des bureaux | Espaces Ouverts |
| Eclairage Bureaux | Luminaires encastrés LED |
| Sanitaire(s) | Privatif(s) |
