WERIZ est un acteur indépendant et local du marché de l'immobilier d’entreprise dans la Métropole Aix Marseille Provence.Nos équipes sont animées par un esprit résolument entrepreneurial et bénéfic ...
En savoir plus

226 m²
Bureau à vendre - 226 m²
Marseille 6 (13006)
Dernière mise à jour : Il y a 2 jours
WERIZ vous propose une opportunité exceptionnelle d'acquérir des bureaux de qualité à Marseille. Idéalement situés à l'angle du Cours Pierre Puget et du boulevard Notre Dame, ces bureaux offrent un cadre de travail optimal pour votre entreprise. Rénovés par le propriétaire, ils nécessitent peu de travaux d'aménagement. Les locaux sont lumineux et bénéficient de trois façades vitrées.
Impôt Foncier : 5054 €//an
Régime Fiscal : Droit d'enregistrement
Dépôt de garantie : 3 mois de loyer HT/HC
Honoraires : 5 % HT + TVA du prix de vente HT HC à la charge de l'acquéreur
Prestations :
Accessibilité:
Aéroport Marseille Provence à 20 minutes en voiture,
SNCF Gare TGV Saint-Charles à 11 minutes en voiture,
Métro Station Castellane à 15 minutes en voiture,
Autoroute Tunnel Prado Carénage à 10 minutes en voiture,
Les informations sur les risques auxquels ce bien est exposé sont disponibles sur le site Géorisques : www.georisques.gouv.fr
| Étage | Type | Surfaces | Dispo | Prix(m²) | Charges | Honoraires | Fiscal |
|---|---|---|---|---|---|---|---|
| 1 | Bureaux | 226 | Immédiate | 3738,94 m² HD | 2520,8 TTC / an | 5 % HT + TVA du prix de vente HT HC à la charge de l'acquéreur | Droit d'enregistrement |
Impôt Foncier : 5054 €//an
Régime Fiscal : Droit d'enregistrement
Dépôt de garantie : 3 mois de loyer HT/HC
Honoraires : 5 % HT + TVA du prix de vente HT HC à la charge de l'acquéreur
Prestations :
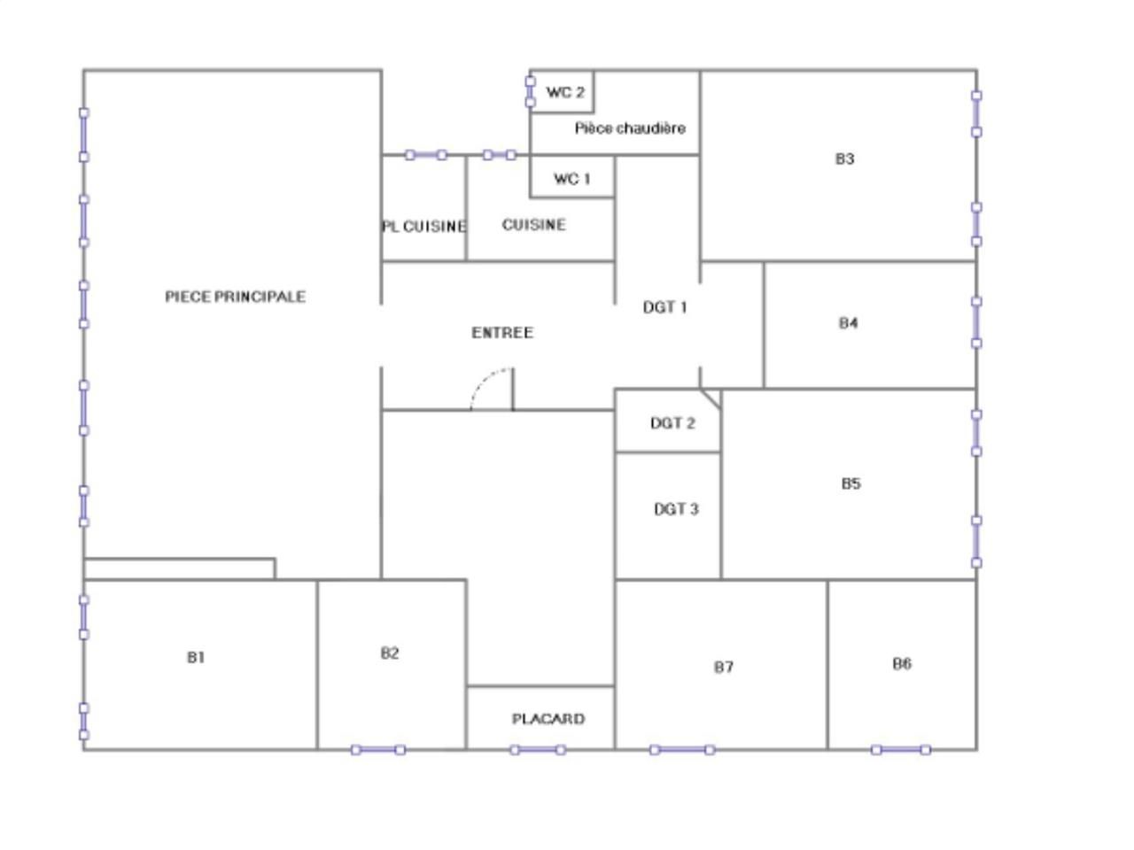
- Locaux rénovés
- 226 m² Loi Carrez en R+1
- Bénéficiant d'une belle visibilité
- Offrant de multiples possibilités d'aménagements
- Locaux lumineux
- Double vitrage
- Parquet flottant
- Bureaux cloisonnés
- Salle de réunion
- Open space
- Coin cuisine
- Sanitaires privatifs
- Climatisation
- 2 caves
- 2 entrées possibles (60 Pierre Puget et 8 boulevard Notre Dame)
Accessibilité:
Aéroport Marseille Provence à 20 minutes en voiture,
SNCF Gare TGV Saint-Charles à 11 minutes en voiture,
Métro Station Castellane à 15 minutes en voiture,
Autoroute Tunnel Prado Carénage à 10 minutes en voiture,
Les informations sur les risques auxquels ce bien est exposé sont disponibles sur le site Géorisques : www.georisques.gouv.fr
Voir plus
Afficher les consommations énergétiques
Localisation et transport aux alentours
- Vieux-Port Hôtel de Ville460m (7min à pied)1
- Estrangin Préfecture544m (8min à pied)1
Favoris
Exporter
Appeler
Contacter
Signaler cette annonce
