L’agence CBRE Lille conseille et accompagne les chefs d’entreprise dans leurs projets immobiliers quels que soient leur taille et leur secteur d’activité. Spécialistes de la transaction de bureaux, ...
En savoir plus

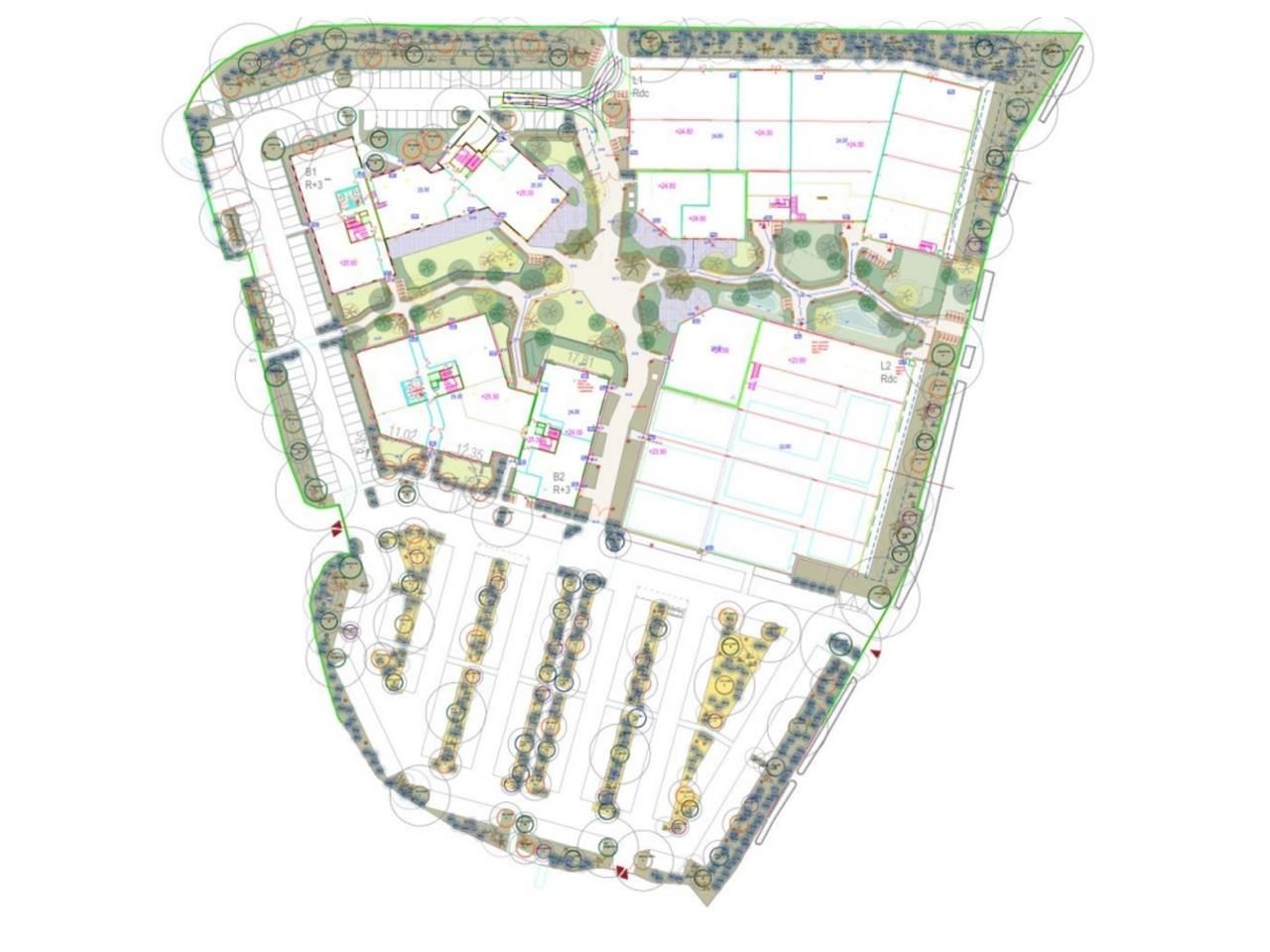
5 922 m² divisible dès 79 m²
Bureau à vendre - 5922 m²
Marcq-en-Baroeul (59700)
Dernière mise à jour : Il y a 3 mois
Situé au coeur du Pavé Stratégique sur la commune de Marcq-en-Baroeul, ces deux immeubles de bureaux neufs développant plus de 9 000 m² seront au coeur d'un projet dédié aux valeurs du bien-être et du bien-vivre. Dans un cadre de vie et de travail stimulant, les utilisateurs bénéficieront en plus des commerces, de la restauration, services de santé et des loisirs.
Un site en faveur du bien-être, qui permettra aux utilisateurs de se dépenser en proposant des sports indoor ainsi qu'un parcours extérieur aménagé grâce à l'installation d'équipements favorisant le sport en accès libre, un site préservé au coeur d'un environnement verdoyant, ressourçant et énergisant.
Régime Fiscal : T.V.A.
Honoraires : 5% HT du prix de vente HT à la charge de l'acquéreur
Prestations :
Accessibilité:
Bus Lignes C10/86/91 arrêt : "Pavé Stratégique"
Autoroute A22/A1
Route Rocade Nord Ouest
Les informations sur les risques auxquels ce bien est exposé sont disponibles sur le site Géorisques : www.georisques.gouv.fr
Un site en faveur du bien-être, qui permettra aux utilisateurs de se dépenser en proposant des sports indoor ainsi qu'un parcours extérieur aménagé grâce à l'installation d'équipements favorisant le sport en accès libre, un site préservé au coeur d'un environnement verdoyant, ressourçant et énergisant.
| Étage | Type | Surfaces | Dispo | Prix(m²) | Charges | Honoraires | Fiscal |
|---|---|---|---|---|---|---|---|
| RDC | Bureaux | 513 | Septembre 2027 | 3300 m² HT | n.c. | 5% HT du prix de vente HT à la charge de l'acquéreur | T.V.A. |
| 1 | Bureaux | 468 | Septembre 2027 | 3300 m² HT | n.c. | 5% HT du prix de vente HT à la charge de l'acquéreur | T.V.A. |
| 2 | Bureaux | 468 | Septembre 2027 | 3300 m² HT | n.c. | 5% HT du prix de vente HT à la charge de l'acquéreur | T.V.A. |
| 3 | Bureaux | 468 | Septembre 2027 | 3500 m² HT | n.c. | 5% HT du prix de vente HT à la charge de l'acquéreur | T.V.A. |
| RDC | Bureaux | 469 | Septembre 2027 | 3300 m² HT | n.c. | 5% HT du prix de vente HT à la charge de l'acquéreur | T.V.A. |
| RDC | Bureaux | 346 | Septembre 2027 | 3300 m² HT | n.c. | 5% HT du prix de vente HT à la charge de l'acquéreur | T.V.A. |
| RDC | Bureaux | 248 | Septembre 2027 | 3300 m² HT | n.c. | 5% HT du prix de vente HT à la charge de l'acquéreur | T.V.A. |
| 1 | Bureaux | 415 | Septembre 2027 | 3300 m² HT | n.c. | 5% HT du prix de vente HT à la charge de l'acquéreur | T.V.A. |
| 1 | Bureaux | 190 | Septembre 2027 | 3300 m² HT | n.c. | 5% HT du prix de vente HT à la charge de l'acquéreur | T.V.A. |
| 1 | Bureaux | 177 | Septembre 2027 | 3300 m² HT | n.c. | 5% HT du prix de vente HT à la charge de l'acquéreur | T.V.A. |
| 1 | Bureaux | 79 | Septembre 2027 | 3300 m² HT | n.c. | 5% HT du prix de vente HT à la charge de l'acquéreur | T.V.A. |
| 2 | Bureaux | 445 | Septembre 2027 | 3300 m² HT | n.c. | 5% HT du prix de vente HT à la charge de l'acquéreur | T.V.A. |
| 2 | Bureaux | 364 | Septembre 2027 | 3300 m² HT | n.c. | 5% HT du prix de vente HT à la charge de l'acquéreur | T.V.A. |
| 2 | Bureaux | 247 | Septembre 2027 | 3300 m² HT | n.c. | 5% HT du prix de vente HT à la charge de l'acquéreur | T.V.A. |
| 2 | Bureaux | 166 | Septembre 2027 | 3300 m² HT | n.c. | 5% HT du prix de vente HT à la charge de l'acquéreur | T.V.A. |
| 3 | Bureaux | 447 | Septembre 2027 | 3500 m² HT | n.c. | 5% HT du prix de vente HT à la charge de l'acquéreur | T.V.A. |
| 3 | Bureaux | 412 | Septembre 2027 | 3500 m² HT | n.c. | 5% HT du prix de vente HT à la charge de l'acquéreur | T.V.A. |
Régime Fiscal : T.V.A.
Honoraires : 5% HT du prix de vente HT à la charge de l'acquéreur
Prestations :
- 100% des lots sont accessibles aux
- PMR et sont conformes ERP
- Chaque lot bénéficie d'un extérieur privatif
- Espaces arborés
- Espaces modulables disponibles à
- partir de 150 m²
- Espaces communs haut de gamme,
- comprenant des espaces extérieurs et
- privatifs
- Finitions personnalisables : brut,
- plateau paysager ou clé en main avec
- accompagnement tout au long du
- projet
- Programme mixte : restaurants, bar, sports & loisirs, séminaires, espace santé, commerces, coworking...
- Promenade entièrement piétonne et végétalisée
- Terrasses privatives
- Bâtiment B1 :
- ERP type W pour le RDC et R+1
- ERP type Code du Travail pour le R+2 et R+3
- Bâtiment B2 :
- ERP Type W pour tous les étages
- Labels :
- Objectif RT2012 -30 %, équivalent RE2020
- Biodivercity
- 295 Places de stationnement mutualisées :
- Loyer : Nous consulter
- Prix de vente place standard : 10 000 euros HT/U
- Prix de vente place avec borne électrique : 15 000 euros HT/U
- 1 place pour 70 m²
- Surface RDC : 1576 m²
Accessibilité:
Bus Lignes C10/86/91 arrêt : "Pavé Stratégique"
Autoroute A22/A1
Route Rocade Nord Ouest
Les informations sur les risques auxquels ce bien est exposé sont disponibles sur le site Géorisques : www.georisques.gouv.fr
Voir plus
Afficher les consommations énergétiques
Favoris
Exporter
Appeler
Contacter
Signaler cette annonce










