Conseil en immobilier d'entreprise, Cushman & Wakefield est un acteur incontournable au rayonnement international. Cushman & Wakefield offre des solutions dans toutes les étapes que comporte un p ...
En savoir plus

3 646 m² divisible dès 117 m²
SWELY - Bureau à vendre - 3646 m²
Lyon 7 (69007)
Publiée : Il y a 12 jours
SWELY
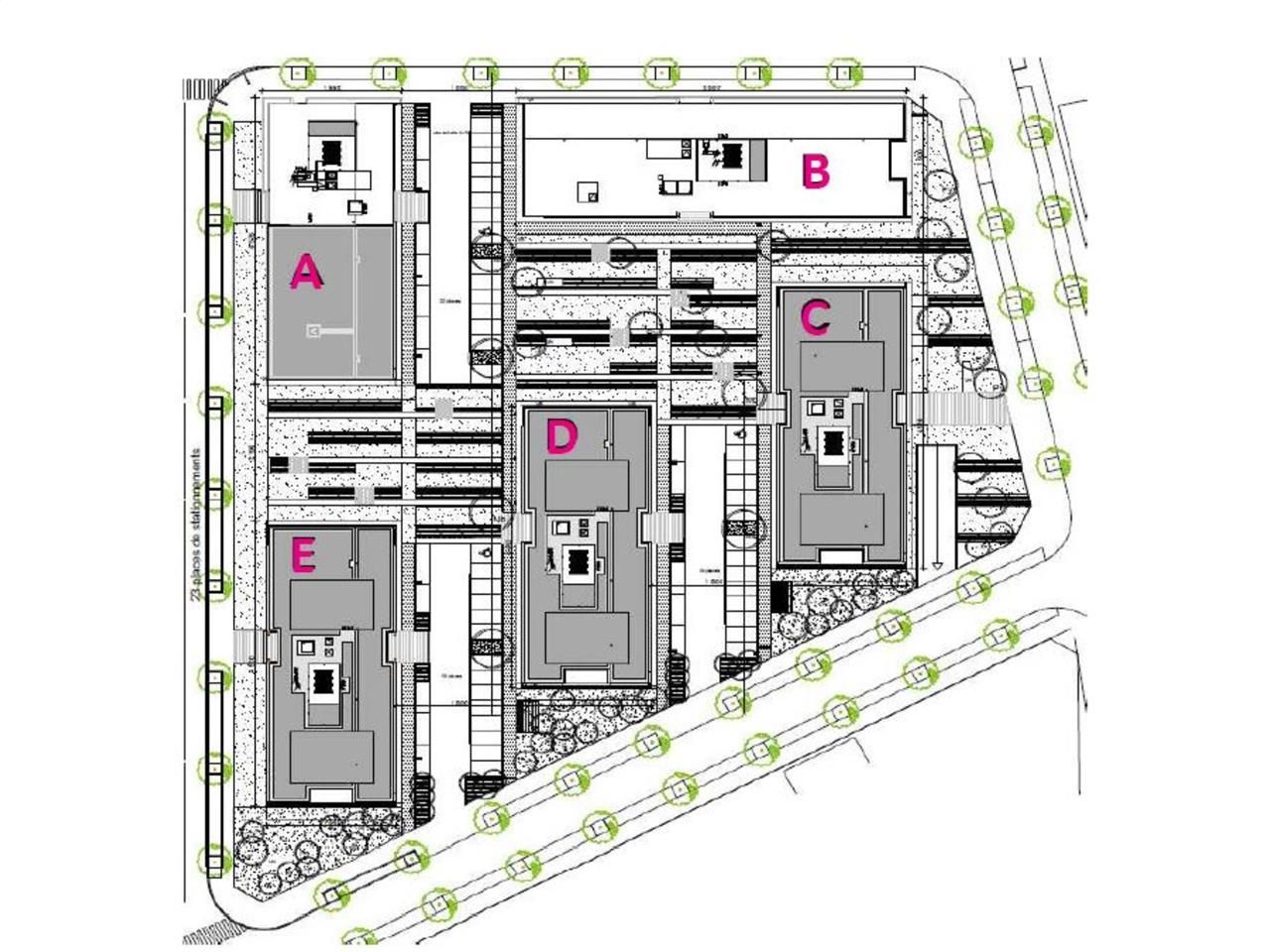
Immeuble SWELY
ANCIENNEMENT GERLAND PLAZA
Nous vous proposons des immeubles de bureaux récents à la vente ou à la location, situés dans le 7ème arrondissement de Lyon (69007), qui disposent chacun d'un accès individuel et de stationnement en pied d'immeuble, le tout dans un bel espace paysager avec espaces verts et locaux vélos;
Raccordement immédiat à deux lignes de tramway à
Impôt Foncier : 24 €/HT/m²/an
Régime Fiscal : Droits d'enregistrement
Honoraires : 2.5 % HT du prix de vente HD à la charge de l'acquéreur
Prestations :
Accessibilité:
Métro Debourg (ligne B)
Tram T1 : Halle Tony garnier + T2 : à Gare .perrache ou à J.Macé - T6 à 5 min à pied
SNCF SNCF Part-Dieu + Perrache ou J. Macé à 15 minutes
Bus Techsud (ligne Zi6)+navette privée entre le site et la station "Debourg"
Les informations sur les risques auxquels ce bien est exposé sont disponibles sur le site Géorisques : www.georisques.gouv.fr
Immeuble SWELY
ANCIENNEMENT GERLAND PLAZA
Nous vous proposons des immeubles de bureaux récents à la vente ou à la location, situés dans le 7ème arrondissement de Lyon (69007), qui disposent chacun d'un accès individuel et de stationnement en pied d'immeuble, le tout dans un bel espace paysager avec espaces verts et locaux vélos;
Raccordement immédiat à deux lignes de tramway à
| Étage | Type | Surfaces | Dispo | Prix(m²) | Charges | Honoraires | Fiscal |
|---|---|---|---|---|---|---|---|
| 3 | Bureaux | 437,1 | 2900 /m² HD.HT | 30 | 2.5 % HT du prix de vente HD à la charge de l'acquéreur | Droits d'enregistrement | |
| 2 | Bureaux | 474,8 | 2900 /m² HD.HT | 30 | 2.5 % HT du prix de vente HD à la charge de l'acquéreur | Droits d'enregistrement | |
| 2 | Bureaux | 454,8 | 2900 /m² HD.HT | 30 | 2.5 % HT du prix de vente HD à la charge de l'acquéreur | Droits d'enregistrement | |
| 1 | Bureaux | 485,5 | 2900 /m² HD.HT | 30 | 2.5 % HT du prix de vente HD à la charge de l'acquéreur | Droits d'enregistrement | |
| 2 | Bureaux | 353,5 | 2900 /m² HD.HT | 30 | 2.5 % HT du prix de vente HD à la charge de l'acquéreur | Droits d'enregistrement | |
| 1 | Bureaux | 177,9 | 2900 /m² HD.HT | 30 | 2.5 % HT du prix de vente HD à la charge de l'acquéreur | Droits d'enregistrement | |
| 2 | Bureaux | 381,6 | 2900 /m² HD.HT | 30 | 2.5 % HT du prix de vente HD à la charge de l'acquéreur | Droits d'enregistrement | |
| 2 | Bureaux | 117,4 | 2900 /m² HD.HT | 30 | 2.5 % HT du prix de vente HD à la charge de l'acquéreur | Droits d'enregistrement | |
| 1 | Bureaux | 381,8 | 2900 /m² HD.HT | 30 | 2.5 % HT du prix de vente HD à la charge de l'acquéreur | Droits d'enregistrement | |
| 1 | Bureaux | 381,5 | 2900 /m² HD.HT | 30 | 2.5 % HT du prix de vente HD à la charge de l'acquéreur | Droits d'enregistrement | |
| pkg Ext | Parkings | 10000 /U HD.HT | n.c. | 2.5 % HT du prix de vente HD à la charge de l'acquéreur | Droits d'enregistrement | ||
| SS | Parkings | 15000 /U HD.HT | n.c. | 2.5 % HT du prix de vente HD à la charge de l'acquéreur | Droits d'enregistrement |
Impôt Foncier : 24 €/HT/m²/an
Régime Fiscal : Droits d'enregistrement
Honoraires : 2.5 % HT du prix de vente HD à la charge de l'acquéreur
Prestations :
- Parc tertiaire de standing
- Parties communes de qualité
- Parc clos et sécurisé
- Gardiennage
- Espaces verts paysagés et aménagés
- Nombreux stationnements
- Immeuble indépendant de 2100 à 4500 m²
- GTC
- Accès PMR
- Plateaux lumineux
- Faux plancher technique
- Faux plancher en dalle avec luminaires encastrés
- Climatisation réversible
- Hauteur 2.7 m
- Façades rénovées
- Espaces communs, services à l'étude
- Parking : 1 place pour 42 m²
- 9 caves disponibles
- Bâtiment A : Cloisons amovibles vitrées avec vitrophanie
- Bâtiment D : Plateau neuf / Jamais occupé
- plateau neuf
- Plateau
- plateau
Accessibilité:
Métro Debourg (ligne B)
Tram T1 : Halle Tony garnier + T2 : à Gare .perrache ou à J.Macé - T6 à 5 min à pied
SNCF SNCF Part-Dieu + Perrache ou J. Macé à 15 minutes
Bus Techsud (ligne Zi6)+navette privée entre le site et la station "Debourg"
Les informations sur les risques auxquels ce bien est exposé sont disponibles sur le site Géorisques : www.georisques.gouv.fr
Voir plus
Afficher les consommations énergétiques
Localisation et transport aux alentours
Favoris
Exporter
Appeler
Contacter
Signaler cette annonce










