Conseil en immobilier d'entreprise, Cushman & Wakefield est un acteur incontournable au rayonnement international. Cushman & Wakefield offre des solutions dans toutes les étapes que comporte un p ...
En savoir plus



2 353 m² divisible dès 280 m²
LYCORNE - Bureau à vendre - 2353 m²
Lyon 2 (69002)
Dernière mise à jour : Il y a 4 mois
À VENDRE - BUREAUX D''EXCEPTION À LYON CONFLUENCE (69002)
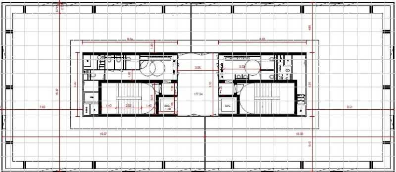
Immeuble LYCORNE
Au sein du quartier emblématique de Lyon Confluence, l'immeuble PYLOTE propose une offre rare de bureaux à vendre à la découpe, dès 280m², dans un cadre architectural contemporain et engagé sur le plan environnemental.
Cushman & Wakefield Lyon a le privilège de commercialiser cet actif de qualité, parfaitement intégré à un tissu urbain dynamique mêlant bureaux, commerces et logements.
PYLOTE se distingue par des plateaux lumineux, libres de toute contrainte structurelle, facilement aménageables selon les besoins des utilisateurs. Chaque lot bénéficie d'un balcon filant, accessible directement depuis les bureaux, créant une véritable continuité entre espace intérieur et extérieur - un confort rare dans un environnement tertiaire. Le bâtiment est pensé pour favoriser la qualité de vie au travail et l'efficacité énergétique, avec des équipements modernes et des installations techniques performantes.
Cet immeuble dernière génération bénéficie des labels BREEAM Very Good, RT 2012 -30% et WiredScore Gold, assurant à la fois durabilité, connectivité et maîtrise des consommations. Des places de stationnement en sous-sol complètent l'ensemble, facilitant l'accessibilité, déjà renforcée par la proximité du tramway, de la gare de Perrache et des grands axes.
Résumé des prestations - PYLOTE :
Surface totale : 2 648 m²
Divisible à partir de 280 m²
Balcons filants sur tous les lots
Plateaux libres, lumineux, sans contraintes porteuses
Stationnement privatif en sous-sol en DROIT D'USAGE
Labels : BREEAM Very Good, RT 2012 -30%, WiredScore Gold
Quartier Confluence : central, vivant, bien desservi
Prix de vente à partir de 4 700 euros HT/m². Disponibilité immédiate.
Honoraires : 5 % HT du prix de vente HD à la charge de l'acquéreur
Prestations :
Accessibilité:
Métro Perrache (ligne A)
Tram T1-T2
SNCF Perrache à 5 mn
Bus Ligne 63
vélo'v Vélo'V à proximité
Accès routier A6
Accès routier A7
Accès routier Bd périph
Les informations sur les risques auxquels ce bien est exposé sont disponibles sur le site Géorisques : www.georisques.gouv.fr
Immeuble LYCORNE
Au sein du quartier emblématique de Lyon Confluence, l'immeuble PYLOTE propose une offre rare de bureaux à vendre à la découpe, dès 280m², dans un cadre architectural contemporain et engagé sur le plan environnemental.
Cushman & Wakefield Lyon a le privilège de commercialiser cet actif de qualité, parfaitement intégré à un tissu urbain dynamique mêlant bureaux, commerces et logements.
PYLOTE se distingue par des plateaux lumineux, libres de toute contrainte structurelle, facilement aménageables selon les besoins des utilisateurs. Chaque lot bénéficie d'un balcon filant, accessible directement depuis les bureaux, créant une véritable continuité entre espace intérieur et extérieur - un confort rare dans un environnement tertiaire. Le bâtiment est pensé pour favoriser la qualité de vie au travail et l'efficacité énergétique, avec des équipements modernes et des installations techniques performantes.
Cet immeuble dernière génération bénéficie des labels BREEAM Very Good, RT 2012 -30% et WiredScore Gold, assurant à la fois durabilité, connectivité et maîtrise des consommations. Des places de stationnement en sous-sol complètent l'ensemble, facilitant l'accessibilité, déjà renforcée par la proximité du tramway, de la gare de Perrache et des grands axes.
Résumé des prestations - PYLOTE :
Surface totale : 2 648 m²
Divisible à partir de 280 m²
Balcons filants sur tous les lots
Plateaux libres, lumineux, sans contraintes porteuses
Stationnement privatif en sous-sol en DROIT D'USAGE
Labels : BREEAM Very Good, RT 2012 -30%, WiredScore Gold
Quartier Confluence : central, vivant, bien desservi
Prix de vente à partir de 4 700 euros HT/m². Disponibilité immédiate.
| Étage | Type | Surfaces | Dispo | Prix(m²) | Charges | Honoraires | Fiscal |
|---|---|---|---|---|---|---|---|
| 4 | Bureaux | 301,1 | 5000 /m² HD.HT | n.c. | 5 % HT du prix de vente HD à la charge de l'acquéreur | ||
| 4 | Bureaux | 293,6 | 5000 /m² HD.HT | n.c. | 5 % HT du prix de vente HD à la charge de l'acquéreur | ||
| 3 | Bureaux | 300,1 | 5000 /m² HD.HT | n.c. | 5 % HT du prix de vente HD à la charge de l'acquéreur | ||
| 3 | Bureaux | 293,1 | 5000 /m² HD.HT | n.c. | 5 % HT du prix de vente HD à la charge de l'acquéreur | ||
| 2 | Bureaux | 302,8 | 4900 /m² HD.HT | n.c. | 5 % HT du prix de vente HD à la charge de l'acquéreur | ||
| 2 | Bureaux | 280 | 4900 /m² HD.HT | n.c. | 5 % HT du prix de vente HD à la charge de l'acquéreur | ||
| 1 | Bureaux | 302,3 | 4800 /m² HD.HT | n.c. | 5 % HT du prix de vente HD à la charge de l'acquéreur | ||
| 1 | Bureaux | 280 | 4700 /m² HD.HT | n.c. | 5 % HT du prix de vente HD à la charge de l'acquéreur | ||
| Sous-Sol | Parkings | n.c. | n.c. | 5 % HT du prix de vente HD à la charge de l'acquéreur |
Honoraires : 5 % HT du prix de vente HD à la charge de l'acquéreur
Prestations :
- ERP : 5ème catégorie
- Quartier à énergie positive, WWF "One Planet Living"
- Quartier Confluence, l'un des pôles majeurs de Lyon
- Bâtiments Plug'yn et Pylote ERP 5 type W à tous les étages
- Commerce classé ERP 5 type N au rez-de-chaussée
- Bâtiments certifiés BREEAM Very Good
- Rafraîchissement par groupe un groupe froid à absorbation et un groupe froid à condensation.
- Protections solaires type BSO.
- Places en amodiation dans le parking Marché Gare
- Bâtiments Plug'yn
- Terrasse plantée et cour jardinée accessible
- Locaux vélo en rez-de-chaussée
- Bâtiments Pylote
- Plateaux libres de toute contrainte structurelle
- Balcons filants accessibles à tous les étages
- Hall traversant, côté Rhône et côté jardin
- Espace jardiné accessible
- Locaux vélo en sous-sol, douches
- Centrale de cogénération pour les 2 îlots en infrastructure
- Panneaux photovoltaïques en toiture
- Bureaux classés ERP 5 type W à tous les étages
- Plateaux libres de toute contrainte structurelle
- Hauteur sous plafond dans les espaces de bureaux :environ 2,70m
- Immeuble indépendant
- Surface RDC : 155 m²
Accessibilité:
Métro Perrache (ligne A)
Tram T1-T2
SNCF Perrache à 5 mn
Bus Ligne 63
vélo'v Vélo'V à proximité
Accès routier A6
Accès routier A7
Accès routier Bd périph
Les informations sur les risques auxquels ce bien est exposé sont disponibles sur le site Géorisques : www.georisques.gouv.fr
Voir plus
Afficher les consommations énergétiques
Localisation et transport aux alentours
- Sainte-Blandine253m (4min à pied)1
- Montrochet282m (4min à pied)1
Favoris
Exporter
Appeler
Contacter
Signaler cette annonce










