Geolink Expansion propose un service simple et gratuit de recherche de locaux pour toutes les entreprises. Grâce à son réseau de collectivités locales et de gestionnaires de zones d’activités, Geol ...
En savoir plus

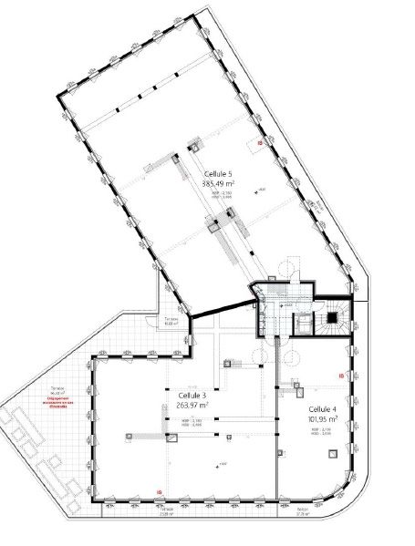
751 m² divisible dès 101 m²
Bureau à vendre - 751 m²
Le Havre (76600)
Dernière mise à jour : Il y a 5 mois
À vendre – Bureaux de 101 à 385 m² à proximité des Docks Vauban du Havre – Seine-Maritime (76)
Au premier étage d'un bâtiment neuf, dont la livraison est prévue pour le 4 trimestre 2025, découvrez ce plateau de 751,42 m², divisible en trois espaces distincts. Livré brut de béton, il offre des surfaces adaptables de 101,95 m², 263,97 m² et 385,49 m², selon vos besoins spécifiques. Cet espace bénéficie d'une terrasse privative de 214,24 m² ainsi que de 11 places de parking.
Le prix de vente de ces bureaux est de 1 490 000 HT. La taxe foncière 19 /m² avec une exonération les deux premières années.
Au premier étage d'un bâtiment neuf, dont la livraison est prévue pour le 4 trimestre 2025, découvrez ce plateau de 751,42 m², divisible en trois espaces distincts. Livré brut de béton, il offre des surfaces adaptables de 101,95 m², 263,97 m² et 385,49 m², selon vos besoins spécifiques. Cet espace bénéficie d'une terrasse privative de 214,24 m² ainsi que de 11 places de parking.
Le prix de vente de ces bureaux est de 1 490 000 HT. La taxe foncière 19 /m² avec une exonération les deux premières années.
Voir plus
Afficher les consommations énergétiques
Localisation et transport aux alentours
Favoris
Exporter
Appeler
Contacter
Signaler cette annonce










