Geolink Expansion propose un service simple et gratuit de recherche de locaux pour toutes les entreprises. Grâce à son réseau de collectivités locales et de gestionnaires de zones d’activités, Geol ...
En savoir plus

514 m²
Bureau à vendre - 514 m²
Le Havre (76600)
Dernière mise à jour : Il y a 2 jours
À vendre – Bureaux de 514 m² au Havre – Seine-Maritime (76)
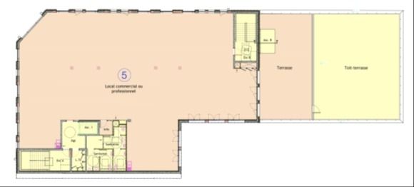
Situé au 4e étage d'un immeuble récent, ce plateau de 514 m² est proposé à la vente. Livré brut de béton, avec les fluides en attente, il offre un fort potentiel d'aménagement selon vos besoins. Le bien comprend 8 places de stationnement ainsi qu'une terrasse privative de 100 m².
Idéalement situé à proximité immédiate de la gare du Havre, il bénéficie d'un excellent accès aux transports en commun, notamment aux lignes de bus et de tramway.
Ces bureaux sont disponibles à la vente au prix de 1 850 000 net vendeur.
Situé au 4e étage d'un immeuble récent, ce plateau de 514 m² est proposé à la vente. Livré brut de béton, avec les fluides en attente, il offre un fort potentiel d'aménagement selon vos besoins. Le bien comprend 8 places de stationnement ainsi qu'une terrasse privative de 100 m².
Idéalement situé à proximité immédiate de la gare du Havre, il bénéficie d'un excellent accès aux transports en commun, notamment aux lignes de bus et de tramway.
Ces bureaux sont disponibles à la vente au prix de 1 850 000 net vendeur.
Voir plus
Afficher les consommations énergétiques
Localisation et transport aux alentours
Favoris
Exporter
Appeler
Contacter
Signaler cette annonce










