MCarré Conseil est une agence spécialiste de l'immobilier d’entreprise du sud de l’Île-de-France (en Essonne et dans le sud de la Seine-et-Marne et du Val-De-Marne). Elle vous accompagne à chaque é ...
En savoir plus

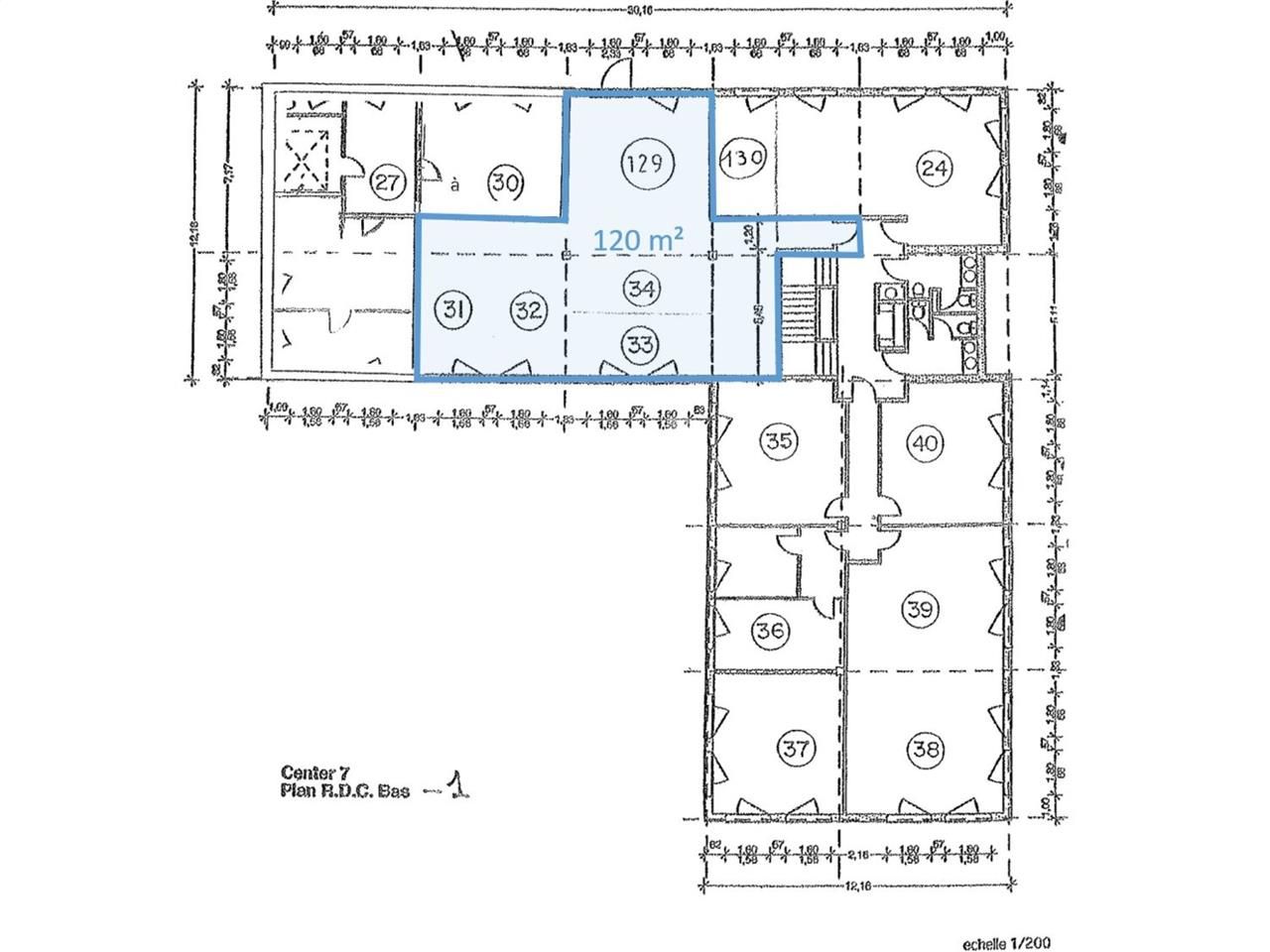
120 m²
Bureau à vendre - 120 m²
Évry (91000)
Dernière mise à jour : Hier
En accès direct avec la Nationale 7, nous vous proposons à la vente un plateau de bureaux en rez-de-chaussée.
Impôt Foncier : 3043 €/HT/an
Régime Fiscal : Droits de mutation
Honoraires : 7% HT du prix de vente à la charge de l'Acquéreur
Taxe Bureau : 630 €/m²/an
Prestations :
Accessibilité:
Autoroute Autoroute A6
Route Nationale 104 Francilienne
Route Nationale 7
RER RER D : Evry-Courcouronnes
Bus Rue d'Antin (Ligne 453, Ligne 404, Ligne 403), Petits Bois (Ligne 408)
Les informations sur les risques auxquels ce bien est exposé sont disponibles sur le site Géorisques : www.georisques.gouv.fr
| Étage | Type | Surfaces | Dispo | Prix(m²) | Charges | Honoraires | Fiscal |
|---|---|---|---|---|---|---|---|
| RdcB | Bureaux | 120 | Immédiate | 1050 m² HD | 2253 HT/an | 7% HT du prix de vente à la charge de l'Acquéreur | Droits de mutation |
| Parkings | n.c. | n.c. | 7% HT du prix de vente à la charge de l'Acquéreur | Droits de mutation |
Impôt Foncier : 3043 €/HT/an
Régime Fiscal : Droits de mutation
Honoraires : 7% HT du prix de vente à la charge de l'Acquéreur
Taxe Bureau : 630 €/m²/an
Prestations :
- Bureaux cloisonnés
- Convecteurs électriques
- Plinthes périphériques
- Sanitaires en partie commune
- Contrôle d'accès par interphone
- Porte d'accès extérieure indépendante (1,81 m L x 2,34 m H)
Accessibilité:
Autoroute Autoroute A6
Route Nationale 104 Francilienne
Route Nationale 7
RER RER D : Evry-Courcouronnes
Bus Rue d'Antin (Ligne 453, Ligne 404, Ligne 403), Petits Bois (Ligne 408)
Les informations sur les risques auxquels ce bien est exposé sont disponibles sur le site Géorisques : www.georisques.gouv.fr
Emplacement(s) de Parking: 2 extérieur(s)
Voir plus
Afficher les consommations énergétiques
Localisation et transport aux alentours
Favoris
Exporter
Appeler
Contacter
Signaler cette annonce
