MCarré Conseil est une agence spécialiste de l'immobilier d’entreprise du sud de l’Île-de-France (en Essonne et dans le sud de la Seine-et-Marne et du Val-De-Marne). Elle vous accompagne à chaque é ...
En savoir plus

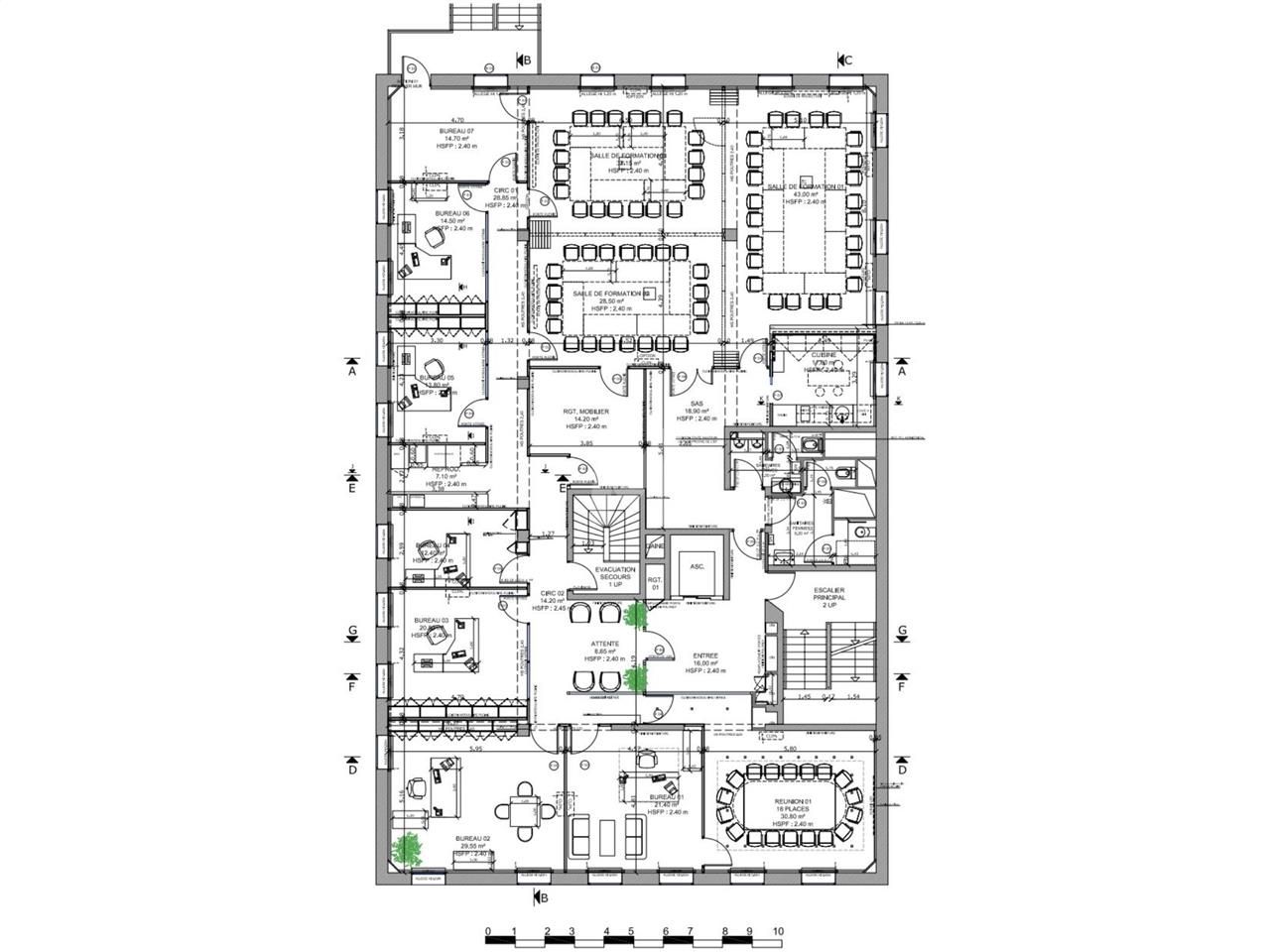
338 m²
Bureau à vendre - 338 m²
Évry (91000)
Dernière mise à jour : Il y a 2 jours
A proximité de la gare RER d'Evry-Courcouronnes (ligne D), nous vous proposons à l'acquisition un plateau de bureaux bénéficiant de 8 parkings en sous-sol.
Impôt Foncier : 10371 €//an
Régime Fiscal : Droits de mutation
Honoraires : 5% HT du prix de vente à la charge de l'Acquéreur
Taxe Bureau : 1975 €/m²/an
Prestations :
Accessibilité:
Autoroute Autoroute A6
Route Nationale 7
RER Evry-Courcouronnes (Ligne D)
Tram Évry - Courcouronnes (Ligne T12)
Bus Gare de Evry Courcouronnes (Ligne 50), Gare d'Evry-Courcouronnes Centre (Ligne 415, Ligne 414, Ligne 405, Ligne 407, Ligne 416, Ligne 401, Ligne 402, Ligne 404, Ligne 453, Ligne 403), Gare d'Evry Courcouronnes Centre (Niveau 0) (Ligne 408, Ligne N135), Gare Évry Courcouronnes (Ligne 7002), Evry-Courcouronnes Gare (Ligne 207), Gare Routière (Ligne 91-01, Ligne 91-05, Ligne 9104, Ligne 91-09), Évry - Courcouronnes (Ligne N144)
Les informations sur les risques auxquels ce bien est exposé sont disponibles sur le site Géorisques : www.georisques.gouv.fr
| Étage | Type | Surfaces | Dispo | Prix(m²) | Charges | Honoraires | Fiscal |
|---|---|---|---|---|---|---|---|
| 2 | Bureaux | 337,7 | Immédiate | 2013,62 m² HD/HH | n.c. | 5% HT du prix de vente à la charge de l'Acquéreur | Droits de mutation |
| 2SS | Parkings | n.c. | n.c. | 5% HT du prix de vente à la charge de l'Acquéreur | Droits de mutation |
Impôt Foncier : 10371 €//an
Régime Fiscal : Droits de mutation
Honoraires : 5% HT du prix de vente à la charge de l'Acquéreur
Taxe Bureau : 1975 €/m²/an
Prestations :
- Ascenseur
- Bureaux cloisonnés
- Climatisation
- Faux-plafonds avec luminaires encastrés
- Salles de réunion
- Kitchenette
- Local informatique
- Sanitaires privatifs
- Sécurité : vidéophone
Accessibilité:
Autoroute Autoroute A6
Route Nationale 7
RER Evry-Courcouronnes (Ligne D)
Tram Évry - Courcouronnes (Ligne T12)
Bus Gare de Evry Courcouronnes (Ligne 50), Gare d'Evry-Courcouronnes Centre (Ligne 415, Ligne 414, Ligne 405, Ligne 407, Ligne 416, Ligne 401, Ligne 402, Ligne 404, Ligne 453, Ligne 403), Gare d'Evry Courcouronnes Centre (Niveau 0) (Ligne 408, Ligne N135), Gare Évry Courcouronnes (Ligne 7002), Evry-Courcouronnes Gare (Ligne 207), Gare Routière (Ligne 91-01, Ligne 91-05, Ligne 9104, Ligne 91-09), Évry - Courcouronnes (Ligne N144)
Les informations sur les risques auxquels ce bien est exposé sont disponibles sur le site Géorisques : www.georisques.gouv.fr
Voir plus
Afficher les consommations énergétiques
Localisation et transport aux alentours
- Évry - Courcouronnes Centre89m (1min à pied)D
Favoris
Exporter
Appeler
Contacter
Signaler cette annonce










