L''agence BNP Paribas Real Estate est présente à Bordeaux depuis 40 ans. Elle accompagne les investisseurs et les entreprises dans chaque projet d''agrandissement, d''acquisition, de location et de ...
En savoir plus

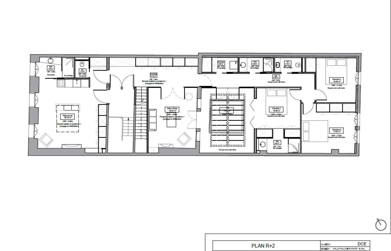
Bureau à vendre - 210 m²
BNP Paribas Real Estate vous propose à la vente de superbes bureaux situés dans le quartier des Chartrons à Bordeaux, un secteur emblématique alliant histoire, élégance et dynamisme économique.
Ces locaux professionnels traversants et lumineux ont été entièrement rénovés pour offrir un cadre de travail haut de gamme, idéal pour les entreprises à la recherche d'un emplacement prestigieux et inspirant.
Les atouts principaux de ces bureaux :
- Espaces spacieux, fonctionnels et baignés de lumière naturelle
- Terrasse privative de 100 m² avec vue panoramique sur l'église Notre-Dame
- Prestations haut de gamme : matériaux qualitatifs, équipements modernes, climatisation réversible
- Possibilité d'opération clé en main, avec livraison sous 6 à 8 mois après accord
- Environnement professionnel stimulant au coeur d'un quartier vivant et recherché
Un cadre de travail prestigieux dans un quartier emblématique
Le quartier des Chartrons, ancien fief des négociants en vin, est aujourd'hui l'un des secteurs les plus prisés de Bordeaux.
Il séduit par son mariage harmonieux entre patrimoine et modernité, sa vie de quartier animée et son ambiance créative et conviviale.
A proximité immédiate, vous trouverez :
- Le Quai des Chartrons et la promenade en bord de Garonne
- Le Musée du Vin et du Négoce et le CAPC
- De nombreux restaurants, cafés en terrasse et galeries d'art
- Des commerces de qualité et des services premium facilitant le quotidien des entreprises
Accessibilité et mobilité
Ce secteur central et bien desservi offre une excellente accessibilité :
- Tram B arrêts "Chartrons" ou "CAPC Musée d'Art Contemporain"
- Plusieurs lignes de bus reliant le centre-ville et la Gare Saint-Jean
- Accès rapide aux boulevards, au pont Chaban-Delmas et aux grands axes routiers
- A deux pas des Allées de Tourny et de la Place des Quinconces, lieux emblématiques de Bordeaux
Un investissement à forte valeur patrimoniale
Ces bureaux à vendre à Bordeaux Chartrons constituent une opportunité rare pour les entreprises souhaitant conjuguer prestige, confort et visibilité dans un quartier à fort potentiel de valorisation.
Leur vue exceptionnelle, la qualité des aménagements et la notoriété du secteur en font une adresse stratégique pour votre activité.
Avez vous regardé :
- Nos bureaux à vendre à Bordeaux centre
- Nos locaux professionnels à Mérignac
- Nos bureaux à louer dans le quartier des Chartrons
Honoraires: Nous consulter. à la signature de l'acte
| Fiche technique du bien | |
|---|---|
| Bus | Lignes 2-3-4-12-15 |
| Tramway | Lignes B-C-D |
| Desserte routière | A630 rocade |
| Aéroport | Bordeaux Merignac A 25 min |
| Gare | Bordeaux St Jean A 10 min |
| Etat de l'immeuble | Etat d'usage |
| Etat des locaux | Etat d'usage |
| Environnement de proximité | Commerces, transports |
| Câblage informatique | Courant fort |
| Aménagement des bureaux | Espaces Ouverts |
| Bureau(x) cloisonné(s) | Oui |
| Revêtement mural | Peinture |
| Sol bureaux | Parquet |
| Sanitaire(s) | Privatif(s) |
| Autre élément bureau | Prestations anciennes |










