RCG Bordeaux est un cabinet de conseil en immobilier d'entreprise est située au cœur du quartier des Chartrons au 107 cours Balguerie Stuttenberg à Bordeaux. Cette agence propose un large choix de ...
En savoir plus

2 475 m² divisible dès 196 m²
Bureau à vendre - 2475 m²
Bordeaux (33000)
Dernière mise à jour : Il y a 5 mois
A VENDRE A LOUER - ACTIVITES / BUREAUX 2475 M² DIVISIBLES - BORDEAUX LAC
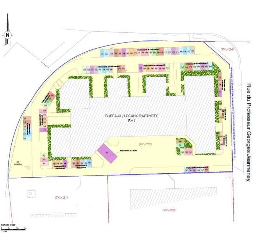
Secteur Bordeaux Lac, au sein d'un ensemble immobilier mixte de 3 740 m² bénéficiant d'une excellente visibilité et d'un accès direct rocade, RCG vous propose à la vente ou à la location, plusieurs lots de bureaux ou mixtes activités / bureaux.
90 places de stationnement extérieures.
Possibilité de normes ERP.
Impôt Foncier : 14 €/HT/m²/an
Régime Fiscal : Droits d'enregistrement
Dépôt de garantie : 3 mois de loyer HT/ HC
Honoraires : 6% HT du prix de vente HD à la charge de l'acquéreur
Information sur le Bail :
Le loyer est valable pour des bureaux rénovés par le bailleur.
Prestations :
Accessibilité:
Tram Tram C "Palais des Congrès"
Bus Bus lignes 25/32
Route Accès rocade rapide sortie n°4
Les informations sur les risques auxquels ce bien est exposé sont disponibles sur le site Géorisques : www.georisques.gouv.fr
Secteur Bordeaux Lac, au sein d'un ensemble immobilier mixte de 3 740 m² bénéficiant d'une excellente visibilité et d'un accès direct rocade, RCG vous propose à la vente ou à la location, plusieurs lots de bureaux ou mixtes activités / bureaux.
90 places de stationnement extérieures.
Possibilité de normes ERP.
| Étage | Type | Surfaces | Dispo | Prix(m²) | Charges | Honoraires | Fiscal |
|---|---|---|---|---|---|---|---|
| 1 | Bureaux | 260,7 | n.c. | n.c. | 6% HT du prix de vente HD à la charge de l'acquéreur | Droits d'enregistrement | |
| RDC | Activités | 369,1 | n.c. | n.c. | 6% HT du prix de vente HD à la charge de l'acquéreur | Droits d'enregistrement | |
| Total Cellule LOT 1 (A0) | Activités | 629,8 | Immédiate | 1458,37 m² HD | n.c. | 6% HT du prix de vente HD à la charge de l'acquéreur | Droits d'enregistrement |
| 1 | Bureaux | 55,7 | n.c. | n.c. | 6% HT du prix de vente HD à la charge de l'acquéreur | Droits d'enregistrement | |
| RDC | Activités | 870,6 | n.c. | n.c. | 6% HT du prix de vente HD à la charge de l'acquéreur | Droits d'enregistrement | |
| Total Cellule LOT 4 (D0) | Activités | 926,3 | Immédiate | 1493,99 m² HD | n.c. | 6% HT du prix de vente HD à la charge de l'acquéreur | Droits d'enregistrement |
| RDC | Bureaux | 387,2 | Immédiate | 1500 m² HD | n.c. | 6% HT du prix de vente HD à la charge de l'acquéreur | Droits d'enregistrement |
| RDC | Activités | 335,6 | Immédiate | 1500 m² HD | n.c. | 6% HT du prix de vente HD à la charge de l'acquéreur | Droits d'enregistrement |
| RDC | Bureaux | 196,1 | Immédiate | 1500 m² HD | n.c. | 6% HT du prix de vente HD à la charge de l'acquéreur | Droits d'enregistrement |
Impôt Foncier : 14 €/HT/m²/an
Régime Fiscal : Droits d'enregistrement
Dépôt de garantie : 3 mois de loyer HT/ HC
Honoraires : 6% HT du prix de vente HD à la charge de l'acquéreur
Information sur le Bail :
Le loyer est valable pour des bureaux rénovés par le bailleur.
Prestations :
- Immeuble ancien
- Chauffage individuel électrique
- Sol moquette
- Faux plafond
- Parking extérieur
- Sanitaires privatifs
- Accès livraisons
- Surface RDC : 2158,6 m²
Accessibilité:
Tram Tram C "Palais des Congrès"
Bus Bus lignes 25/32
Route Accès rocade rapide sortie n°4
Les informations sur les risques auxquels ce bien est exposé sont disponibles sur le site Géorisques : www.georisques.gouv.fr
Voir plus
Afficher les consommations énergétiques
Favoris
Exporter
Appeler
Contacter
Signaler cette annonce
