BNP Paribas Real Estate, N°1 de la transaction en immobilier d''entreprise en France, vous propose un accompagnement de qualité pour l''acquisition, la vente ou la location d''un bien immobilier.Vo ...
En savoir plus

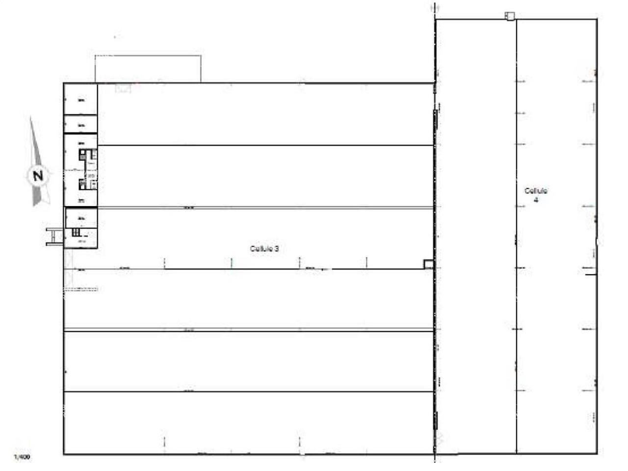
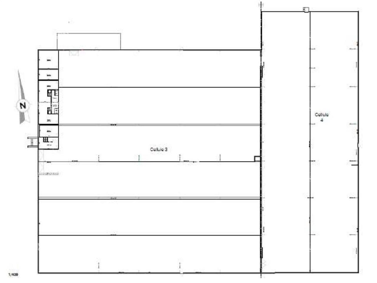
Location activité/entrepôt - 6882 m²
BNP PARIBAS REAL ESTATE vous propose à la location un entrepôt Classe C d'une surface totale d'environ 6 882 m². Le btiment est situé à Avignon (84) à proximité des axes routiers N100/N57/N7/A7/A9. Le site bénéficie d'un desserte routière particulièrement avantageuse grce à la connexion rapide aux autoroutes A7 et A9. Ces axes majeurs facilitent les déplacements vers le nord (Lyon, Paris) et le sud (Marseille, Montpellier), optimisant ainsi les flux de transport pour les entreprises implantées dans la zone.
Disponibilité : Septembre 2026
Caractéristiques techniques
Surface bureaux : 320 m²
Hauteur libre : 7,50 à 7,90 mètres
Portes d'accès à quai : 7
Portes d'accès plain-pied : 2
Parking : 47 places VL
Accessibilité
Accès routiers : N100/N57/N7/A7/A9
Gare Avignon Centre
Pour toute information complémentaire, contactez-nous.
Disponibilité: 01/09/2026
Honoraires: Nous consulter. à la signature du bail
| Fiche technique du bien | |
|---|---|
| TER | Gare d'Avignon-Centre |
| Desserte routière | N100/N57/N7/A7/A9 |
| Parking(s) | 47 Places |
| Hauteur libre | 7,50 mètre(s) à 7,90 mètres |
| Porte(s) d'accès plain-pied | 2 |
| Porte(s) d'accès à quai | 7 |










