Depuis 2003, KEOPS Toulouse accompagne les entreprises dans leurs projets immobiliers sur toute l’aire urbaine toulousaine.Notre équipe de professionnels passionnés met à votre service sa connaissa ...
En savoir plus

5 797 m² divisible dès 328 m²
Prix sur demande
Activité/Entrepôt à vendre - 5797 m²
Pibrac (31820)
Publiée : Il y a 4 jours
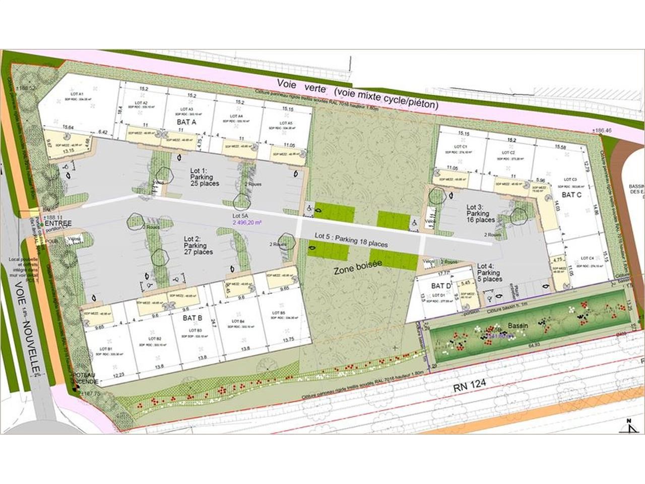
Bâtiment A - LIVRAISON MAI 2022- Locaux d'activités neufs, situés à l'ouest de Toulouse, à proximité de la zone Aéroportuaire
Régime Fiscal : T.V.A.
Dépôt de garantie : 3 mois de loyer HT HC
Honoraires : 5 % HT du prix de vente HT
Information sur le Bail :
Loyer Activité : 85.0 Euros HT HC / m² / an Loyer Parking extérieur : 300.0 Euros HT HC / U / an Bail : Commercial 6/9 ans
Prestations :
Accessibilité:
Accès : par RN124 sortie n° 7 A 15 minutes de l'aéroport international de Toulouse-Blagnac
Les informations sur les risques auxquels ce bien est exposé sont disponibles sur le site Géorisques : www.georisques.gouv.fr
| Étage | Type | Surfaces | Dispo | Prix(m²) | Charges | Honoraires | Fiscal |
|---|---|---|---|---|---|---|---|
| Activités | 5469 | Immédiate | n.c. | n.c. | 5 % HT du prix de vente HT | T.V.A. | |
| Activités | 328 | Immédiate | n.c. | n.c. | 5 % HT du prix de vente HT | T.V.A. |
Régime Fiscal : T.V.A.
Dépôt de garantie : 3 mois de loyer HT HC
Honoraires : 5 % HT du prix de vente HT
Information sur le Bail :
Loyer Activité : 85.0 Euros HT HC / m² / an Loyer Parking extérieur : 300.0 Euros HT HC / U / an Bail : Commercial 6/9 ans
Prestations :
- A l'ouest de Toulouse, au coeur du Parc de l'Escalette, locaux d'activités neufs à vendre ou à louer
- Bureaux livrés avec revêtement de sol, fluide en attente, aménagement des bureaux en option Ossature métallique, bardage double peau Une porte sectionnelle par lot (3,15 m x 3,50 m) Trappes de désenfumage Eclairage LED Protection incendie (RIA) Chauffage électrique Résistance dalle à 2T/m² Fenêtres sur les parties bureaux et mezzanine Mezzanine 350 kg/m² RT 2012 Parking arboré Site clôturé, avec portail
- Bâtiment A et D en cours de livraison
Accessibilité:
Accès : par RN124 sortie n° 7 A 15 minutes de l'aéroport international de Toulouse-Blagnac
Les informations sur les risques auxquels ce bien est exposé sont disponibles sur le site Géorisques : www.georisques.gouv.fr
Voir plus
Afficher les consommations énergétiques
Localisation et transport aux alentours
Favoris
Exporter
Appeler
Contacter
Signaler cette annonce










