Depuis plus de 20 ans, EOL est l'un des leaders de l'immobilier industriel, logistique et retail, spécialisé dans 3 métiers : la transaction, le conseil en investissement et l'assistance à maîtrise ...
En savoir plus

1 494 m² divisible dès 278 m²
HT HC
Location activité/entrepôt - 1494 m²
Marines (95640)
Publiée : Il y a 2 mois
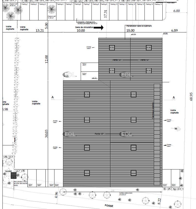
A LOUER : Locaux d'activités neufs
EOL vous propose à la location plusieurs locaux d'activités neufs d'une surface d'environ 300 m² chacun situés dans la ZA DES CARREAUX à MARINES (95).
Caractéristiques techniques :
Hauteur libre de 8m
1 accès de plain-pied H 3,5m x L 3,5 m
Puissance électrique : 36 kVA
Site clos et sécurisé
Emplacements VL
Accès : D915 - A15
SNCF : Ligne J "Santeuil" à 3.6 km
Disponibilité : Immédiate
N'hésitez pas à nous contacter pour tout renseignement complémentaire.
Superficies :
Description :
Bâtiment indépendant : non
Etat général : en cours de livraison}
Disponibilité : immédiate
Caractéristiques :
Dimensions porte sectionnelle : H 4m x L 4m
Type de construction : ossature métallique
Hauteur : de 5,5 à 8 m
Couverture : bac acier isolé étanchéité multicouche
Isolation de la toiture
Isolation des murs : bardage double peau isolé
Accès de plain pied : 1
Source du chauffage : électricité
Type d'éclairage : LED
Prestations :
Emplacements de parking : VL : Oui
Voierie lourde
Conditions financières (HT) :
Loyer global HT-HC/an : 25 200 €
Loyer global HT-HC/m²/an : 90,5 €
Charges (HT) & Taxes :
Charges locatives : 0 €/m²
Charges de copropriété : 0 €/m²
EOL vous propose à la location plusieurs locaux d'activités neufs d'une surface d'environ 300 m² chacun situés dans la ZA DES CARREAUX à MARINES (95).
Caractéristiques techniques :
Hauteur libre de 8m
1 accès de plain-pied H 3,5m x L 3,5 m
Puissance électrique : 36 kVA
Site clos et sécurisé
Emplacements VL
Accès : D915 - A15
SNCF : Ligne J "Santeuil" à 3.6 km
Disponibilité : Immédiate
N'hésitez pas à nous contacter pour tout renseignement complémentaire.
Superficies :
Description :
Bâtiment indépendant : non
Etat général : en cours de livraison}
Disponibilité : immédiate
Caractéristiques :
Dimensions porte sectionnelle : H 4m x L 4m
Type de construction : ossature métallique
Hauteur : de 5,5 à 8 m
Couverture : bac acier isolé étanchéité multicouche
Isolation de la toiture
Isolation des murs : bardage double peau isolé
Accès de plain pied : 1
Source du chauffage : électricité
Type d'éclairage : LED
Prestations :
Emplacements de parking : VL : Oui
Voierie lourde
Conditions financières (HT) :
Loyer global HT-HC/an : 25 200 €
Loyer global HT-HC/m²/an : 90,5 €
Charges (HT) & Taxes :
Charges locatives : 0 €/m²
Charges de copropriété : 0 €/m²
| Étage | Type | Surfaces (m²) | Dispo | Parking Ext. | Hauteur ss Plafond |
|---|---|---|---|---|---|
| RDC | local dactivités | 304 | immédiate | 5.50 | |
| RDC | local dactivités | 304 | immédiate | 5.50 | |
| RDC | local dactivités | 304 | immédiate | 5.50 | |
| RDC | local dactivités | 304 | immédiate | 5.50 | |
| RDC | local dactivités | 278 | immédiate | 5.50 |
| Fiche technique du bien | |
|---|---|
| Hauteur Sous ferme (m) | 5.50 |
| Puissance électrique | 36 |
| Type de chauffage | Electrique |
| Nombre de quais | 0 |
Voir plus
Afficher les consommations énergétiques
Surfaces divisibles : 5
| Surface | LoyerHT/HC/m²/an | Étage / Batiment |
| 304 m² | 91 € | RDC |
| 304 m² | 91 € | RDC |
| 304 m² | 91 € | RDC |
| 304 m² | 91 € | RDC |
| 278 m² | 91 € | RDC |
Favoris
Exporter
Appeler
Contacter
Signaler cette annonce
