Notre équipe est composée d''experts du marché immobilier d''entreprise, et renforce ainsi notre position de leader des transactions immobilières à Toulouse. Notre mission est de vous guider afin d ...
En savoir plus

Activité/Entrepôt à vendre - 2399 m²
*** TOULOUSE SUD-OUEST - PORTET/GARONNE : PARC D'ACTIVITES NEUF A L'ACQUISITION ***
BNP PARIBAS REAL ESTATE vous invite à découvrir ce nouveau programme en construction proposant environ 3 400 m² environ de locaux neufs à vendre, divisibles à partir de 280 m² environ.
L'ensemble immobilier disponible à la vente bénéficie d'un emplacement exceptionnel à proximité immédiate du centre commercial "Carrefour" de Portet-sur-Garonne,
Toutes les cellules bénéficient d'un accès livraison par porte sectionnelle, d'une belle hauteur libre et d'un accès piéton avec une mezzanine aménageable en bureaux.
Chantier en cours : livraison prévue fin 2025.
PRESTATIONS ACTIVITE / ENTREPOT :
- Charge au sol RDC : 3,5 tonnes / m²
- Charge au sol étage : 250 kg / m²
Porte d'accès plain-pied : 1 par lot
Puissance électrique : Tarif Bleu , 36 KW
Hauteur sous porte plain-pied : 4,5 mètres x 3,5 mètres de large
Hauteur libre : 6 mètres
Panneaux photovoltaques en toiture (autoconsommation)
Site clôturé
Accessibilité type(s) véhicule(s) : Moyen(s) porteur(s)
Murs : Bardage double peau
Structure : Métallique
Charpente : Métallique
Couverture : Bac acier isolé
Sol du btiment : Béton
DESCRIPTIFS & SERVICES :
Parkings : Voiture extérieur , 4 par cellule
Immeuble copropriété
Fluides en attente
Fibre optique
ACCES & DESSERTE /
Bus : Ligne 5 au pied de l'immeuble
Desserte routière : A64 à 4 minutes
Pour visiter, contactez-nous au 05 61 23 56 56.
Toutes nos offres sur : https://www.bnppre.fr/toulouse
Disponibilité: 31/12/2025
Honoraires: 6% HT du prix HT/HD. à la signature de l'acte
| Fiche technique du bien | |
|---|---|
| Bus | Ligne 5 au pied de l'immeuble |
| Desserte routière | A64 à 4 minutes |
| Aéroport | Toulouse Blagnac à 15 minutes |
| Accès Pers. Mobilité Réduite | Oui |
| Etat de l'immeuble | Neuf |
| Parking(s) | 4 par cellule |
| Immeuble copropriété | Oui |
| Fluides en attente | Oui |
| Charpente | Métallique |
| Couverture | Bac acier isolé |
| Murs | Bardage double peau |
| Sols du bâtiment | Béton |
| Charge au sol RDC | 3,50 tonne(s)/m² |
| Hauteur libre | 6,00 mètre(s) |
| Hauteur sous porte plain-pied | 4,50 mètre(s) x 3,5 mètres de large |
| Porte(s) d'accès plain-pied | 1 par lot |
| Accessibilité type véhicules | Moyens porteurs |
| Puissance électrique | Tarif Bleu 36,00 |
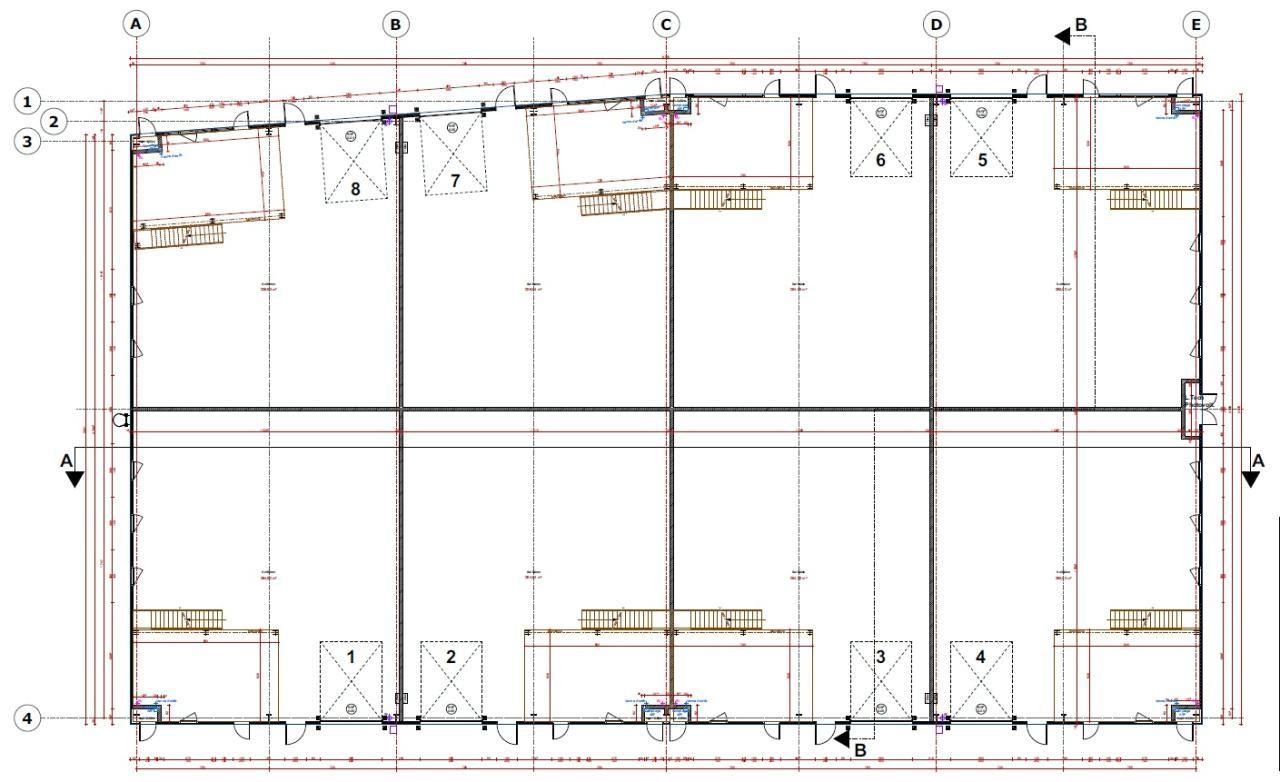
Surfaces divisibles : 16
| Surface | PrixHD/HH/m² | Étage / Batiment | Infos complémentaires |
| 265 m² | N.C | RDC | OVACT2427424/1 |
| 265 m² | N.C | RDC | OVACT2427424/2 |
| 255 m² | N.C | RDC | OVACT2427424/3 |
| 263 m² | N.C | RDC | OVACT2427424/4 |
| 263 m² | N.C | RDC | OVACT2427424/5 |
| 255 m² | N.C | RDC | OVACT2427424/6 |
| 257 m² | N.C | RDC | OVACT2427424/7 |
| 239 m² | N.C | RDC | OVACT2427424/8 |
| 44 m² | N.C | R+1 | OVACT2427424/8 |
| 41 m² | N.C | R+1 | OVACT2427424/7 |
| 41 m² | N.C | R+1 | OVACT2427424/6 |
| 43 m² | N.C | R+1 | OVACT2427424/5 |
| 43 m² | N.C | R+1 | OVACT2427424/4 |
| 41 m² | N.C | R+1 | OVACT2427424/3 |
| 43 m² | N.C | R+1 | OVACT2427424/2 |
| 43 m² | N.C | R+1 | OVACT2427424/1 |
