Conseil en immobilier d'entreprise à Toulouse, le cabinet ADE Immo Pro propose des locaux professionnels (bureaux, locaux commerciaux, fonds de commerces, terrains, commerces, biens à l'investissem ...
En savoir plus

603 m²
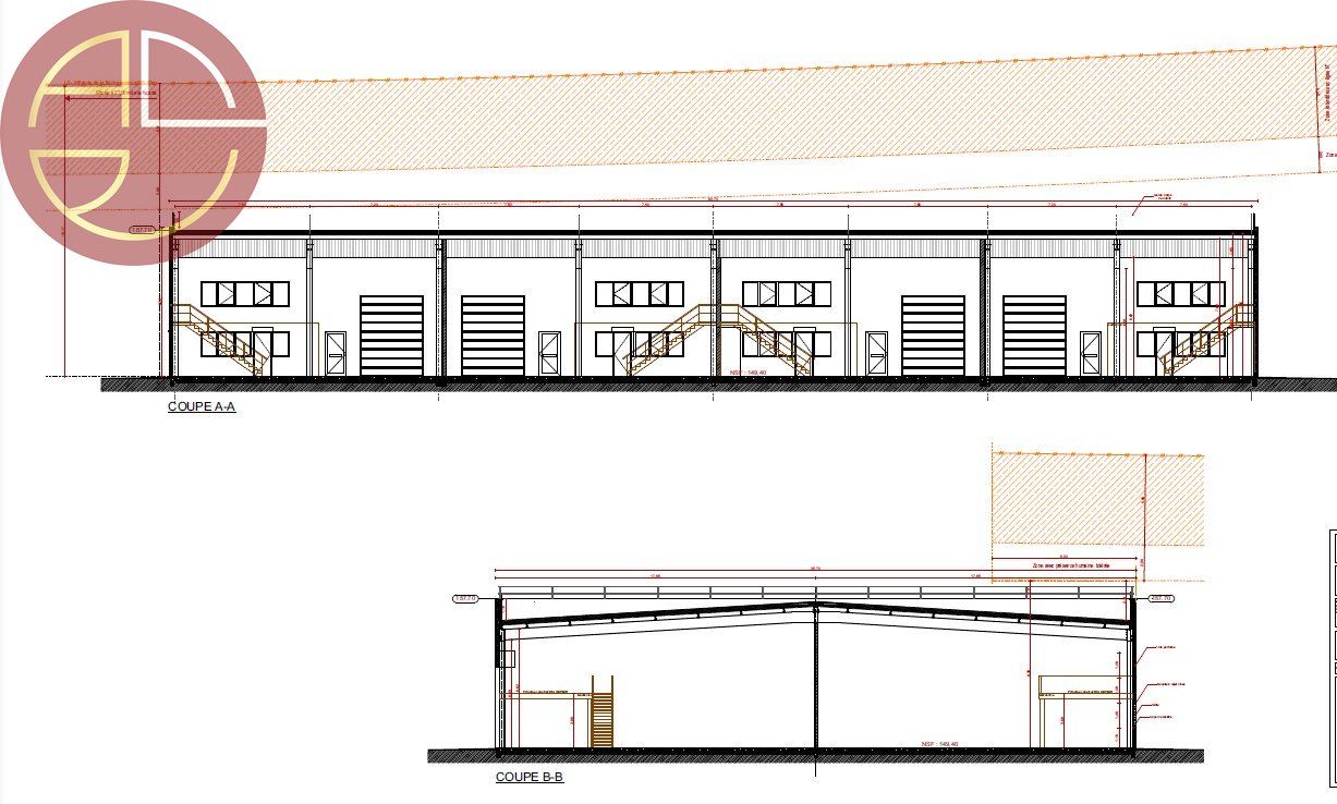
Activité/Entrepôt à vendre - 603 m²
Portet-sur-Garonne (31120)
Dernière mise à jour : Il y a 5 mois
Entrepôt
PORTET-SUR-GARONNE, SUD-OUEST TOULOUSAIN, ENTREPOT NEUF A VENDRE, 603.55 m2. Proche de la rocade et des transport en commun, cellule de local d'activité à vendre dans un ensemble de locaux neuf et sécurisé. La hauteur sous plafond est de 7-8m. Ce local dispose d'une porte sectionnelle, rochelle d'une surface de 83.72 m2 utilisables tant en bureau qu'en stockage et d'une grille de désenfumage. Le bâtiment est neuf et bien isolé (bardage double peau). 8 places de parking privatives. Livraison fin 2025 Vous trouverez d'autres annonces similaires disponibles sur notre site adeimmopro.fr.
PORTET-SUR-GARONNE, SUD-OUEST TOULOUSAIN, ENTREPOT NEUF A VENDRE, 603.55 m2. Proche de la rocade et des transport en commun, cellule de local d'activité à vendre dans un ensemble de locaux neuf et sécurisé. La hauteur sous plafond est de 7-8m. Ce local dispose d'une porte sectionnelle, rochelle d'une surface de 83.72 m2 utilisables tant en bureau qu'en stockage et d'une grille de désenfumage. Le bâtiment est neuf et bien isolé (bardage double peau). 8 places de parking privatives. Livraison fin 2025 Vous trouverez d'autres annonces similaires disponibles sur notre site adeimmopro.fr.
Voir plus
Afficher les consommations énergétiques
Favoris
Exporter
Appeler
Contacter
Signaler cette annonce
