Leader mondial des services dédiés à l'immobilier d'entreprise, Cushman & Wakefield accompagne ses clients dans la transformation de leurs modes de travail, de consommation et de vie. Nos 43 000 co ...
En savoir plus

1 225 m²
Activité/Entrepôt à vendre - 1225 m²
Furdenheim (67117)
Dernière mise à jour : Hier
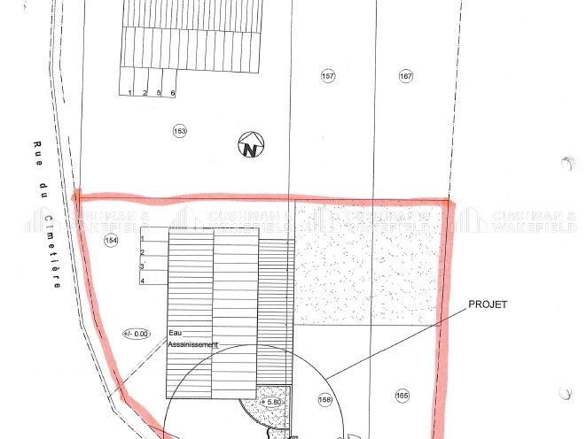
Ensemble industriel sur 28 ares de terrain composé de 2 btiments, bénéficiant de 2 portails Cet ensemble industriel est situé sur la commune Furdenheim, à proximité de Strasbourg, bénéficie d''une localisation stratégique pour les entreprises. Accessible par l'autoroute A351 et proche de la D1004, elle permet une connexion rapide à l''A35 et aux grands axes routiers, facilitant l'accès aux villes voisines comme Obernai et Molsheim. Les dessertes en transport en commun incluent des lignes de bus interurbaines, offrant une alternative aux déplacements en voiture pour les salariés. La zone accueille diverses entreprises industrielles, artisanales et de services, offrant un environnement dynamique avec des infrastructures modernes adaptées aux besoins des professionnels. Cet ensemble industriel composé de 2 btiment d'activité, est construit sur 30 ares de terrainet bénéficie de 2 portails Le département Activité & Logistique de Cushman & Wakefield Strasbourg est à votre entière disposition pour visiter ces locaux d'activité à vendre à Furdenheim. N'hésitez plus, contactez-nous ! DEPOT - 600 m² . Ossature et charpente métalliques . Murs : bardage double peau . Sol béton quartzé . Toiture : bac acier isolé . Hauteur : 7 m, 6 m sous crochet . Accès par 2 portes sectionnelles 4 x 4.5 m . 2 Ponts 2 tonnes et 1 pont 6 tonnes ATELIER - 475 m² . Ossature et charpente métalliques . Murs : bardage double peau, isolation intérieure . Sol béton . Toiture : fibro ciment . Hauteur : 4 à 5 m . 1 Porte sectionnelle Parkings extérieurs sur site BUREAUX . Sol carrelage . Chauffage + climatisation . Sanitaires Cloisonnement : 3 bureaux au RdC, 3 bureaux en étage Zone accessible par l'autoroute A351 puis RN4 direction Saverne, sortie Furdenheim. Ligne de bus 230 du réseau Fluo Grand Est 67, reliant Wasselonne à Strasbourg
Voir plus
Afficher les consommations énergétiques
Localisation et transport aux alentours
Favoris
Exporter
Appeler
Contacter
Signaler cette annonce

