Nous sommes Immprove, une grande équipe de plus de 200 experts en immobilier d’entreprise, implantés localement avec plus de 20 agences sur tout le territoire.Depuis 2009, notre proximité, notre ét ...
En savoir plus

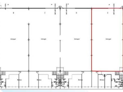
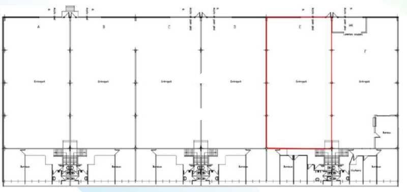
339 m²
HT HC
Location activité/entrepôt - 339 m²
Aulnay-sous-Bois (93600)
Dernière mise à jour : Il y a 2 jours
IMMPROVE vous propose une opportunité exceptionnelle à Aulnay-sous-Bois : locaux d'activités de 339 m² non divisibles à louer. Idéalement situés, ces espaces offrent une grande visibilité et sont adaptés à diverses activités professionnelles. Ne manquez pas cette occasion unique pour votre entreprise.
Impôt Foncier : 13,69 €/m²/an HT
Régime Fiscal : T.V.A. (20%)
Dépôt de garantie : 3 mois de loyer HT HC
Honoraires : 15% HT du loyer annuel HT HC à la charge du preneur
Prestations :
Accessibilité:
Bus Bus : 350, 427, 627, 45
RER RER B Le Blanc mesnil
Autoroute A1 et A3 (Accès immédiat)
Aéroport Aéroport de Roissy - Charles de Gaulle à 13km
Les informations sur les risques auxquels ce bien est exposé sont disponibles sur le site Géorisques : www.georisques.gouv.fr
| Étage | Type | Surfaces | Dispo | Loyer | Charges | Type de bailRév. annuelle |
|---|---|---|---|---|---|---|
| RDC | Activités | 339 | Immédiate | 100 m²/an HT HC | 42,2 m²/an HT | Bail Dérogatoireselon l'indice des loyers des activités tertiaires (ILAT) |
Impôt Foncier : 13,69 €/m²/an HT
Régime Fiscal : T.V.A. (20%)
Dépôt de garantie : 3 mois de loyer HT HC
Honoraires : 15% HT du loyer annuel HT HC à la charge du preneur
Prestations :
- Site clos et sécurisé
- Accès véhicules légers et poids lourds
- Aire de manoeuvre et de chargement
- Gardien
- Télésurveillance
- RIE
- Dallage: 5 t/m²
- Hauteur libre : 6,60m à 7,32m
- Structure: béton
- Dimension des portes: H 3,37 m x l 3 m
- Accès de plain-pied
- Détection incendie et RIA
- Chauffage: Aérothermes à eau chaude
- Sanitaires
- Surface RDC : 339 m²
- Surface terrain : 0
Accessibilité:
Bus Bus : 350, 427, 627, 45
RER RER B Le Blanc mesnil
Autoroute A1 et A3 (Accès immédiat)
Aéroport Aéroport de Roissy - Charles de Gaulle à 13km
Les informations sur les risques auxquels ce bien est exposé sont disponibles sur le site Géorisques : www.georisques.gouv.fr
Voir plus
Afficher les consommations énergétiques
Favoris
Exporter
Appeler
Contacter
Signaler cette annonce










