Conseil en immobilier d'entreprise, Cushman & Wakefield est un acteur incontournable au rayonnement international. Cushman & Wakefield offre des solutions dans toutes les étapes que comporte un p ...
En savoir plus



287 m²
HT HC
ZI GARONOR - BAT 17 - Location activité/entrepôt - 287 m²
Aulnay-sous-Bois (93600)
Dernière mise à jour : Hier
Entrepôt Logistique de Classe A à Louer -
Aulnay-sous-Bois, Île-de-France
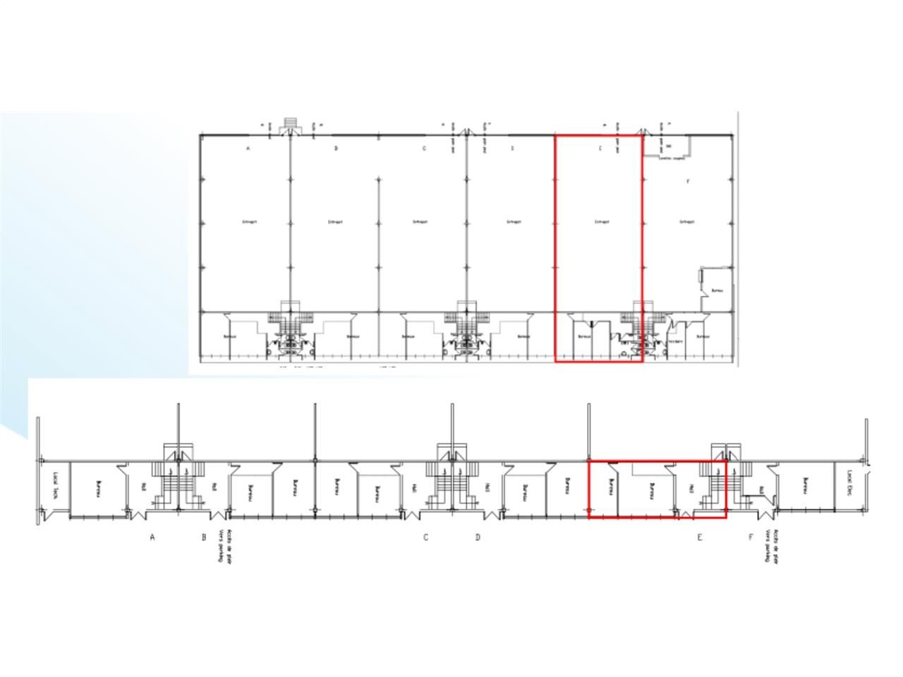
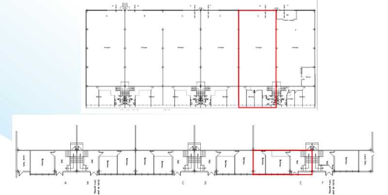
Immeuble ZI GARONOR - BAT 17
Cushman & Wakefield vous propose à la vente ou à la location un
entrepôt logistique de classe A situé dans la ZI Garonor, à Aulnay-sous_Bois.
Cet espace offre une surface totale de 669 m², divisible à partir de 330
m², avec une hauteur libre de 6,60m à 7,32m, idéal pour vos besoins
de stockage. L'entrepôt est équipé de détection incendie et RIA,
garantissant une logistique sécurisée et efficace.
La disponibilité est prévue après accord, avec un bâtiment en état
d'usage prêt à accueillir vos activités dès la fin des travaux. Les permis
de construire (PC) et les autorisations ICPE ont déjà été obtenus,
assurant ainsi une conformité réglementaire et une mise en service
rapide.
Situé sur la Route de Villey Saint-Etienne, cet entrepôt bénéficie
d'une localisation stratégique dans l'Île-de-France, offrant une
excellente accessibilité aux grands axes routiers et facilitant ainsi le
transport de vos marchandises. La ZI Garonor est reconnue pour son
dynamisme et son environnement propice aux activités logistiques et
industrielles.
Pour plus d'informations ou pour organiser une visite, n'hésitez pas à
nous contacter dès maintenant.
Impôt Foncier : 13,69 €/HT/m²/an
Régime Fiscal : T.V.A.
Dépôt de garantie : 3 mois de loyer HT/HC
Paiement Loyer : Trimestriel
Honoraires : à la charge du preneur
Information sur le Bail :
TBU (2024) : 2,30 euros HTVA/m²/an
Prestations :
Accessibilité:
Accès routier A1 & A3 - accès immédiat
Bus 45, 350, 427, 627 sur site
SNCF Gare du Blanc Mesnil à 7km
Aéroport Paris CDG à 13 km
Les informations sur les risques auxquels ce bien est exposé sont disponibles sur le site Géorisques : www.georisques.gouv.fr
Aulnay-sous-Bois, Île-de-France
Immeuble ZI GARONOR - BAT 17
Cushman & Wakefield vous propose à la vente ou à la location un
entrepôt logistique de classe A situé dans la ZI Garonor, à Aulnay-sous_Bois.
Cet espace offre une surface totale de 669 m², divisible à partir de 330
m², avec une hauteur libre de 6,60m à 7,32m, idéal pour vos besoins
de stockage. L'entrepôt est équipé de détection incendie et RIA,
garantissant une logistique sécurisée et efficace.
La disponibilité est prévue après accord, avec un bâtiment en état
d'usage prêt à accueillir vos activités dès la fin des travaux. Les permis
de construire (PC) et les autorisations ICPE ont déjà été obtenus,
assurant ainsi une conformité réglementaire et une mise en service
rapide.
Situé sur la Route de Villey Saint-Etienne, cet entrepôt bénéficie
d'une localisation stratégique dans l'Île-de-France, offrant une
excellente accessibilité aux grands axes routiers et facilitant ainsi le
transport de vos marchandises. La ZI Garonor est reconnue pour son
dynamisme et son environnement propice aux activités logistiques et
industrielles.
Pour plus d'informations ou pour organiser une visite, n'hésitez pas à
nous contacter dès maintenant.
| Étage | Type | Surfaces | Dispo | Loyer | Charges | Type de bailRév. annuelle |
|---|---|---|---|---|---|---|
| RdC | Entrepôts | 287 | 100 HT/HC/m²/an | 42,2 HT/m²/an | DérogatoireSur l'indice ILAT |
Impôt Foncier : 13,69 €/HT/m²/an
Régime Fiscal : T.V.A.
Dépôt de garantie : 3 mois de loyer HT/HC
Paiement Loyer : Trimestriel
Honoraires : à la charge du preneur
Information sur le Bail :
TBU (2024) : 2,30 euros HTVA/m²/an
Prestations :
- Entrepôt de classe A
- Au sein d'un site clos et sécurisé
- PC sécurité incendie GARONOR 24h/24 7j/7
- Property Management sur zone
- Brasserie et hôtels sur site
- Services administratifs sur place : douanes, médecine du travail, etc.
- Dallage: 5 t/m²
- Hauteur libre : 6,60m à 7,32m
- Structure: béton
- Dimension des portes : H 3,37 m x l 3 m
- Accès de plain-pied
- Détection incendie et RIA
- Chauffage: Aérothermes à eau chaude
- Locaux sociaux : sanitaires
- Immeuble indépendant
- Surface RDC : 287 m²
Accessibilité:
Accès routier A1 & A3 - accès immédiat
Bus 45, 350, 427, 627 sur site
SNCF Gare du Blanc Mesnil à 7km
Aéroport Paris CDG à 13 km
Les informations sur les risques auxquels ce bien est exposé sont disponibles sur le site Géorisques : www.georisques.gouv.fr
Voir plus
Afficher les consommations énergétiques
Localisation et transport aux alentours
Favoris
Exporter
Appeler
Contacter
Signaler cette annonce










