Conseil en immobilier d'entreprise, Cushman & Wakefield est un acteur incontournable au rayonnement international. Cushman & Wakefield offre des solutions dans toutes les étapes que comporte un p ...
En savoir plus



958 m² divisible dès 459 m²
HT HC
Location activité/entrepôt - 958 m²
Villebon-sur-Yvette (91140)
Dernière mise à jour : Il y a 7 mois
MILEWAYPARC - KERRIA
À Villebon-sur-Yvette, au coeur de la zone dynamique de Courtaboeuf, nous vous proposons à la location des bureaux et locaux d'activité d'une surface totale de 958 m², divisibles à partir de 459 m².
Ces espaces polyvalents s'adaptent à tous types de projets, que ce soit pour des bureaux, des activités commerciales ou industrielles.
L'immeuble offre des prestations modernes et une grande flexibilité d'aménagement, avec des équipements tels que le chauffage central, des infrastructures techniques de qualité et une accessibilité optimale.
Situé à proximité des grands axes routiers, de l'A86 et des transports en commun, cet emplacement facilite les déplacements de vos collaborateurs et clients. Idéal pour les entreprises recherchant des locaux fonctionnels et bien desservis.
Contactez-nous pour obtenir plus d'informations et organiser une visite.
Impôt Foncier : 14,5 €//m²/an
Régime Fiscal : T.V.A.
Honoraires : 15 % HT du loyer annuel HT/HC à la charge du preneur.
Taxe Bureau : 11,87 €/m²/an
Information sur le Bail :
Parking inclus dans le loyer
Prestations :
Accessibilité:
Aéroport Orly à 15 min
Accès routier A10, N118, N104 (N20, A6)
Bus 1 toutes les 10 min
RER Orsay-Ville (RER B) à 5 min
RER Massy-Palaiseau (RER B - C)
Les informations sur les risques auxquels ce bien est exposé sont disponibles sur le site Géorisques : www.georisques.gouv.fr
À Villebon-sur-Yvette, au coeur de la zone dynamique de Courtaboeuf, nous vous proposons à la location des bureaux et locaux d'activité d'une surface totale de 958 m², divisibles à partir de 459 m².
Ces espaces polyvalents s'adaptent à tous types de projets, que ce soit pour des bureaux, des activités commerciales ou industrielles.
L'immeuble offre des prestations modernes et une grande flexibilité d'aménagement, avec des équipements tels que le chauffage central, des infrastructures techniques de qualité et une accessibilité optimale.
Situé à proximité des grands axes routiers, de l'A86 et des transports en commun, cet emplacement facilite les déplacements de vos collaborateurs et clients. Idéal pour les entreprises recherchant des locaux fonctionnels et bien desservis.
Contactez-nous pour obtenir plus d'informations et organiser une visite.
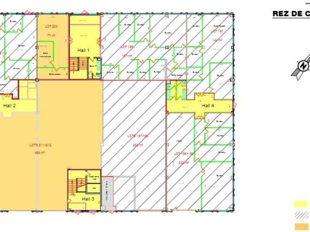
| Étage | Type | Surfaces | Dispo | Loyer | Charges | Type de bailRév. annuelle |
|---|---|---|---|---|---|---|
| RdC | Activités | 422 | Sur l'indice ILAT | |||
| RdC | Activités | 77 | Sur l'indice ILAT | |||
| Total Cellule Lot 200-211-212 | Activités | 499 | Immédiate | 120 HT/HC/m²/an | 3-6-9 ansSur l'indice ILAT | |
| 1 | Bureaux | 159 | Sur l'indice ILAT | |||
| 1 | Bureaux | 127 | Sur l'indice ILAT | |||
| 1 | Bureaux | 117 | Sur l'indice ILAT | |||
| 1 | Bureaux | 56 | Sur l'indice ILAT | |||
| 183 | Bureaux | 459 | Immédiate | 140 HT/HC/m²/an | 3-6-9 ansSur l'indice ILAT |
Impôt Foncier : 14,5 €//m²/an
Régime Fiscal : T.V.A.
Honoraires : 15 % HT du loyer annuel HT/HC à la charge du preneur.
Taxe Bureau : 11,87 €/m²/an
Information sur le Bail :
Parking inclus dans le loyer
Prestations :
- Situé le long de l'A10 et de la N118
- Le Parc Silic de Villebon-Courtaboeuf bénéficie d'une visibilité remarquable
- Paysager avec des parkings extérieurs en périphérie des immeubles
- Entièrement clos, et doté de bornes escamotables de sécurité avec vidéo surveillance 24h/24.
- Site clôturé et sécurisé avec PC sécurité et vidéo surveillance
- Gestions technique globale du site
- Fibre optique
- Nombreux parkings extérieurs
- Surface RDC : 499 m²
Accessibilité:
Aéroport Orly à 15 min
Accès routier A10, N118, N104 (N20, A6)
Bus 1 toutes les 10 min
RER Orsay-Ville (RER B) à 5 min
RER Massy-Palaiseau (RER B - C)
Les informations sur les risques auxquels ce bien est exposé sont disponibles sur le site Géorisques : www.georisques.gouv.fr
Voir plus
Afficher les consommations énergétiques
Localisation et transport aux alentours
Favoris
Exporter
Appeler
Contacter
Signaler cette annonce










