MALSH Realty accompagne les entreprises dans leurs projets immobiliers, qu’il s’agisse de locaux d’activités, de bureaux, de commerces, d’entrepôts ou de terrains. L’agence intervient aussi bien au ...
En savoir plus

915 m² divisible dès 44 m²
HT HC
Location activité/entrepôt - 915 m²
Guéreins (01090)
Dernière mise à jour : Il y a 3 jours
Lots d'Activités neufs et Lots de Bureaux neufs à GUEREINS - A LOUER - Locaux d'activités à partir de 55 m² et Bureaux à partir de 44 m²
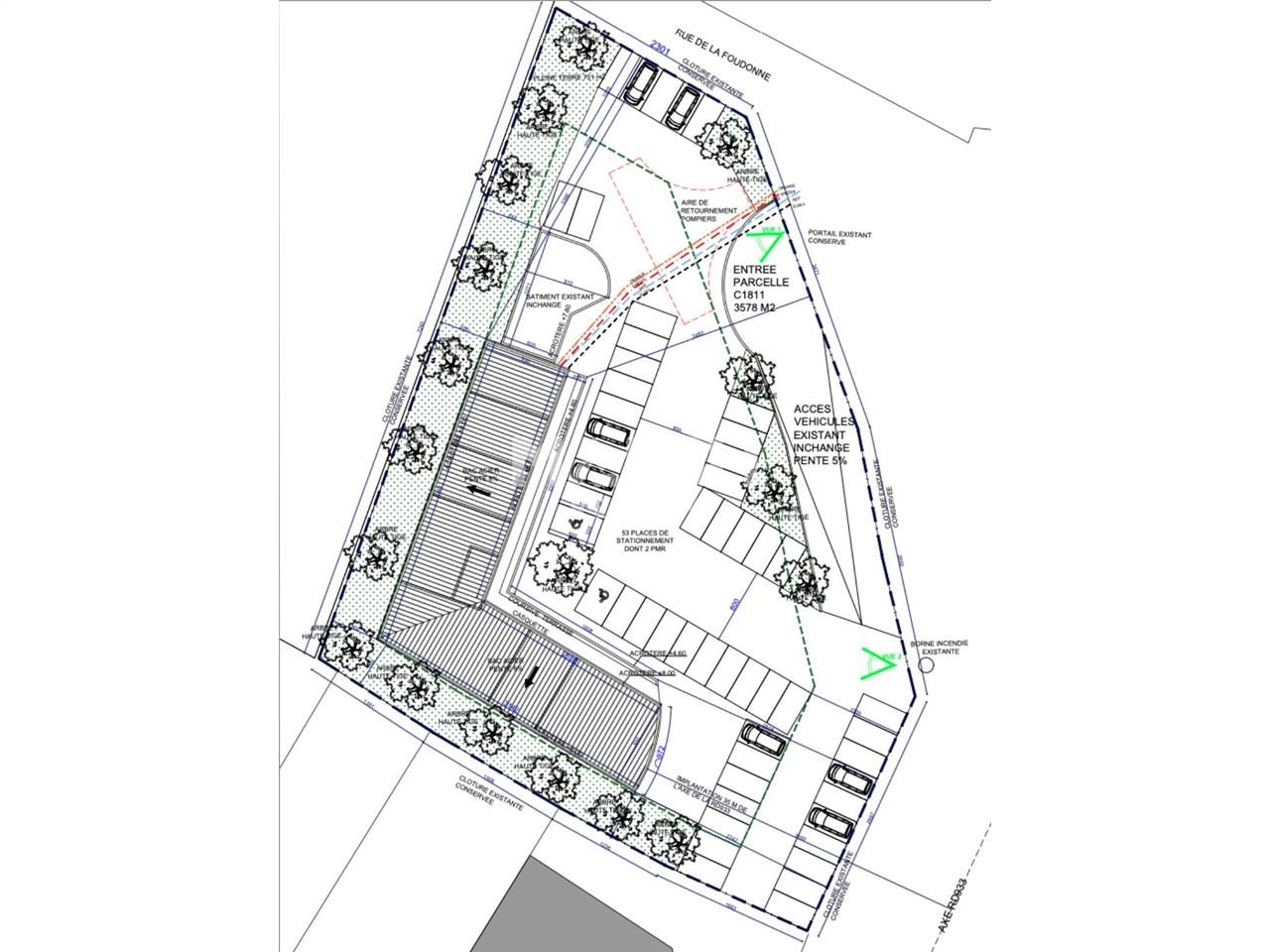
Au sein d'un parc d'activités en construction, nous vous proposons à la location, 7 lots d'activités ou de commerces en RDC à partir de 55 m² et 7 lots de bureaux en R+1 à partir de 44 m². Ces locaux neufs disposent d'une hauteur sous plafond de 3,80 m au RDC et de bureaux clés en main à l'étage (parquet au sol, climatisation, cuisine, sanitaires...). Chaque lot est indépendant mais possibilité de regrouper les lots d'activités et les lots de bureaux pour s'adapter à vos besoins. Le site bénéficie de 72 places de stationnement libres.
Livraison au 1er trimestre 2026 !
Location Lots d'Activités neufs et Lots de Bureaux neufs - Guereins (01090) - Locaux d'activités à partir de 55 m² et Bureaux à partir de 44 m²
Régime Fiscal : T.V.A. (20%)
Dépôt de garantie : 3 mois de loyer HT/HC
Honoraires : 20 % HT du loyer annuel HT/HC à la charge du preneur, payables à la signature du bail
Prestations :
Accessibilité:
Autoroute A proximité immédiate de l'autoroute A6 (sortie n° 30 Belleville-sur-Saône à 5 min)
Les informations sur les risques auxquels ce bien est exposé sont disponibles sur le site Géorisques : www.georisques.gouv.fr
Au sein d'un parc d'activités en construction, nous vous proposons à la location, 7 lots d'activités ou de commerces en RDC à partir de 55 m² et 7 lots de bureaux en R+1 à partir de 44 m². Ces locaux neufs disposent d'une hauteur sous plafond de 3,80 m au RDC et de bureaux clés en main à l'étage (parquet au sol, climatisation, cuisine, sanitaires...). Chaque lot est indépendant mais possibilité de regrouper les lots d'activités et les lots de bureaux pour s'adapter à vos besoins. Le site bénéficie de 72 places de stationnement libres.
Livraison au 1er trimestre 2026 !
Location Lots d'Activités neufs et Lots de Bureaux neufs - Guereins (01090) - Locaux d'activités à partir de 55 m² et Bureaux à partir de 44 m²
| Étage | Type | Surfaces | Dispo | Loyer | Charges | Type de bailRév. annuelle |
|---|---|---|---|---|---|---|
| R+1 | Bureaux | 95,78 | 1er trimestre 2026 | 144 HT/HC/m²/an | commercial 3-6-9 ansILAT Indice des Loyers des Activités Tertiaires | |
| R+1 | Bureaux | 91,11 | 1er trimestre 2026 | 144 HT/HC/m²/an | commercial 3-6-9 ansILAT Indice des Loyers des Activités Tertiaires | |
| R+1 | Bureaux | 55,51 | 1er trimestre 2026 | 144 HT/HC/m²/an | commercial 3-6-9 ansILAT Indice des Loyers des Activités Tertiaires | |
| R+1 | Bureaux | 44,47 | 1er trimestre 2026 | 144 HT/HC/m²/an | commercial 3-6-9 ansILAT Indice des Loyers des Activités Tertiaires | |
| R+1 | Bureaux | 43,88 | 1er trimestre 2026 | 144 HT/HC/m²/an | commercial 3-6-9 ansILAT Indice des Loyers des Activités Tertiaires | |
| R+1 | Bureaux | 43,85 | 1er trimestre 2026 | 144 HT/HC/m²/an | commercial 3-6-9 ansILAT Indice des Loyers des Activités Tertiaires | |
| R+1 | Bureaux | 43,84 | 1er trimestre 2026 | 144 HT/HC/m²/an | commercial 3-6-9 ansILAT Indice des Loyers des Activités Tertiaires | |
| RDC | Activités | 110,07 | 1er trimestre 2026 | 156 HT/HC/m²/an | commercial 3-6-9 ansILAT Indice des Loyers des Activités Tertiaires | |
| RDC | Activités | 102,39 | 1er trimestre 2026 | 156 HT/HC/m²/an | commercial 3-6-9 ansILAT Indice des Loyers des Activités Tertiaires | |
| RDC | Activités | 61,92 | 1er trimestre 2026 | 156 HT/HC/m²/an | commercial 3-6-9 ansILAT Indice des Loyers des Activités Tertiaires | |
| RDC | Activités | 56,13 | 1er trimestre 2026 | 156 HT/HC/m²/an | commercial 3-6-9 ansILAT Indice des Loyers des Activités Tertiaires | |
| RDC | Activités | 55,37 | 1er trimestre 2026 | 156 HT/HC/m²/an | commercial 3-6-9 ansILAT Indice des Loyers des Activités Tertiaires | |
| RDC | Activités | 55,36 | 1er trimestre 2026 | 156 HT/HC/m²/an | commercial 3-6-9 ansILAT Indice des Loyers des Activités Tertiaires | |
| RDC | Activités | 55,35 | 1er trimestre 2026 | 156 HT/HC/m²/an | commercial 3-6-9 ansILAT Indice des Loyers des Activités Tertiaires |
Régime Fiscal : T.V.A. (20%)
Dépôt de garantie : 3 mois de loyer HT/HC
Honoraires : 20 % HT du loyer annuel HT/HC à la charge du preneur, payables à la signature du bail
Prestations :
- 72 places de stationnement libres
- Charpente métallique
- Structure : bardage double peau
- Couverture : bac acier
- Au RDC :
- Activités ou commerces selon le dossier de candidature
- Hauteur : 3,80 mètres
- A l'étage :
- Bureaux clés en main (parquet au sol, climatisation, cuisine, sanitaire...)
- Surface terrain : 3570
Accessibilité:
Autoroute A proximité immédiate de l'autoroute A6 (sortie n° 30 Belleville-sur-Saône à 5 min)
Les informations sur les risques auxquels ce bien est exposé sont disponibles sur le site Géorisques : www.georisques.gouv.fr
Voir plus
Afficher les consommations énergétiques
Localisation et transport aux alentours
Favoris
Exporter
Appeler
Contacter
Signaler cette annonce
