CBRE Impact Dijon est un cabinet de conseil en immobilier d'entreprise membre indépendant du réseau CBRE. CBRE Impact Dijon commercialise des offres à l'achat à la location pour les types d'actifs ...
En savoir plus

1 799 m²
HT HC
Location local commercial - 1799 m²
Marsannay-la-Côte (21160)
Dernière mise à jour : Il y a 2 jours
Zone les portes du Sud, Marsannay la Côte, plusieurs cellules commerciales sur un axe fréquenté.
3 mn sortie A311 axe Paris/Lyon
8 lots disponibles de 284 à 551 m² environ.
Les informations sur les risques auxquels ce bien est exposé sont disponibles sur le site Géorisques : www.georisques.gouv.fr
Accessibilité :
Rocade Sud, A311
Disponibilité : Immédiate
Loyer annuel : 161910 €
Charges annuelles : 21120.26 €
Type de bail : Commercial
Dépôt de garantie : 3 mois
Honoraires à la charge du preneur : 15 % HT
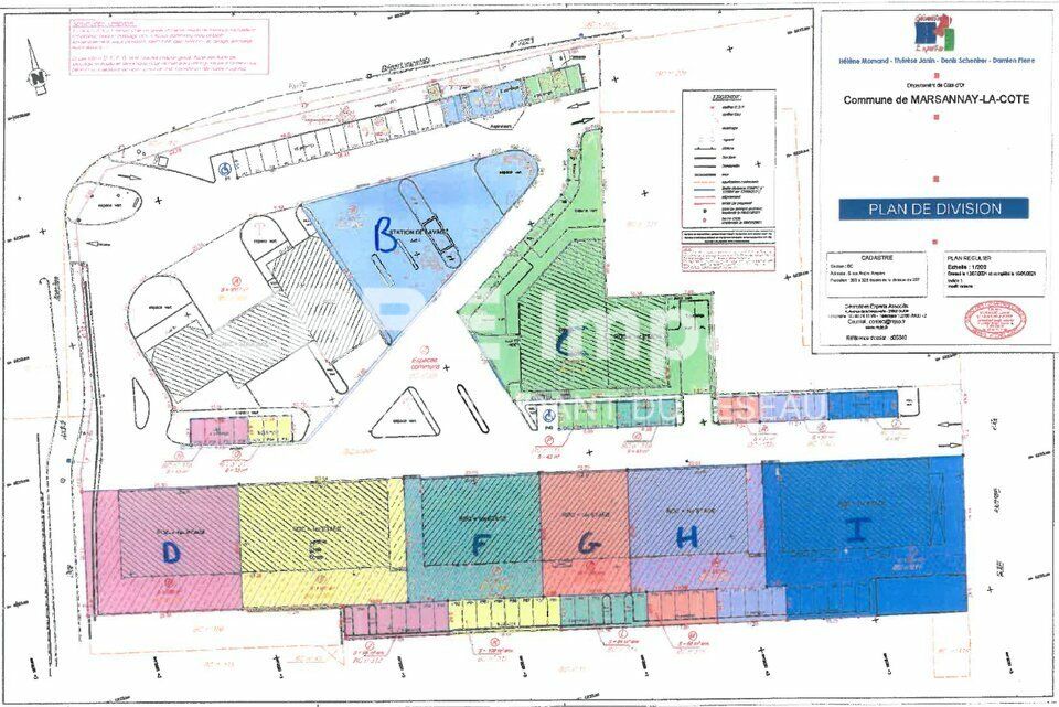
superficie des locaux : . lot 5 (e) : 422 m² environ + 11 parkings . lot 4 (f) : 352 m² environ + 9 parkings . lot 3 (g) : 284 m² environ + 8 parkings . lot 2 (h) : 354 m² environ + 10 parkings . lot 1 (i) : 387 m² environ + 11 parkings
3 mn sortie A311 axe Paris/Lyon
8 lots disponibles de 284 à 551 m² environ.
3 mn sortie A311 axe Paris/Lyon
8 lots disponibles de 284 à 551 m² environ.
équipé de portes sectionnelles
dalle béton
Stationnement dédié
Au sein d'un ensemble immobilier composé de plusieurs lots.
Situés sur un axe très fréquenté, ces biens sont accessibles en voiture depuis la Rocade Sud, le centre-ville de Dijon et l'A311. Le réseau de bus DIVIA permet également de se rendre dans cette zone.
De grandes enseignes (Lapeyre, But, ...), des concessionnaires automobiles, des restaurants et des supermarchés font de cette zone une zone commerciale très fréquentée.
Les informations sur les risques auxquels ce bien est exposé sont disponibles sur le site Géorisques : www.georisques.gouv.fr
Accessibilité :
Rocade Sud, A311
Disponibilité : Immédiate
Loyer annuel : 161910 €
Charges annuelles : 21120.26 €
Type de bail : Commercial
Dépôt de garantie : 3 mois
Honoraires à la charge du preneur : 15 % HT
superficie des locaux : . lot 5 (e) : 422 m² environ + 11 parkings . lot 4 (f) : 352 m² environ + 9 parkings . lot 3 (g) : 284 m² environ + 8 parkings . lot 2 (h) : 354 m² environ + 10 parkings . lot 1 (i) : 387 m² environ + 11 parkings
| lot | surface | nombre de parking | loyer annuel ht/hc | charges annuelles ht | taxe foncière ht |
| 5 (e) | 422 m² env. | 11 | 37.980 € | 2.507,40 € | 4.090,80 € |
| 4 (f) | 352 m² env. | 9 | 31.680 € | 2.077,60 € | 3.389,50 € |
| 3 (g) | 284 m² env. | 8 | 25.560 € | 1.683,50 € | 2.746,70 € |
| 2 (h) | 354 m² env. | 10 | 31.860 € | 2.131,30 € | 3.477,20 € |
| 1 (i) | 387 m² env. | 11 | 34.830 € | 2.322,30 € | 3.788,90 € |
Voir plus
Afficher les consommations énergétiques
Localisation et transport aux alentours
Favoris
Exporter
Appeler
Contacter
Signaler cette annonce




