BNP Paribas Real Estate, N°1 de la transaction en immobilier d''entreprise en France, vous propose un accompagnement de qualité pour l''acquisition, la vente ou la location d''un bien immobilier.Vo ...
En savoir plus

18 857 m²
HT HC
Location activité/entrepôt - 18857 m²
Tergnier (02700)
Dernière mise à jour : Aujourd'hui
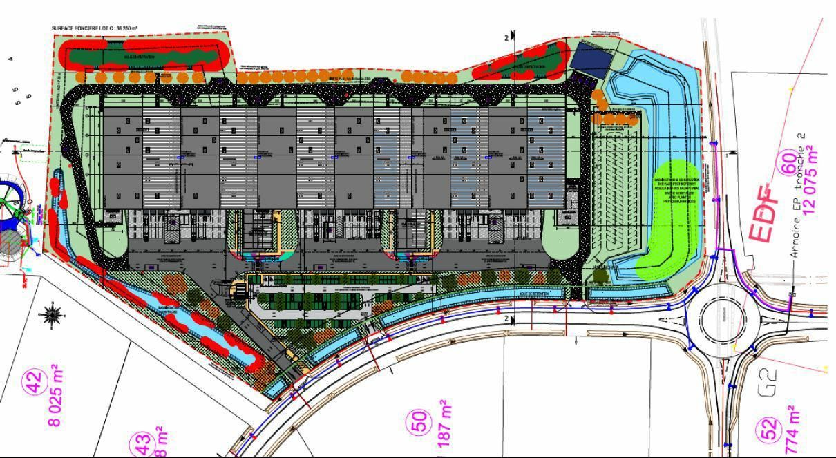
CHAUNY-TERGNIER (02) PC/ICPE obtenues et purgées depuis juillet 2023 Nous vous proposons un développement logistique d'une surface totale de 18 857 m² environ sur un terrain de 66 250 m². Certification BREEAM Very Good. ICPE : 1510.2b/1185-2a(DC)/2925-1(D)
BNP PARIBAS REAL ESTATE vous propose, à la location, un développement logistique d'une surface totale de 18 857 m² sur un terrain de 66 250 m². Le btiment est certifié BREEAM Very Good et est situé à Chauny-Tergnier (02), à proximité des autoroutes A26 et A29.
Disponibilité : 12 mois après accord
Caractéristiques techniques :
Hauteur libre : 11 mètres
Porte d'accès à quai : 1 (toutes les 2 cellules)
Charges au sol RDC : 5 tonnes/ m² Local de charge
Parking : 103 places VL (EVERGREEN y compris PMR) + 2 places PL
Certifications : BREEAM Very Good
ICPE E : 1510 , -2b
ICPE E : 1185-2a, 2925-1
Accessibilité
Accès routiers : A26/A29/D1/D930/D1044
Gare : Gare de Tergnier
Pour toute information complémentaire, contactez-nous.
Honoraires: Nous consulter. à la signature du bail
| Fiche technique du bien | |
|---|---|
| TER | Gare de Tergnier |
| Desserte routière | A26/A29/D1/D930/D1044 |
| Autorisation d'exploiter | 1185-2a,2925-1 |
| Autorisation d'exploiter | 1510 -2b |
| Etat des locaux | Neuf |
| Parking(s) | 103 Places VL EVERGREEN (y compris PMR) |
| Parking(s) | 2 Places PL |
| Source chauffage | Gaz |
| Eclairage Bureaux | LED |
| Autre élément bureau | Hauteur libre de 2,50 m |
| Charge au sol RDC | 5,00 tonne(s)/m² |
| Hauteur libre | 11,00 mètre(s) |
| Porte(s) d'accès plain-pied | 1 toutes les 2 cellules |
| Eclairage intérieur | LED |
| Réseau Incendie Armé | Oui |
Afficher les consommations énergétiques
Favoris
Exporter
Appeler
Contacter
Signaler cette annonce
