A l’appui d’un réseau leader à l’international, I&L Solutions est une équipe de plus de 70 professionnels spécialisés en immobilier Logistique et Industriel au service des investisseurs, des propri ...
En savoir plus



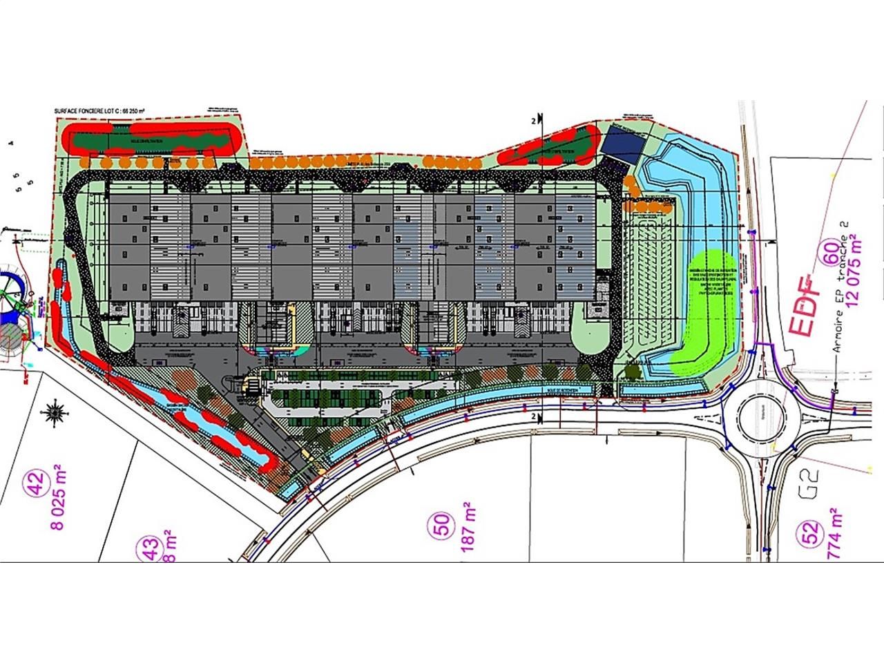
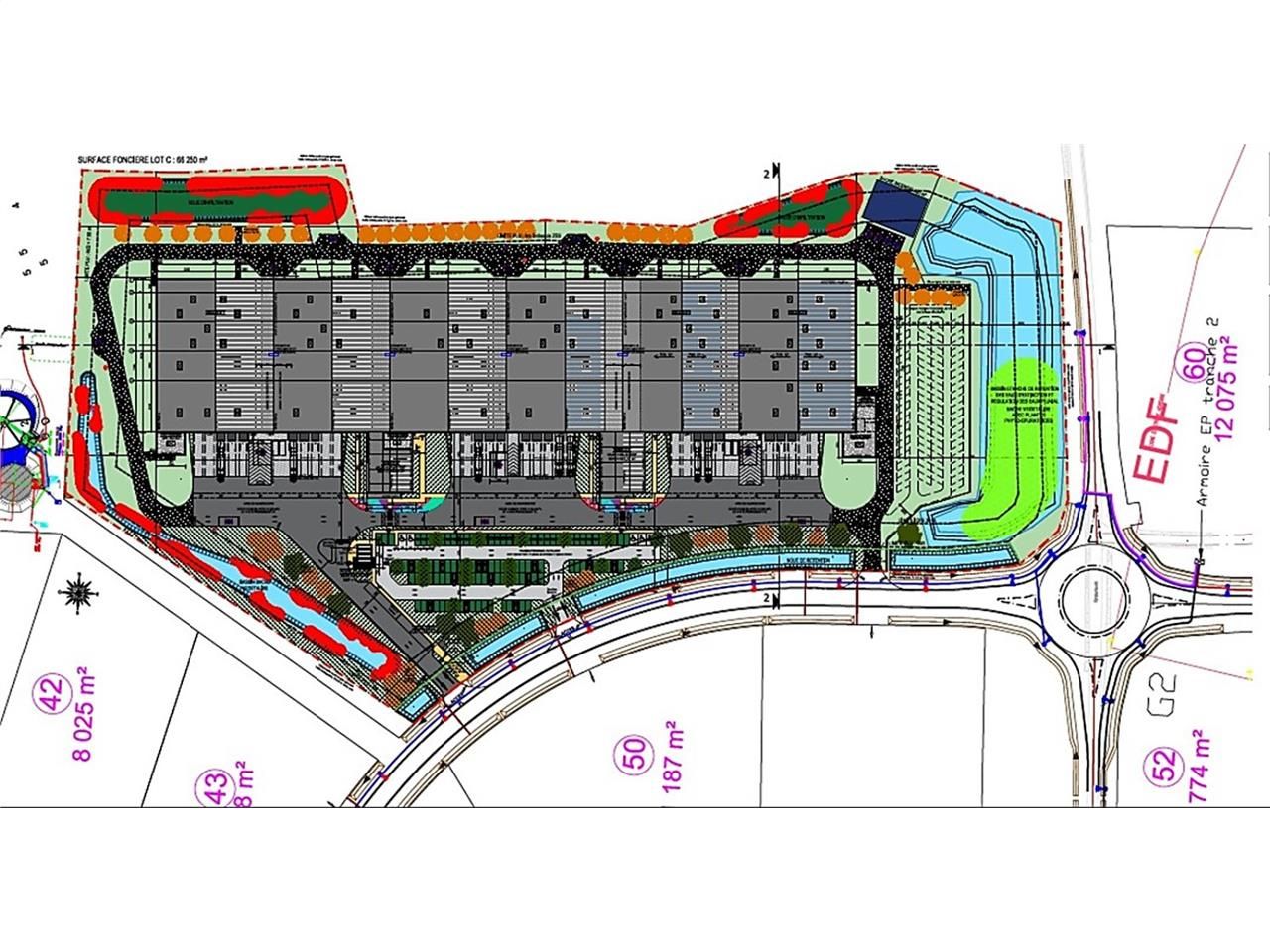
18 872 m² divisible dès 5 m²
HT HC
Location activité/entrepôt - 18872 m²
Tergnier (02700)
Dernière mise à jour : Il y a 3 mois
Au coeur des métropoles Lille, Paris et Reims à moins d'1h30 de route de chacune via l'A1. CBRE vous propose à la location ou à la vente un entrepôt à développer d'environ 19 000 m². Terrain : 66 775 m². Le bâtiment pourra bénéficier de cellules à température dirigée négative et positive et d'une centrale photovoltaïque en toiture. Entrepôt visant une certification BREEAM Very Good. PC/ICPE obtenus et purgés. ICPE : 1185, 1510, 1511, 2925.
Régime Fiscal : T.V.A.
Honoraires : 15 % HT d'un loyer annuel HT/HC à la charge du preneur
Information sur le Bail :
Loyers : Entrepôt sec et annexes : 48,00 euros/m²/an HT HC Entrepôt température dirigée 15-25°C : 65,00 euros/m²/an HT HC Entrepôt température positive 2°C-8°C : 110,00 euros/m²/an HT HC Bureaux : 120,00 euros/m²/an HT HC Prix de vente : nous consulter
Prestations :
Accessibilité:
Autoroute A26 à 19 km
Autoroute A1 à 44 km
Route D32 à 1 km
Route D1 à 1 km
Route D3223 à 1 km
SNCF Gare TER Tergnier (4 km)
Aeroport Paris Roissy-Charles-de-Gaulle
Les informations sur les risques auxquels ce bien est exposé sont disponibles sur le site Géorisques : www.georisques.gouv.fr
| Étage | Type | Surfaces | Dispo | Loyer | Charges | Type de bailRév. annuelle |
|---|---|---|---|---|---|---|
| Entrepôts | 2953 | 12 mois ap. déb. trx | 48 m²/an HT HC | 6-9 ansIndice ILAT | ||
| Entrepôts | 2951 | 12 mois ap. déb. trx | 48 m²/an HT HC | 6-9 ansIndice ILAT | ||
| Entrepôts | 2934 | 12 mois ap. déb. trx | 48 m²/an HT HC | 6-9 ansIndice ILAT | ||
| Entrepôts | 2934 | 12 mois ap. déb. trx | 48 m²/an HT HC | 6-9 ansIndice ILAT | ||
| Entrepôts | 2934 | 12 mois ap. déb. trx | 48 m²/an HT HC | 6-9 ansIndice ILAT | ||
| Entrepôts | 2933 | 12 mois ap. déb. trx | 48 m²/an HT HC | 6-9 ansIndice ILAT | ||
| Entrepôts | 341 | 12 mois ap. déb. trx | 120 m²/an HT HC | 6-9 ansIndice ILAT | ||
| Entrepôts | 214 | 12 mois ap. déb. trx | 120 m²/an HT HC | 6-9 ansIndice ILAT | ||
| Entrepôts | 213 | 12 mois ap. déb. trx | 120 m²/an HT HC | 6-9 ansIndice ILAT | ||
| Entrepôts | 130 | 12 mois ap. déb. trx | 48 m²/an HT HC | 6-9 ansIndice ILAT | ||
| Entrepôts | 101 | 12 mois ap. déb. trx | 48 m²/an HT HC | 6-9 ansIndice ILAT | ||
| Entrepôts | 81 | 12 mois ap. déb. trx | 48 m²/an HT HC | 6-9 ansIndice ILAT | ||
| Entrepôts | 19 | 12 mois ap. déb. trx | 48 m²/an HT HC | 6-9 ansIndice ILAT | ||
| Entrepôts | 19 | 12 mois ap. déb. trx | 48 m²/an HT HC | 6-9 ansIndice ILAT | ||
| Entrepôts | 19 | 12 mois ap. déb. trx | 48 m²/an HT HC | 6-9 ansIndice ILAT | ||
| Entrepôts | 19 | 12 mois ap. déb. trx | 48 m²/an HT HC | 6-9 ansIndice ILAT | ||
| Entrepôts | 19 | 12 mois ap. déb. trx | 48 m²/an HT HC | 6-9 ansIndice ILAT | ||
| Entrepôts | 18 | 12 mois ap. déb. trx | 48 m²/an HT HC | 6-9 ansIndice ILAT | ||
| Entrepôts | 7 | 12 mois ap. déb. trx | 120 m²/an HT HC | 6-9 ansIndice ILAT | ||
| Entrepôts | 7 | 12 mois ap. déb. trx | 120 m²/an HT HC | 6-9 ansIndice ILAT | ||
| Entrepôts | 7 | 12 mois ap. déb. trx | 120 m²/an HT HC | 6-9 ansIndice ILAT | ||
| Entrepôts | 7 | 12 mois ap. déb. trx | 120 m²/an HT HC | 6-9 ansIndice ILAT | ||
| Entrepôts | 7 | 12 mois ap. déb. trx | 48 m²/an HT HC | 6-9 ansIndice ILAT | ||
| Entrepôts | 5 | 12 mois ap. déb. trx | 120 m²/an HT HC | 6-9 ansIndice ILAT |
Régime Fiscal : T.V.A.
Honoraires : 15 % HT d'un loyer annuel HT/HC à la charge du preneur
Information sur le Bail :
Loyers : Entrepôt sec et annexes : 48,00 euros/m²/an HT HC Entrepôt température dirigée 15-25°C : 65,00 euros/m²/an HT HC Entrepôt température positive 2°C-8°C : 110,00 euros/m²/an HT HC Bureaux : 120,00 euros/m²/an HT HC Prix de vente : nous consulter
Prestations :
- SPECIFICATIONS :
- Surface foncière 66 775 m²
- Certification BREEAM VERY GOOD
- Éclairage Full LED
- Poste de garde
- Site entièrement clos avec clôture périphérique du site (h = 2 m)
- STRUCTURE :
- Superstructure en béton ou mixte béton / bois
- Isolation renforcée classe C compatible avec panneaux photovoltaïques
- Étanchéité toiture compatible photovoltaïque
- Récupération des eaux pluviales
- Hauteur de stockage 10 m max (pas de sprinklage prévu en l'état)
- Résistance au sol : selon besoins (minimum 5 T/m²)
- EQUIPEMENTS :
- Quais types « Autodocks », avec portes sectionnelles motorisées (1 unité / 1000 m² minimum)
- Accès de plain-pied : 1 unité toutes les 2 cellules
- Désenfumage conforme à la réglementation
- Alarmes de défense incendie de type 4 et RIA
- Éclairage Full LED
- Locaux de charge
- Locaux techniques (chaufferie, TGBT, Transformateur, Sprinkler, onduleur)
- Chauffage par aérothermes eau chaude
- Dissociation des flux VL et PL sur le site
- Portails électriques de fermeture du site (PL, VL et piétons)
- Cour camion 38 m
- Aire de béquillage entièrement béton profondeur 18 m
- 103 places de stationnement VL EVERGREEN (y compris PMR)
- locaux sociaux
- Zone d'attente 2 places PL
- Abri 2 roues
- Immeuble indépendant
- Surface terrain : 0
- ICPE :
- Autorisations : 1510,1511,1530,1532,2662,2663,1185,2925
Accessibilité:
Autoroute A26 à 19 km
Autoroute A1 à 44 km
Route D32 à 1 km
Route D1 à 1 km
Route D3223 à 1 km
SNCF Gare TER Tergnier (4 km)
Aeroport Paris Roissy-Charles-de-Gaulle
Les informations sur les risques auxquels ce bien est exposé sont disponibles sur le site Géorisques : www.georisques.gouv.fr
Voir plus
Afficher les consommations énergétiques
Favoris
Exporter
Appeler
Contacter
Signaler cette annonce






