Située dans le 3ème arrondissement de Lyon au 15 rue des Cuirassiers, notre agence compte environ 35 collaborateurs expérimentés pour vous accompagner tout au long de la mise en œuvre de votre proj ...
En savoir plus

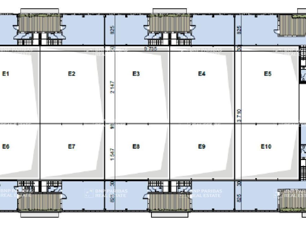
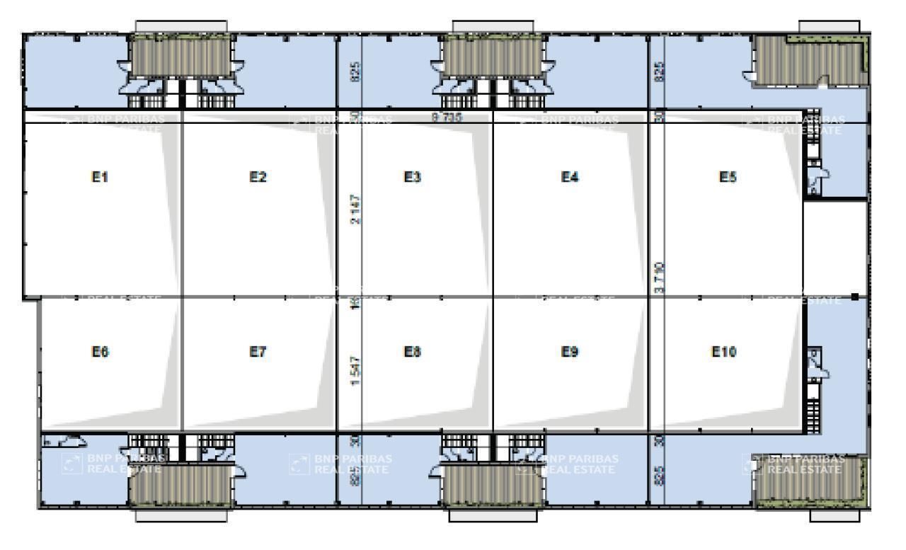
Location activité/entrepôt - 6718 m²
Situés au coeur d'un environnement dynamique, ces locaux d'activités offrent un cadre idéal pour les entreprises à la recherche d'un outil de travail fonctionnel, moderne et facilement accessible.
Le btiment bénéficie d'une architecture récente, d'espaces modulables et d'une conception pensée pour répondre aux besoins des activités industrielles, artisanales, logistiques ou de services techniques.
L'ensemble est implanté sur un site agréable, offrant une cour privative ou des espaces extérieurs dédiés aux manoeuvres, au stationnement des véhicules et à la logistique du quotidien. Le btiment est également adapté pour les entreprises recherchant une double accessibilité VL/PL.
Grce à sa localisation stratégique, les locaux bénéficient d'une excellente desserte routière via les grands axes environnants, ainsi que de la proximité des transports en commun, facilitant l'accès pour les collaborateurs et les clients.
Ces locaux constituent une opportunité idéale pour toute entreprise souhaitant s'implanter ou se développer dans un secteur attractif, au sein d'un btiment polyvalent, fonctionnel et immédiatement opérationnel.
Disponibilité: 01/12/2026Honoraires: 15% HT du loyer HT/HC. à la signature du bail
| Fiche technique du bien | |
|---|---|
| Métro | Ligne A Station Vaulx-en-Velin La Soie, à un arrêt du tram |
| Bus | Bus 16/ Bus 67 / Bus Zi3 |
| Tramway | T7 |
| Tramway | T3 |
| Desserte routière | Rocade Est, A46, A42 |
| Aéroport | Lyon Saint Exupery 16 km |
| Gare | Part Dieu 26 min |
| Etat de l'immeuble | Neuf |
| Etat du terrain | Mixte |
| Parking(s) | Oui |
| Immeuble copropriété | Oui |
| Climatisation | Réversible |
| Restauration | Restaurant |
| Environnement de proximité | Parc paysagé arboré |
| Hauteur sous-plafond | 2,70 mètre(s) |
| Sol bureaux | Moquette/Carrelage |
| Sanitaire(s) | Sol carrelage et revêtement mural en faïence toute hauteur |
| Autre élément bureau | Climatisation par système réversible de type VRV |
| Charpente | Métallique |
| Couverture | Bac acier isolé |
| Murs | Bardage double peau |
| Sols du bâtiment | Béton |
| Charge au sol RDC | 3,00 tonne(s)/m² |
| Hauteur libre | 7,50 mètre(s) |
| Porte(s) d'accès plain-pied | Portes de 3,90 x 3,90 m |
| Porte(s) d'accès à quai | Oui |
| Aire de manoeuvre | Oui |
| Accessibilité type véhicules | Tous porteurs |
| Eclairage intérieur | LED |
| Eclairage intérieur | LED |
| Puissance électrique | Tarif Jaune |
| Locaux sociaux | Sanitaires |










